这7款餐边柜太实用了,附设计和尺寸图
振祥装饰
2022-04-24
房子装修,一定要在家里多装一些柜子,毕竟住久了,东西还真是会越来越多!像餐厅就可以装一个餐边柜,可以收纳杯子,还可以摆放饮水机、咖啡机等小家电。






下面来分享下我家餐边柜的设计,附上设计图纸
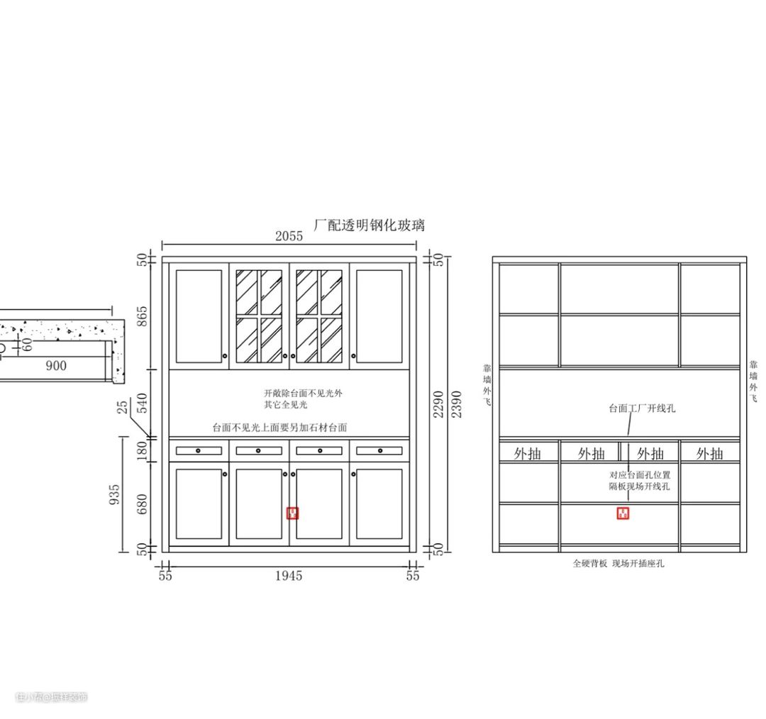
🌟1、餐边柜到顶设计
餐边柜到顶设计,可把空间充分利用起来,吊柜可以收纳一些酒类或者其它物品,层板采用可调高低设计,可灵活调节。
.
🌟2、餐边柜的深度
餐边柜深400mm,摆放蒸烤箱的高柜深度是600mm
我家是提前定好蒸烤箱,再定餐边柜的尺寸的
比如我家就预留了蒸烤箱开孔尺寸(净空尺寸):564mm宽x580mm深x452mm高
🌟3、餐边柜台面
台面选择了木色来搭配,耐脏,同时又可以装饰点缀
🌟4、 餐边柜储物
4个小抽屉收纳小件物品很方便,并且吊柜和地柜也是非常能装的!
🌟5、餐边柜灯光
柜子顶部、中间、底部都装了灯带,可调色温的灯带,可以根据氛围来调整
⚠️装修时,记得预留好灯带的线路哦





✍️详细介绍一下这款餐厅具体尺寸,已经附上详细图纸,大家可做为参考!
◽️我家餐厅尺寸 长270✖️宽220
◽️餐桌尺寸 长160✖️宽80
✍️餐边柜是暖色的,选了莫干山的实木生态板,虽然实木板不便宜,但还是实木的甲醛含量最少,健康安全最重要,柜体板材表面平面光滑非常好打理。
◽️餐边柜尺寸 :高240 长270 宽35(具体见图纸)
◽️板材型号:清新榆木➕ 奶白雾麻
✍️柜门左半部分我选择了长虹玻璃➕金色拉丝边框 作为点缀
✍️重点:长虹玻璃大家一定要选择超白波!!!不然就不会有这种通透感了,因为普通玻璃是偏绿色的!
✍️柜门用的是反弹器,记得好像就几块钱,很多人说反弹器不好用,但是柜子用了大半年了,没有感觉有任何的不方便,甚至没有把手美观度绝对是一百分💯
✍️桌垫,用了一段时间,铺上桌垫餐厅像换了个风格,餐厅变得暖系了,tpu的材质也没有味道,材质防水防油不怕脏,是不是感觉餐厅颜值都拉升好几度~



风格:现代/美式/轻奢
✍️名称:餐边柜
✍️颜色:暖白亚光 (门板/顶线/线条/踢脚板/见光板/封边条)这几个要同色做出来会更好看
✍️尺寸:高2390长2055厚度330中间镂空高度540抽屉尺寸485
✍️品牌:重庆本地品牌
✍️价格:活动价不到800元/平方 四周封边没有另外收费,如果复杂造型那种另外计费、玻璃/抽屉/见光板另外收费。
✍️材质:门板露水河基材亚光烤漆,柜体露水河E0级颗粒板。
安装:安装自己一定要去现场看着,有问题立马指出来改,我算幸运的,没翻车。
✍️设计师也很重要,把自己的需求告诉设计师,怕有误差可以先量一次尺寸,出图后在复尺一遍。内部结构根据自己的需求都是可以改的,最好是销售,设计师,还有你及家人建一个群有什么群里沟通,也可当做沟通留底,不怕万一就怕出事。
最满意的餐边柜,散发着奶香味





里面隔板懒得设计了用的可移动的






✍️关于餐边柜详细尺寸:
📝高:2.43m ✖️ 宽:2.68m
📝进深:350mm ✖️ 踢脚线:60mm
📝关于餐边柜颜色:混油色系CFY-048 涂白
-
✍️顶天立地的混油工艺造型餐边柜yyds!
▫️吊柜做成2层双开长虹玻璃柜,透光不透影的朦胧美感敲好看🔅
▫️中间留空的置物区高60公分,可以放置咖啡机、电水壶等小家电,非常方便✌
▫️地柜划分为2排封闭式储物柜,实力扩容收纳,解救餐桌凌乱的烦恼👌
▫️餐边柜两侧的高柜一门做到顶,弧形造型柜门简直就是绝美呀!
提升幸福感的奶油法式餐边柜




我家厨房是L型,特别小,放不下多少小家电。对于我这个很享受用餐时光的人来说,有个能提升幸福感的餐边柜真的是太重要了。
餐厅整面墙都做了柜子,通顶的设计,增加储物量的同时显得整齐不杂乱。
✍️餐边柜宽2.19m高2.38m深30cm
✍️考虑到透明玻璃会显得杂乱,吊柜3扇柜门加入了超白长虹玻璃,通透且颜值高。
✍️中空高45cm,操作台面增加天然大理石。大理石光滑有亮度,不怕开水/茶渍,易打理。内嵌灯带,温馨明亮。
✍️原墙面无插座,为煮咖啡泡茶不用往厨房跑,提前挪动了插座位置,这样餐边柜放些小家电就无压力啦~很多姐妹建议增加插座,已在考虑后续更换为壁挂式排插~




做了一整墙的餐边柜,事实证明我的选择是对的,太爱了,家里终于可以干干净净的了,可以存放太多杂物。
好啦这次应该介绍的很详细了,如果你们还有问题的话可以👇问我哦