蔷薇溪谷丨意式主义,开启生活新乐章
潍坊元筑装修设计
2022-05-01
项目地址丨潍坊·蔷薇溪谷
项目面积丨500m²
主案设计丨高燕
作品风格丨现代意式
案例信息
500m²的四层别墅,屋主是一对中年夫妇。屋主平时喜欢读书、看电影。有两个小女儿正在上学,喜爱音乐与舞蹈。他们理想中的家是意式的低调简约、有质感。
本案设计风格定位为现代意式,符合屋主对于精致、简单生活的推崇,结合屋子的常住人口,我们设计了一个通透明亮,简单有序的家。
一个拥有秩序感的家,能在空间层次上给予安稳与舒适的张力,让我们的情绪和情感得到舒缓和疗愈。本期案例,展现的是一套以线条和材质,有序输送出空间质感的意式居所,让我们在细腻、精致的美学空间里感受一番意式的优雅魅力。
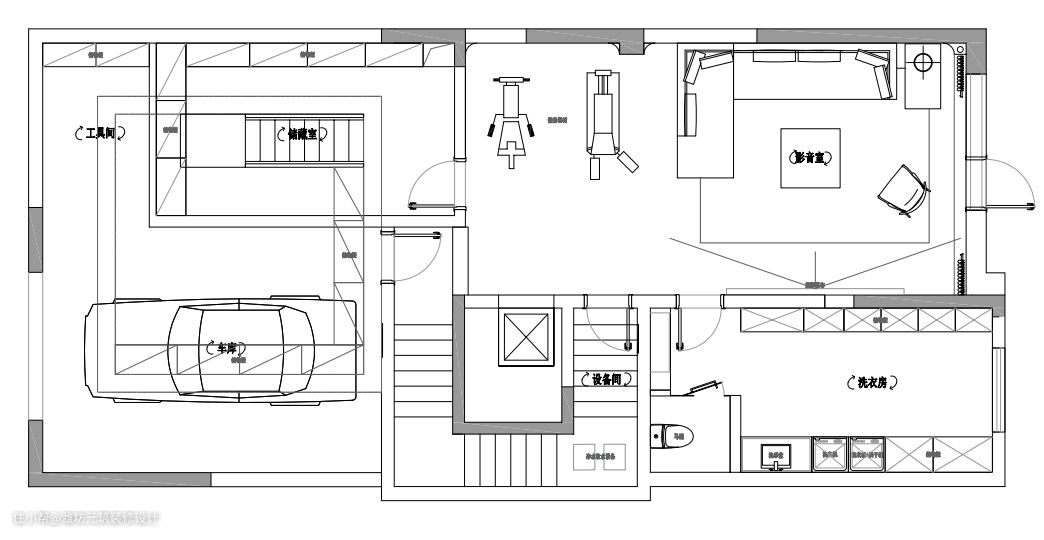
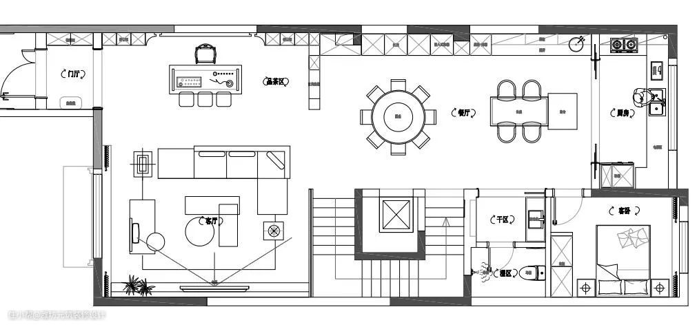
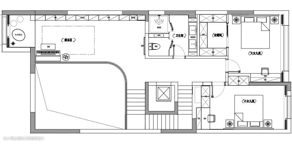
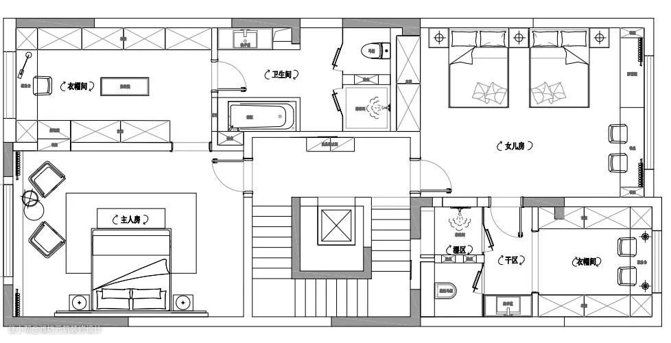
◤平面方案 |Plan|
负一主要作为屋主的休闲娱乐区,规划了健身区、观影区、洗衣房、储藏室。

一楼主要规划了多功能客厅,客厅连通品茶区、社交型餐厨空间,无主灯设计、长辈房。

二层利用一个卧室打通后作为公共阅读放松区,北面是父母为孩子长大后各自准备的房间。

三楼是主卧套房包含睡眠、梳妆、衣帽间设计,两个孩子较小共处一个房间,方便照顾。

设计是为你寻找
个人风格的有趣味的过程
当我们停下来认真观察生活的时候
生活就会涌现出无尽的美好
客厅
有机秩序组合,拉伸空间尺度

客厅挑空设计,视觉通透明亮,弧形造型呼应,层次丰富。空间中经典蓝相互点缀极具艺术感,是客厅的点睛之笔。电视墙大理石纹理如水墨画般,气势恢弘,成为客厅的独特风景。
高级灰色调的铺设,让空间的明亮度更显柔和,通过的玻璃材质形成流动的交互感,视觉表达上更具巧妙。
餐厅
三餐四季,幸福而居

一日三餐四季,属于自己的小幸福,岛台与木质餐桌,承载一家四口日常所需。经典蓝餐椅打破常规的色彩代表着自己的生活态度,为空间注入不凡的格调。
几何造型灯饰适当点缀空间,轻奢时尚的设计带来艺术享受。旋转圆桌满足家族聚餐使用,浅色系相互兼容,又不失自己的特色。
多功能房
一种不依循常规的随性之美


二楼多功能休闲区,日常阅读放松弹钢琴,质感温润的木色书架。给空间倾注饱满而温柔的气质。以立体化的设计,诉说着高雅品位的生活方式。
在繁忙的生活当中找到一个属于自己的栖息地,放松放松心情,将疲惫和紧张拒之门外,将轻松和愉悦留在这里。
主卧
意式主张简而质感的生活形态


主卧套房式设计,连接衣帽间与卫生间,让动线更加合理。低饱和度的高级灰床品,以极强的包裹感带来舒适放松的视觉感知,经典蓝色调的点缀,优雅且藴藏十足的生活美学。
超大的落地窗满足的卧室的采光,将自然请进了卧室里,而且还给卧室加上了一种通透的感觉,将衣帽间收入卧室当中,满足了女主人对穿搭的所有需求。
大女儿房
时尚与精致的交汇


大女儿房间,简洁白色墙面为基调,步入式衣帽间分区合理、实现收纳空间最大化,书桌满足学习与办公的功能。焦糖棕色的墙裙为设计延伸,浅粉色的床与挂画进行色块呼应,营造出空间的温润与优雅。
浅粉色和焦糖棕色搭配让卧室透露出一丝宁静,搭配书桌在这宁静的环境下学习和办公不仅可以事半功倍,也能让心情不会那么的繁重。
小女儿房
低吟的告白


小女儿房间的床头背景,通过白色与脏粉色的碰撞自带简约高级感,弧形线设计自带舒适感,因为柔美的曲线的曲线带来视觉延伸,融合线条元素,即温馨又浪漫。
脏粉色和白色的搭配让卧室在简约当中带有一丝可爱,床头放着卡通的饰品让整间我卧室里增添一分童贞。


屋主单独设立了一间女儿房,现在两姐妹还比较小,方便照顾的同时也可以增进两姐妹的感情。
低饱和度的粉色为主色调,搭配充满童趣的壁纸,是大多数女生钟爱的颜色,小姐妹的两床相邻,便于孩子之间交流感情。