280㎡现代风格联排别墅装修案例
山水装饰集团
2022-05-04
项目地址:领秀山南
面积:280㎡
户型:联排别墅
风格:现代
设计师:于三清
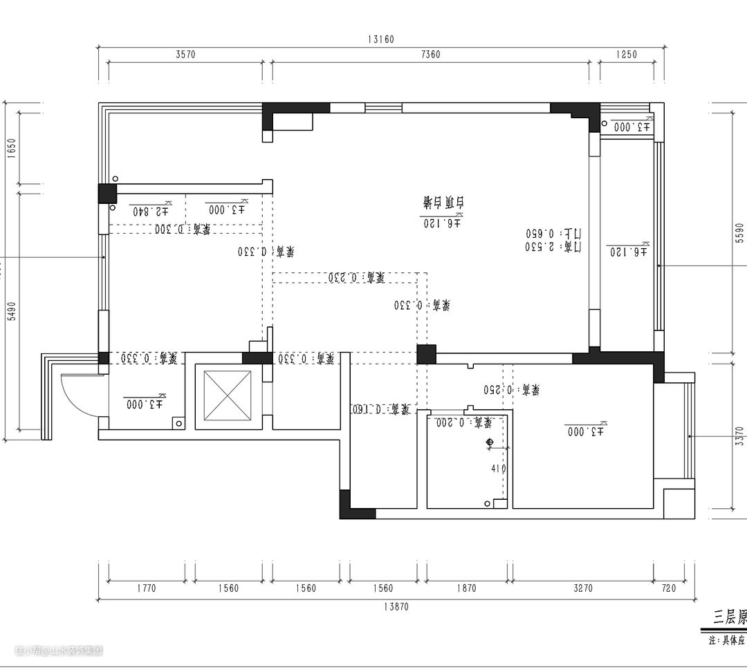
户型图:

大宅业主对于空间的布局与设计,往往有着更高的要求,追求品质,也强调美观度。这套280㎡的三层联排别墅,最终定案为现代风格,在有限的空间内,应屋主要求,我们将玄关、客厅、餐厅等公共空间设计得落落大方,布局精巧,体现着屋主的品位和追求,也为访客留下深刻的印象。
客厅


墙面装修上大面积使用了大理石进行装饰,独特的纹理尽显自然大气,表面光泽感强,搭配着灯线设计,足显空间质感,时尚感满满。

除了大理石之外,木饰面与嵌入式柜体的组合,也为空间增添了不少温润气质。同时将阳台纳入了客厅中,通铺的设计扩容了空间,也提高了利用率。
餐厅

用餐区与客厅保持着通透布局,紧邻着厨房,借用阳台与厨房的自然光,使得空间更显开敞明亮。餐厅在材质的选择上颇为讲究,深灰色调的餐边柜与岩板餐桌,搭配着皮质软椅,精致时尚,处处彰显了屋主对高品质生活的追求。
卧室

主卧室带有独立阳台,为了扩容,我们同样采用了通铺的方式,将阳台与卧室连为一体,作为休闲区使用。大量的木饰面与嵌入式衣柜保持着同款造型,直线条利落流畅,搭配着圆形壁挂,简洁又大气。

与主卧室配套的步入式衣帽间,通过衣柜进行分割,形成一个相对独立的功能区。衣帽间空间不小,我们采用了U型布局,同时加入了书桌椅,兼顾着办公、梳妆等各种功能。除了木质材料之外,为了增强空间的时尚气息,我们还选择了铝框玻璃门进行点缀,引入更丰富的光影变化。
现代风格在装修设计上强调内外通透,简约却不简单,通过不同材质的交织融合,迎合居者对高品质、高舒适度生活的追求,同时展现出空间的时尚气息。