建业森林半岛140㎡新中式,一室一景自成天地!
郑州东易日盛
2022-05-07
ONE·写在前面
- Write in front-
——
本案业主钟情于新中式风格,根据业主需求将空间打造出宁静淡雅,平静祥和的氛围,在日渐嘈杂的都市,给予心灵一片静溢,回到家中褪去世间浮华,宛若隐逸山水之间,品一壶清茶,让慵懒的生活在袅袅茶香中沉淀。
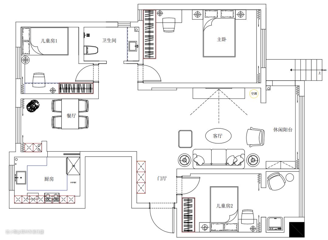
▃ 平面图

布局图
#玄关
「 当代东方,归家礼序 」

入即静谧,喧嚣繁华在外,玄关巧用木栅窗格窥探方寸,挽风入室,光影流转,营造虚实遥望的意境之居。
#客厅

客厅兼具现代气息下的东方气韵,以及中式元素演绎现代生活意境,深与浅的晕染,赋予传统的“意”与现代的“形”,灵动与沉寂,与空间对话,与时间共舞,创造融合共生的氛围。

整屋大理石的设计,纹理丰富,搭配木质家具和门框,温润如玉,雅致大方。厚重的色彩,让空间看起来更加沉稳。
#餐厅

餐厅的设计,符合中式风的对称美,配上中式挂画和精致的餐具,一切的一切都透露着东方文化的精髓,中式的色彩,显得格外的端庄、大气。

厨房空间开敞流动,以木色彰显态度,营造出高出日常之上的空间质感和艺术境界。在有形的空间中,突破常规,以纵深感拉伸整个空间。U型厨柜更适合这种正方形的厨房,具有更多的收纳空间。
#卧室

主卧室的衣柜和床头背景墙延续了这种带有中式造型的风格,背景墙还有着淡淡的荷叶画,床和床头柜的款式也很好看,无一不展示屋主对于中式风的喜爱。

到了儿童房这个空间,为了更贴合孩子的喜好,选择的搭配就偏向于清新风格,软包的床头靠背,整体配色也更为清新、可爱。