平面方案规划
磨锋设计(崇明店)
2022-05-15

《户型1》飘窗是可拆的,标准的三房两厅,一家三口,收纳要多,布局要合理!

方案解析(一):为了充分让两个朝南的卧室空间利用最大化,飘窗拿掉,挂外机的位置利用到室内。同时暖通只能考虑的是中央空调,一拖五外机放到阳台的空调机位。
1.厨房改到餐厅这边来,达到南北更通透。双移门补充餐厅的采光
2.卫生间取消干湿分离,不大的卫生间做干湿分离利用率更低!
3、次卧和卫生间门错开,解决卧室门对卫生间的问题!
4、飘窗拿掉,利用到卧室后,房间不小啦,为了增加储物储物功能量,做了背靠背的柜子。
5、主卧做衣帽间。增加储物功能量

方案解析(二):暖通采用的是壁挂空调
1、飘窗只拿掉做柜式飘窗,飘窗下增加储物或是干脆不要飘窗,看每个人的需求吧,不是每个人都喜欢飘窗的。
2、北卧室做成多功能房,榻榻米床、书桌,功能两不误~

《户型2》最大问题是厨房,操作台太少,一字型的台面放了燃气灶和水槽后基本上没什么台面了!

方案解析:
1、小阳台并入厨房,增加厨房的操作区,买个双门冰箱也不会成问题
2、卫生间东面墙敲掉重新砌,利用24CM墙厚到厨房去,这样厨房站人不成问题
3、进门玄关进深略浪费了点,往前推,做背靠背的柜子
4、主卫门换个位置,吃饭旁卫生间门不是很美丽

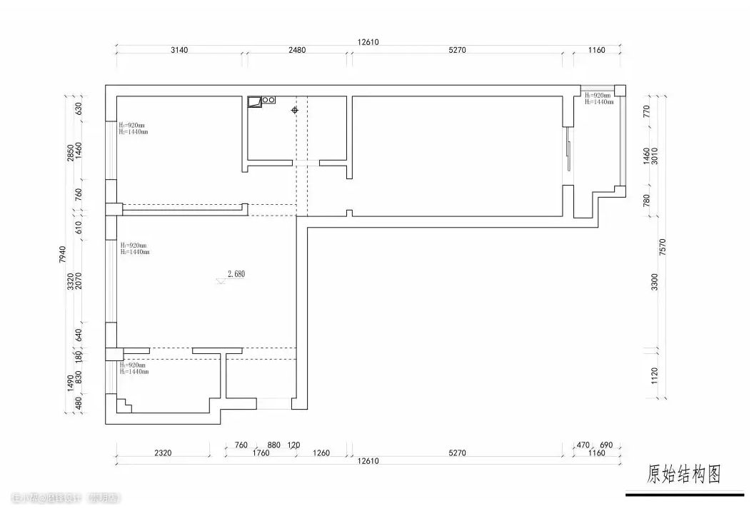
《户型3》通常我们看到的房型都是餐厅的宽度比客厅小。但这套餐厅和客厅的东西向宽度是一样的,这样的房型很少,不改造的话餐厅利用率很低、浪费空间,摆什么都不合适。同时过道很浪费,除了作为通道派不上其他用途!

方案解析:
1、中西厨、做到油腻和不油腻的功能区分。
2、过道压缩,做干区,背面增加储物放到主卧。
3、主卫门的调整、改善主卧摆放衣柜难的问题,原户型主卫门在南边后,衣柜是个小的衣柜。
4、台盆挪到外面来后,次卫就可压缩,增加北卧室的空间,原户型北卧室实在太小。
5.圆形的餐厅解决中厅浪费的问题,同时也起到客餐厅功能上的区分。
6、南次卧房门位置的挪动,改善大门对着卧室门的问题,同时也让玄关更加的完整、多收纳。

《户型4》2.1M的餐厅宽度小了点,通常要≥2.4M才比较舒服

方案解析:随着技术的发展,集成灶越来越成熟,能很好的达到吸油烟的效果
1、厨房餐厅打通做开放式厨房,建议买集成灶,当然不要买太便宜的,质量不是很有保证!(吸油烟效果好排序:集成灶-侧吸油烟机-欧式油烟机-中式油烟机)
2、卫生间门挪位,改善大门对卫生间问题
3、大阳台打通并入到客厅,空间显得大

《户型5》玄关区空间浪费

方案解析:
1、进门右手边地方还可以,做储物间增加储物功能,改善玄关浪费问题
2、次卫台盆方向的对调,让北卧室进出更加独立,同时也不会对着台盆的镜子
3、沙发电视的对调,进门看到人坐在沙发并不是很理想

《户型6》两个朝南的卧室拐弯抹角多

方案解析:
1.南次卧:东西向宽度压缩到3.1-3.3M就可以了,使得主次卧房子更加方正,同时也是空间的利用,收纳柜也更多啦
2.次卫门挪位,避免卧室对着卫生间

《户型7》改善整体布局

方案解析:
1、进门右手边做鞋柜,适当放大储物间
2、干湿分离
3、主卧缩小过道,增大主卧的衣柜

《户型8》手枪型的户型,上海老公房里还是蛮常见的

方案解析:
1、厨房做U型橱柜
2、卫生间门右移
3、5.27M跨度的主卧,完全可以做衣帽间,增加储物功能量

《户型9》这么好的房型,但原户型的动向确很奇怪!

方案解析:解决1-大门对着主卧门;解决2-主卧套房使用起来很别扭,空间也没利用到位。
1、主卧门的调整,产生了玄关出来,解决了大门对主卧门的问题
2、主卧套房改成南北通透式,(不管在任何情况下南北通透永远是最好的,不管是通风还是使用)
《MOF.磨锋设计》注重装修更注重设计.
我们眼中的高端:
——我们认为高端不等于奢华,不能仅理解为别墅大宅设计。
如果没有量身定制的好设计,仅仅是堆砌豪华元素,这不是高端设计甚至算不上设计。
我们研究的是您的生活状态和行为习惯,希望做生活的归纳师,
提升生活的品质,带给屋主最佳的居住体验。