书桌衣柜这样设计,轻松解决小房间空间局促问题
合肥寸微全屋定制
2022-05-15
小户型装修最头疼的就是空间利用问题吧,比如小房间想装修成儿童房,衣柜书桌一个都不能少,但空间往往放下一张床就显得局促了,那么设计一个复合式书桌就很有必要了,不仅节省空间,视觉上还会更美观。

▼复合式书桌优点
1、和谐协调:书桌书柜衣柜一体,整齐柜格相搭配,风格画面统一,独具特色。
2、方便快捷:收纳地方都在一起,方便寻找需要的物品。
3、省空间、省金钱:复合式书桌集学习、收纳功能于一体,最大节省了小户型的空间,且这样一体式的定制比单独定制书桌更便宜。

▼内嵌式书桌
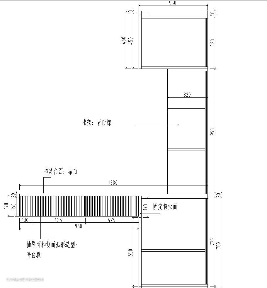
在衣柜旁留空,做一个内嵌式书桌,颜色选择和书桌同色系或者一致,让书桌和衣柜融为一体;书桌下方做抽屉收纳,上方用隔板做出书架,这样既有工作台功能,又有收纳展示功能。

▼延长式书桌
衣柜已经占满一面墙了没有地方做嵌入式书桌了怎么办,其实只要在衣柜转角延长做悬空书桌就能完美解决问题,转角上方做隔板书架,增加收纳功能。


为了避免孩子误撞桌角受伤,可以把桌角做成圆润的弧形,再搭配柜体清雅的线条,整体美观且气质佳,孩子在这里都会爱上学习。

衣柜与书桌转角无缝结合,大大增加了台面使用面积;因书桌是悬空定制,下方衣柜可以不受遮挡使用,多一个储物空间,还方便打扫。

复合式书桌将收纳展示功能发挥到了极致,超大容量的抽屉、随手即拿的多层书架,书架上下方都可放置不常用物品,这样设计空间档次都被提升了。

延长式书桌还可以倚窗定制,采光会相当不错,孩子学习累了还能看看窗外的景色放松。

或者直接舍弃床头柜,用延长书桌代替,空间利用率更高;如果觉得造型单调,可以给旁边书架做个圆拱门的造型,需要注意的地方:书桌与床的高度相差不要太大,否则就失去了代替床头柜的意义。

当然,复合式书桌不是只有小户型才能做,房间大选择性更多,比如可以不做悬空定制,直接在书架上做延长桌,因为书架已经满足了收纳需要,所以书桌只要简简单单就好,这样房间看起来紧而不凑,平实且精致。

(本文图片来自网络,如有侵权,请联系删除)