两居改一居,一人独占100㎡现代轻奢风小家
居然乐屋
2022-05-27

随着人们生活质量不断提高,几乎每个人都拥有几十件甚至更多的衣服,这些款式、质地不同的服装的累积,人们开始对其进行分类收纳,因此衣帽间正逐步成为每个家庭空间中不可或缺的一部分。
许多人认为衣帽间仅仅可存在于大空间内,其实不然,现代住宅设计中,经常有凹入或突出的部分或者是三角区域,我们完全可以充分利用这些空间,根据业主的情况,规划出一个衣帽间。
家居中的衣帽间给人生活带来许多便捷的同时还会使在衣帽间中更衣的人带来愉悦的心情和自信,更可以成为家居设计中的亮点。
每一个女人都渴望拥有自己独立的衣帽间,每当疯狂购物之后都能整齐条理地陈列摆放出来,可以说一个时尚得体的衣帽间,是我们精致生活的完美体现。
PROJECT ADDRESS
通州区·运河铭筑

△原始户型图
在原始户型中存在诸多问题:
1、屋主是独居状态,暂时不需要两个卧室,存在空间规划不合理,空间浪费现象;
2、封闭式厨房和作用不大的储藏室,让整个客厅空间变得比较窄;
3、收纳空间不足,屋主需要手办、公仔展示柜和充足的收纳空间存放个人物品。

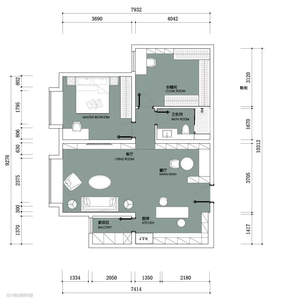
△改造后户型图
通过设计师对户型的分析改造,改造后的户型优化了原始问题,并在此基础上做了更多设计调整:
1、把次卧室改成衣帽间,满足业主日常生活需求;
2、拆除储藏室,改造为开放式西厨,客餐厨一体化的设计增加有效活动空间;
3、为解决收纳不足的问题,增加了一组玄关柜和客厅柜,满足收纳展示空间,在细节处更是增加了大量收纳空间。
PORCH
玄关

设计师在进门处放置一组玄关柜,中层区域用来方便屋主随手放下钥匙、钱包等物件,玄关柜下方悬空,用来归置常穿的鞋子,柜内则收纳不常穿的换季鞋子、雨伞等物件。
LIVING ROOM
客厅

客厅改造前后对比图

屋主一直想要解决盲盒摆放的问题,增加一组客厅柜,中间作为展示柜,上下两层储物空间,柜体颜色与地面呼应,粉色元素中和整个房间的冷淡感。

电视背景墙以简洁为主,地砖根据业主需求选取灰色大理石纹瓷砖,整体十分干净整洁。

原始的储藏室用处不大,改造成业主需要的西厨,满足业主需求的同时,增加了活动空间。

在电视柜角落,展示架可以摆放屋主喜欢的公仔,盲盒手办等展示物品,把自己喜欢的一切都装进自己的家!
DINING ROOM
餐厅

平日里屋主独自居住,在家做饭的几率很小,因此设计师没有为屋主选择很大的餐桌,小圆桌同时可以满足屋主在家办公的用途,卡座下方空间作为储物空间使用,满足屋主的生活需求。
KITCHEN
厨房


在原储藏室拆改隔一个西厨,让厨房和餐厅之间有一定的社交功能。光线也更加充足。


西厨左侧的收纳柜,除了有收藏储物功能外,还隐藏了房子自带的管道,隐形门以及深灰色柜体,视觉效果统一,同时也与整体空间形成统一。
MASTER BEDROOM
主卧


简约的灰色调床头以及背景墙,搭配暖色灯条,让整个空间显得更加温馨有格调。

整面墙的收纳柜解决收纳空间不足的问题。
CLOAKROOM
衣帽间



开放式没有立板的衣帽间系统,衣服悬挂清晰明了,将来恢复成卧室也比较方便,可以随屋主的需求对空间进行调整,灵活性与功能性兼备。
TOILET
主卫


卫生间也采用黑白灰色调,呼应整体房间基调,浴室镜占据了大半墙面,可以满足多人使用的需求。
——
设计师与屋主彼此信任,让每一处细节都最大限度落地。对平面精准的设计和把控,让空间有了自己独有的秩序,所呈现的所有视觉感受都是对设计最好的回应。
——
为人们创造有温度、有品质的生活美学空间。Creat an appealing space for you.

项目地点 | 北京·运河铭筑
室内面积 | 100m²
设计主创 | 洪利文案设计 |倪迦


洪利 / 设计师
致力于室内建筑空间的创造及空间体验的营造,主张在空间中提取设计,通过感性的设计灵感,理性的设计手法,呈现极具张力与能量的空间体验。简介:从事室内设计11年曾任大学特聘讲师2014年成立洪利工作室服务于成都2016年洪利工作室进驻北京代表作品:棕榈泉国际公寓、亦园、壹亮马、天鹅湾、公园大道、观湖国际、中海北京世家、弗农小镇、圣世一品、锦官苑、光熙家园、华纺易城、西城天铸、首开琅樾等