轻奢220㎡大胆发言:落地窗和厨房才是绝配!
昆明东易日盛
2022-06-05
过于繁杂的设计,没有简约线条的干练,没有米白墙壁的淡雅,没有纯粹生活的温暖,没有浅显易懂的故事,没有太多的生活味。本案来自于古滇名城,是一套220㎡的三层别墅大宅。屋主一家五口人居住。

男主人是律师,平日有居家办公的需求,活动区域较多的便是书房,因此书房的功能性也进行了着重规划。

除此外,设计师发现主卫空间窗户景观独特,在这里设置泡池功能,一边观景一边泡澡,也不失为一种享受。一起来看下,改造之后家发现了哪些变化。
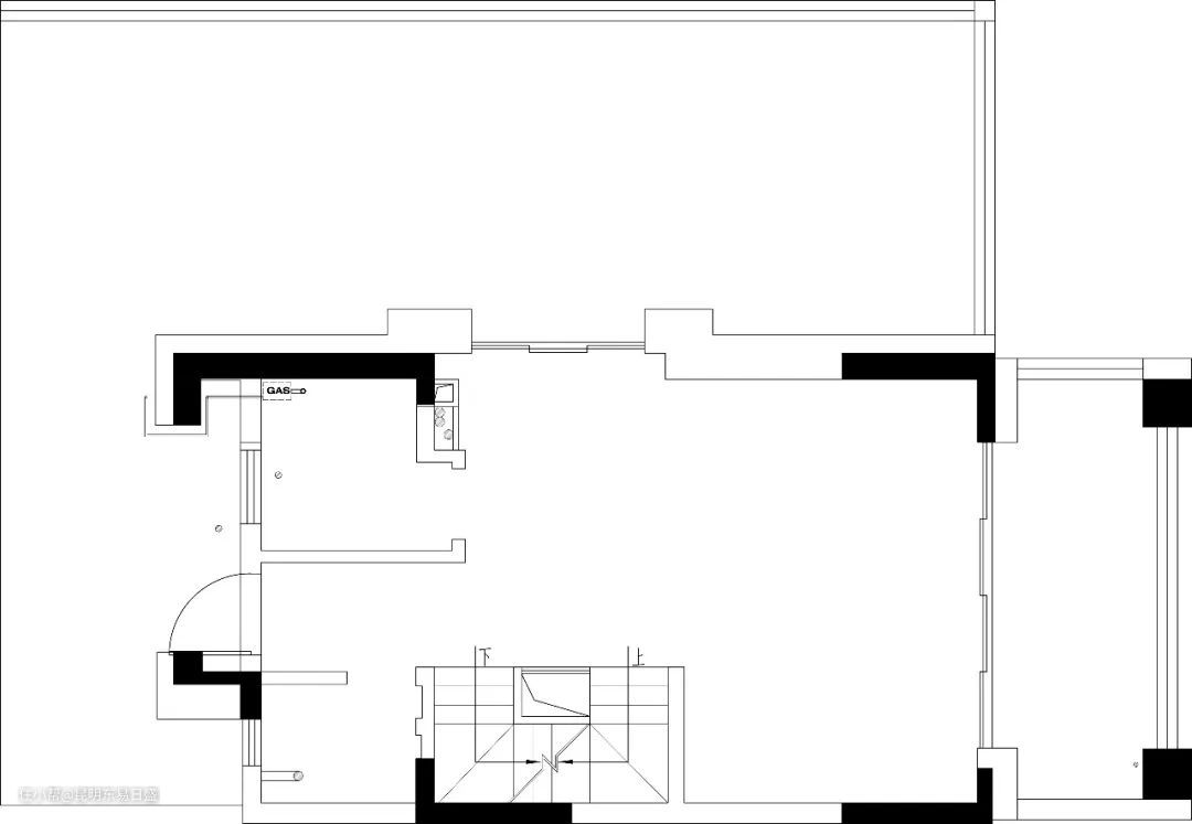
-1F户型图规划前后对比


•首层考虑把厨房、餐厅空间移下来,这样,厨房空间可以更多的考虑的一系列的常用电器。
•餐厨动线设计为“倒三角”,在后期使用过程当中更为便捷。
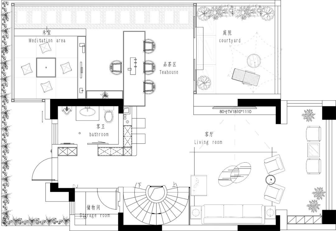
1F户型图
户型图规划前后对比


•原一层设计花园搭建阳光房的方案,规划为茶室及禾室,一边喝茶聊天。
•考虑到给孩子一个玩耍的空间,与客厅相结合,形成一个大型社交空间。
2F户型图
户型图规划前后对比


•二层则设计为孩子房和老人房,一方面满足孩子学习的需求,另外老人照看孩子的起居也比较方便。
•卫生间为独立功能区,采用三分离。
3F户型图
户型图规划前后对比


•三层为主卧套房空间,既能满足居住、收纳,又能满足卫生间享受型设计。
•原来露台一分为二,一边为主卫的泡池功能,一边泡澡一边看星星;另一边则设计为洗衣功能。效果赏析
客厅


别墅结构空间大,但规划起来也比较复杂,客厅的新风系统、吊顶都要花费不少精力。
客厅层高2.6米,因此全屋采用无主灯设计,灯带、筒灯均隐藏在吊顶里,保证了充足光线,视觉上也显得简洁,不拖沓。

沙发背景墙为了摆脱单调感,白色木格栅与棕色板材拼接,丰富了视觉效果,也更有设计感。

点缀金色金属饰品,顷刻间将轻奢的韵味激发出来,在暖色灯光的映射下,尽显高级品位。
餐厅


在灰色釉面瓷砖上铺一块青色的地毯,防止桌椅拖动损伤地砖,同时轻柔的质地,也营造出温馨的氛围。
考虑到餐厅面积较大,因此天花设计为更有立体感的圆形吊顶,搭配一盏环形主灯,显露出空间的连贯性。

厨房采用中西分厨,岩板橱柜的台面,耐污耐磨,容易打理,也不失品位。

考虑到餐厨区的动线,将冰箱摆在靠近阳台的位置,整体就形成拿-洗-切-炒的布局,方便合理。
卧室


清新明快的黄色调,打破卧室沉闷,搭配满屋的玩具,童趣满满。

和儿童房同一层的老人房,用色上较为保守。
暖色的灯带舒适而安宁,不会对老人的眼睛造成伤害。在采光较好的地方放置了一张躺椅,闲暇时刻也可以小憩。

主卧天花通过4块木格栅装饰,内凹的造型,让卧室空间看起来更加高大。