保利国宾首府143㎡ | “白天也懂夜的黑。”
成都业之峰旗舰店
2022-06-10

案例信息//
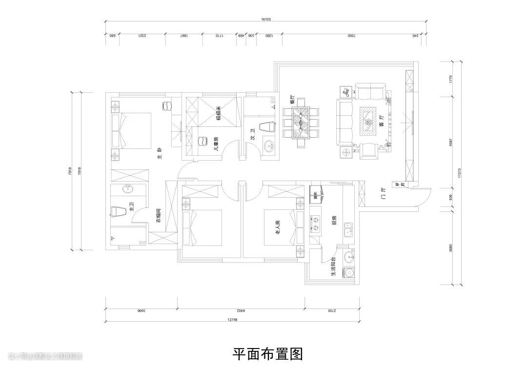
案例小区:保利国宾首府
案例户型:四室两厅
案例面积:143㎡
案例风格:现代风格
案例设计师:刘松


结构改造//
在结构上,我们将原本的阳台区域打掉墙体,扩大整体客厅的区域,让整个客厅大气通透。

黑与白本身就是矛盾体,也是永恒的设计美学,在家居设计中一直是配色的经典之选。一个最暗,一个最亮,在一起形成极致的冲突感,设计师在其中融入中间色,以达到属于家的柔和。

客厅

同色系大理石上墙,
两边采用开放式的展示柜,
实用而美观。

木作自然造型极具艺术感
为家居空间增添温馨

餐厅

餐厅从餐桌到餐椅的选取
皆沿用硬装的配色
搭配三两绿植
干净而清新
厨房

厨房区域功能分明,动线流畅
简单却也最是实用
主卧


卧室抛开一切暗色调的灰黑色
大面积的选用白色和米色
亮色调显得整个休憩空间温馨而舒适

儿童房

七八岁的小男孩
成长中的年纪
正是需要大量存储空间
半开放半封闭的定制柜
放置书的空档也可摆上三两手办

设计师:刘松
从业经验:17年
设计理念:
设计与心,设计与人。
主要作品:
龙湖原筑,保利两河森林,天悦府,南湖国际,保利198,南城都汇, 保利心语,中海国际社区,中粮锦云,仁和春天国际花园,世贸玉锦湾 ,信合御龙山,中海金沙府,麓山国际社区,四海逸家,华润凤凰城,龙湖三千集,首创国际城,成都后花园,天府世家,中德英伦联邦,新鸿基悦城等
