太美了!103㎡轻奢极简,收纳颜值两不误!
金地新家整装设计中心
2022-06-15
女主人对轻奢风格情有独钟,在细节及搭配上需要更专业的建议;经过和设计师再三协调沟通,确定了设计效果图,女主人对设计赞不绝口。

房子原始的户型为三居室,满足五口人的独立空间,将每一个空间都设计成最适合的样子,想拥有精致的衣帽间,女主人是一个热爱生活且很精致的人,她的需求是要有充足的储物功能,同时还要重点突出品质感。


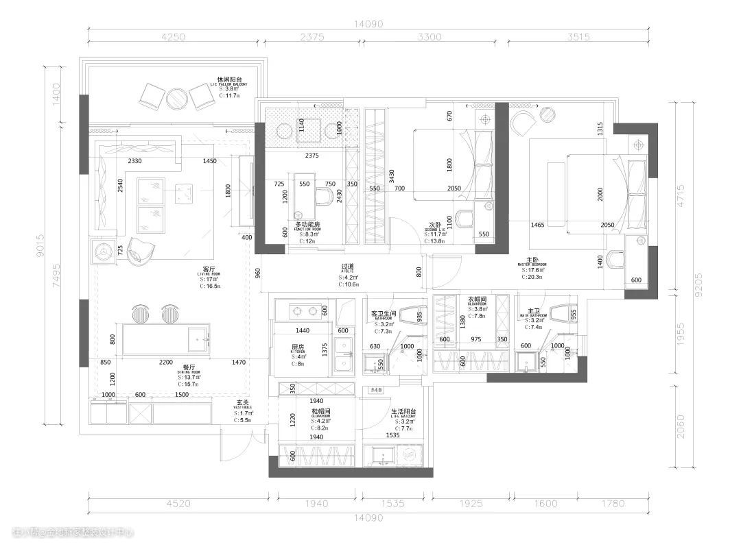
原始户型图/设计图▼
金地香蜜山
风格:现代轻奢
户型结构:3室2厅1厨2卫
面积:103㎡
温馨 / 环保 / 储物 / 功能 / 舒适
No.1 客厅
I NEW HOME

入户就是整面玄关到顶储存柜,简约的造型提升了整个空间内的景象,传统储存功能设计,简约又实用。

暖色调的软装家具搭配深棕色的沙发背景墙,不同的色系碰撞出层次感。整面大理石岩板电视背景墙内嵌、没有电视柜,不仅节省了客厅的空间,同时还降低了危险性,客厅的整体设计及软装搭配都选用了轻奢风的元素,营造有品质的家。


客厅拥有整片的全景玻璃推拉门,可以引进充足的光线。设计师以白调为主,又用橙色与灰色结合,让人感觉更加大气简约,轻奢优雅。

No.2 餐厅&厨房
I NEW HOME


餐厅的空间相对宽阔,进门左方为餐桌区域,设计师在餐厅区增加了岛台,上下两排的储物柜满足了日常收纳,中间镂空部分可放置平日里常用的烤箱等家电,满足屋主更多的生活场景,根据户型的空间选用了长方形的五人餐桌椅。
No.3 主卧
I NEW HOME


这套房子的卧室都有同样的优势所在,超大的窗户,给足了卧室的自然光线和采光,朝南大主卧和多功能房都是用了类似的设计材料,纹理的背景墙搭配软包床舒适且高级。

No.4 次卧
I NEW HOME

儿童房是一个多功能设计,集收纳、学习、休息于一体的空间感;多功能实用榻榻米的设计,满足了小朋友日常的储物需求。
No.5 卫生间
I NEW HOME

卫生间设计都用了干湿分离的空间划分原则,淋雨隔断,避免污渍堆积,卫生间的设计实用且前卫,爸妈看了都说好。