旺家温泉华府108㎡浅色系简约风,有get到你吗?
业之峰全包圆整装
2022-06-16
旺家温泉华府108㎡浅色系简约风,有get到你吗?
本案位于三原县旺家温泉华府,业主在北京上班,房子主要用来给父母主。整体风格细节由业主本人把控。风格倾向于现代简约风格。

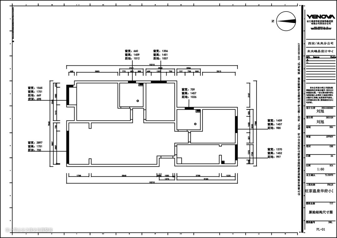
原始结构图

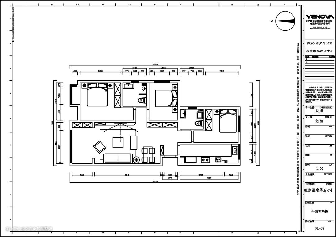
平面布局图


客厅设计的特色是将房屋的原材料、色彩搭配、灯光照明等进行最大化的简化!但就是这些相当简单的家居装饰,通过设计师的编排设计,往往可以起到很好的视觉效果。
因为是简约风,为了不致空间单调,在软装搭配以及墙面乳胶漆调色都是刻意为之,才让空间拥有温度。

简约风格几乎是所有装修风格里最省钱的一种,所以受到广大消费者的喜爱。现代简约的设计风格具有实用、简洁、功能性强等特点。

厨房的地面与橱柜颜色相近,宛如一体,整个空间不会有花哨之感,相反会让人感到祥和,舒服。采用当下流行的高级灰,使得空间大气上档次。



卧室从视觉上颜色都采用了浅色系色调,浅色系给人的感觉就是安静柔和,很符合卧室的使用,现在生活在节奏较快的都市中,整天在忙碌中度过,时间长了会使人感觉非常的疲惫。所以与红红绿绿的跳眼颜色相比,更需要种浅色调,营造一种温馨、安静的生活氛围。来忘记外面的烦恼,有自己的一方天地。

卫生间做了简易干湿分离,很简单,没有任何多余的装饰,空间得到最大化的利用。