挑战全网又小又好用的玄关,这样设计用20年内不过时
木子家ya
2022-06-17
装修前我是翻了全网各种网红玄关鞋柜设计,借鉴了很多人家里的设计。每个人的对玄关侧重点是不一样,鞋多恨不得玄关全部做鞋柜。目前这个玄关鞋柜设计,包含鞋柜、换鞋凳、挂衣挂包区、包包柜和出门物品收纳柜。虽然小但是真的非常强大好用,准备装修的你可以借鉴参考设计。

一、功能划分
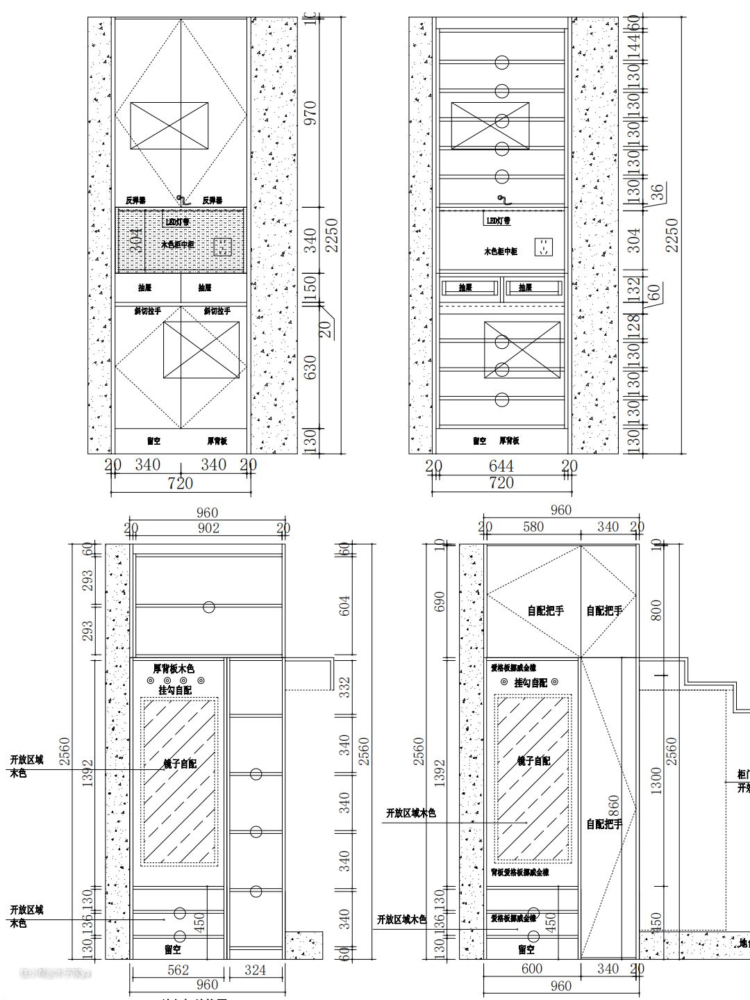
1、鞋柜
入户门原本没有玄关鞋柜,硬是从厨房挖了一个空间,350mm深的鞋柜顶天立地。而打开鞋柜门板,内里与厨房相连的薄墙(墙仅5cm)则暗藏了全屋的强弱电箱。

鞋柜中间留空放钥匙或消毒液,两个抽屉一个放口罩,一个放袜子,底部留空放过夜鞋。
2、换鞋凳、全身镜、挂衣区

入户门左侧我利用楼梯下方空间,定制了百宝箱储物柜,其中一部分化作玄关区,在这里设计换鞋凳,全身镜、挂衣区,每次出门坐在这里换鞋,拿包穿大衣一气呵成
3、物品收纳柜


换鞋凳旁边的柜子我设计成隔板,两层放书包和各种包包,一层放家人袜子,一层放雨伞和帽子等零碎物品,一层放收集的各种袋子,方便出门装东西在这里随手拿一个装了就走。这个物品收纳柜巨好用,再也用每天回家看到沙发上各种包包堆着了。强烈建议你一定要做。
二、尺寸分享


1、鞋柜深35cm,层板13cm足够放下大部分鞋子,除了高帮鞋或长筒靴,这部分鞋子我放在客厅柜。(常穿的鞋子基本上放门口鞋柜)
2、鞋柜层板记得做成活动,强弱电箱在里面,有需要我可以拿下层板去开电箱。
3、换鞋凳长度建议至少60cm才舒适,深度40cm。
4、包包柜深40cm,宽36cm,高34cm
三、定制板材分享
整个柜子选用的是千年舟实木多层板肤感白材质,1280元/平方投影面积,木色部分选用的爱格板挪威金橡。
今天的玄关鞋柜就分享到这里,如果家里是。有楼梯,感兴趣楼梯柜,下期来分享啊!