铂悦名邸115㎡简约设计,美出新高度!
成都东易日盛春熙店
2022-06-23

本案设计理念
客户是做美业投资的职业人,长期在外地奔波出差,这个房子是改善的住房形式。客户找到我们要求是:希望生活有归属感,买这个房子就是看中双阳台的结构,可以最大限度的使用到。风格这一方面:客户不喜欢过多的装饰,现代简约为主。
在设计这块我们拿掉了阳台的移门,让空间尽可能通透,在色彩选择和材料选择上,我们做了很多减法的设计,让空间的储物功能增加,让家里材料选择尽量少一些,软装方面我们运用了很多颜色形状,让卧室更加符合每个年龄的状态,更多去照顾家人的感受。

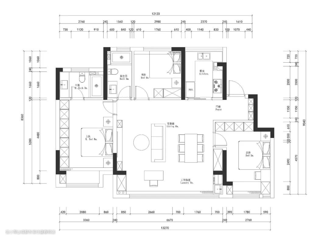
▲ 平面户型图
「案例欣赏」
CASE APPRECIATION
-
01.客厅
SITTING ROOM
演绎舒适又高级的现代空间


电视背景墙我们以使用主义为主旨,让电视和电视柜相结合,增加了许多的收纳,也运用了暗把手的设计,让生活便利。在灯光设计上我们采用了无主灯的设计,增加了家里的整体性设计。在家具沙发的选择上,我们选了偏弱的米色,也选用了弧形的沙发单品,让家里舒适感十足。
For the TV background wall, we take the principle of use as the main theme, combining the TV and the TV cabinet, adding a lot of storage, and using the design of the hidden handle to make life convenient. In the lighting design, we adopted the design of no main lights, which increased the overall design of the home. In the choice of furniture sofa, we chose a weak beige color, and also chose a single product of curved sofa, which makes the home feel full of comfort.


每一个场景,每一件物品,都是对生活美学的探索。随手安置的物品更能体现场景里的美,是精神追求,也是生活烟火。
Every scene, every object, is an exploration of the aesthetics of life. Conveniently placed items can reflect the beauty of the scene, is the spiritual pursuit, but also the fireworks of life.
02.餐厅
THE RESTAURANT
陪伴家人,一日三餐有情调



在餐厅我们增加了餐边柜的设计,同时在颜色上采用了橙色的跳色,让餐边柜不呆板,在餐厅我们还是增加了一个吊顶,想让家人用餐的时候有一定的氛围感。
In the restaurant, we added the design of the sideboard, and at the same time used orange jumping color in the color, so that the sideboard is not rigid.
03. 卧室
THE BEDROOM
去除繁复的装饰,追求高品质的生活

在卧室我们做了整面的衣帽柜配置,满足女主人衣物的需求,在衣柜的尽头我们还增加了梳妆台的配置,卧室我们同样是采用了无主灯的设计,床头背景我们没有用很多的装饰面,只是简单用颜色来表达业主对生活的热爱和期待。
In the bedroom, we made a whole cloakroom configuration to meet the needs of the hostess' clothing. At the end of the wardrobe, we also added a dressing table configuration. With a lot of decorative surfaces, simply use color to express the owner's love and expectations for life.

长辈的房间除了常规的衣柜外,考虑到老人对色彩的认知可能没有对图像认知来的强烈,所以我们在床头增加了中式墙布的设计。在灯光设计上也是增加了主灯的设置。
In addition to the conventional wardrobes in the elders' room, considering that the elderly's cognition of colors may not be as strong as that of images, we added a Chinese-style wall covering design at the head of the bed. In the lighting design, the main light setting has also been added.

儿子的房间我们舍弃了一个床头柜增加了书桌的功能,在整体颜色上采用了蓝色的配色,因为业主家孩子也即将成年,在感知上还是让房间更加偏成熟化。
In the son's room, we abandoned a bedside table to add the function of a desk, and adopted a blue color scheme in the overall color, because the owner's child is about to become an adult, so the room is more mature in perception.
项目风格|现代简约
Project Style|Contemporary and contracted
项目面积|115m²
Project Area|115m²
项目地址|铂悦名邸
Project Location|BoYueMingDi