112平--新中式风格落地效果
山水人家装饰汉口店
2022-06-24
项目地址:融侨华府
项目面积:112㎡
户型:三室两厅
风格:新中式风格
花费:
本案的业主是一个三口之家,主要居住成员包括:夫妻二人和一个孩子。风格需求是新中式风格,对于实用性也有极大的需求。希望能保证简约大方的设计之余,更添古色古香的意蕴。
因为是三室格局,其中两室是用以居住,而被搁置的一室,业主希望以图休闲娱乐之需,因此设计成一个多功能室。


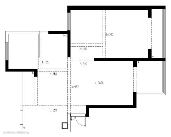
户型改造:
1.充分利用了餐厅阳台的空间,从而扩大了入户门厅、餐厅和厨房的空间,整体通风和采光更好,动线也更协调
2.改变卫生间开门方向,从中间开门,从而做到小卫生间也能干湿分离。充分利用下水管包管的空间,做了壁龛,增加了收纳。卫生间采用木质玻璃门挂板,和房门整体效果一致,立面效果更整体,木质玻璃门也方便装隐藏式地吸
3.主卧阳台和主卧打通,大大增加了主卧的空间、采光及通风,同时也给了相邻不大的儿童房学习桌和活动的空间
4.客厅背景墙采用悬空岩板+木质展示柜的设计,效果更好,同时也避免了沙发对着房门,增加了卧室的私密性

玄 关


入户处,映入眼帘的便是一个木制玄关柜,简约小巧而又典雅自然。放置一个精致装饰品,更显一种矛盾的古典之美。
客 厅


客厅更是传统和现代居室风格的碰撞,中式古色古香的风韵与现代风简单素雅的淡然完美地衔接一处。灵山多秀色,空山共氤氲,抬头便是一副精美的水墨画,淡漠而悠远。原木和竹子元素的结合,整个空间变得愈加旷远恬静,使人仿佛置身山林,共享这山水怡情。


电视墙以鱼肚白瓷砖点缀,跟黑色的电视形成鲜明反差。左边的立柜上摆着各式各样的艺术装饰品,色彩鲜艳,给人一种热情、温馨且时尚的感觉。
厨 房

整个厨房的颜色以白色为基底,洁白光亮的柜体台面、鱼肚白色的瓷砖、浅灰色的大理石纹地砖,辅以若隐若现的黑色拉手线,共同构成了和谐自然的厨房布局。于此处畅快地烹饪佳肴,想必会是天堂制造吧。
餐 厅


餐厅完全采用原木设计,古色古香的转盘圆桌和木椅,使整个环境更添素雅意蕴。头上的高顶吊灯,放出影影绰绰的柔光,展现一丝朦胧美感。一家人邻桌而坐,推杯换盏,何等的惬意自然。
主 卧



主卧推门而进,偌大一个空间,简约而又自然,没有任何装饰物的添加,流畅地诠释传统文化中“大道至简”的精髓。主卧的采光也非常好,能够使人身心愉悦,阳光暖暖地罩着,甜蜜而又安然。
儿童房


儿童房的整体布局以灰白色为主,彰显出孩子内心的纯净自然。“L”型的书桌设计,填充了更多的可操作空间。孩子拥有极高的思维活跃度,儿童房的墙纸用了卡通造型,更添童趣与生机。
卫生间

主卫有着一面极大的镜子、旁边衬着相应的储物架、浅灰色的瓷墙面和砖面跟白色的操作台交相辉映,展现出干净整洁的空间,通过采取干湿区域分离,维护良好的卫生环境。