客厅电视背景墙2022新款:现代简约风格设计
兰州东易日盛
2022-06-26
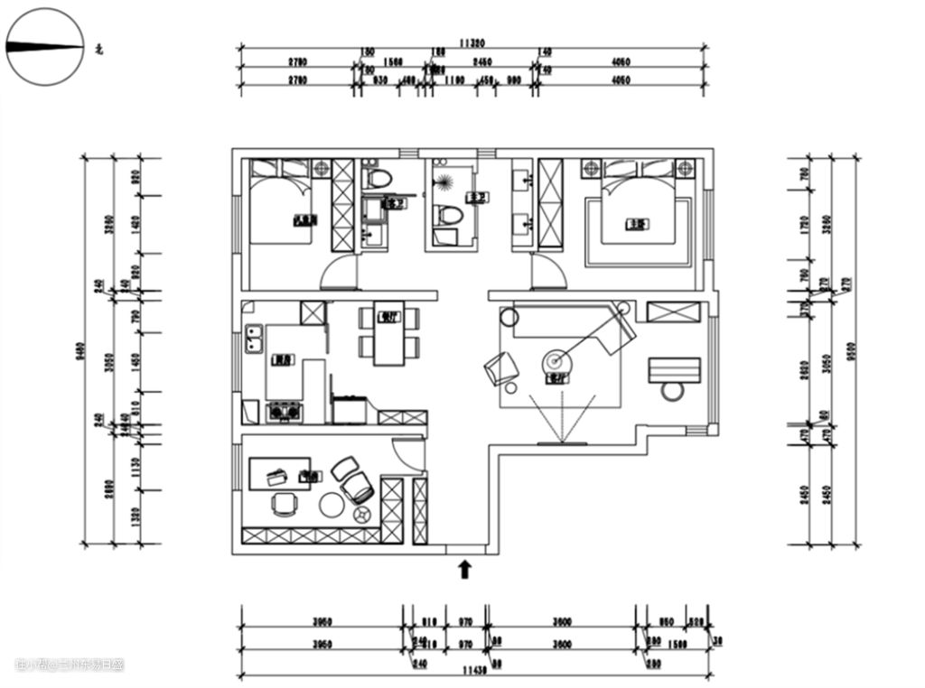
装修楼盘:盛达公馆
装修面积:130平米
装修风格:现代简约风格
装修户型:三室两厅两卫


盛达公馆130平米现代简约风格装修设计效果图:装修业主是三室两厅两卫,普通住宅;业主是三口之家,偶尔会有老人过来。在与业主交流沟通以后,将整个住宅定位于现代简约风格进行装饰设计;设计师在装饰设计师以浅色为主,搭配浅灰色家居,让整个空间奢而不华。


盛达公馆装修电视背景墙选用原木板材进行墙面的装饰,嵌入电视机,做落地地台装饰,客厅阳台通铺瓷砖,没有封闭式阳台,采光更好。沙发背景墙同样与电视背景墙呼应,选用原木板材装饰墙面,选用浅灰色沙发以及茶几做配套家居,使得客厅简洁且大气。

卧室装修选用透明玻璃衣柜门,整洁,整屋通铺大理石瓷砖,空间更显宽敞舒适,卧室顶面同样没有造型设计,单纯做了窗帘盒。
