新新家园 | 一面艺术,一面生活!
品尚艺墅装饰
2022-06-29
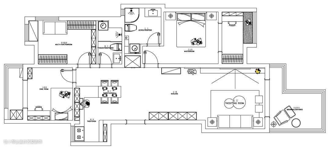
户型布局 | Unit type:三室两厅一厨两卫
建筑面积 | Acreage:122㎡
设计风格 | Style:现代风格
项目设计 | Designer:马玲超


当车水马龙、摩肩擦踵成为城市的代名词,我们希望构建一个空间,让心静下来。

布艺.木质格栅.石材,交叠对比 创造重点空间,转换心理感知,不仅呼应从都市前来的我们,穿越长长的隧道来到这里,同时象征心灵意识转换仪式开端



开放的布局,便捷的动线雅致的艺术氛围。整个空间以简为基调,金属不锈钢的沉稳再运用家具陈列、钢线灯具组合的点缀,透过橱柜餐桌一体设计,使得空间更好利用结合光影的变化与链接,使整个领域呈現更完整的连续性。

满足居住、工作、储物的多重需求,拥有个人独立个性和隐私,把精神层面的憧憬变成可落地的栖居场景。

没有过多的摆设,温馨舒适,既满足基本生活需求,也可学习放松!一只可爱憨憨的大熊可爱至极,给整个空间增加了很多趣味和灵动。


