【案例分享】255㎡跃层现代轻奢风格|贴合需求 利用空间
成都东易日盛富森店
2022-06-29
案例信息:
楼盘名称:郎基·御香
案例面积:255㎡
案例户型:跃层
装修风格:现代轻奢风格
装修模式:原创模式
设 计 师:蒋林
设计理念:
业主是对年轻夫妇,从选择装修,方案规划,风格确定,业主都和蒋林老师进行了耐心交谈与沟通需求倾诉。整个空间发挥空间大。在设计中为业主设计规划出了合理的动静分区。将每个空间都利用到了极致。
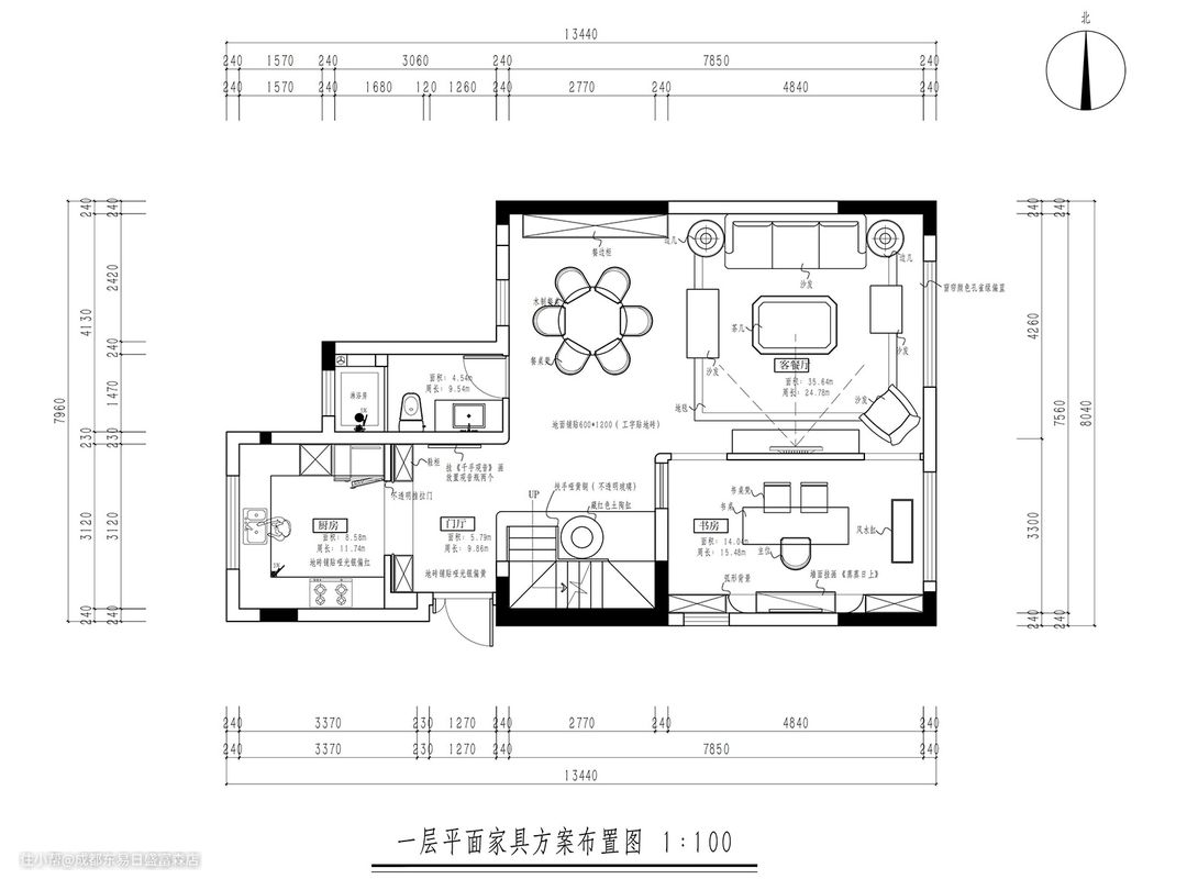
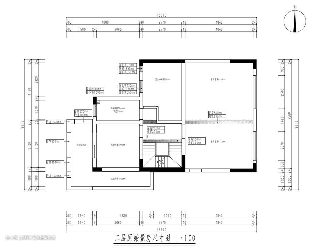
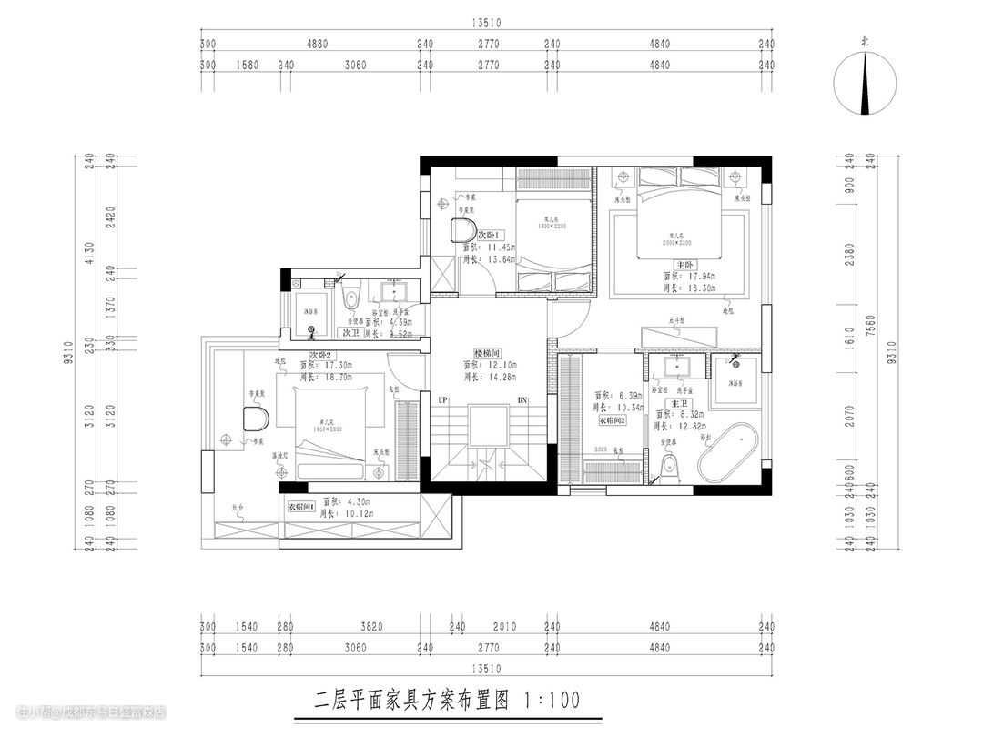
户型图:
一楼:


二楼:


三楼:


整体设计改造方案:
① 将整个挑空的区域进行了搭建,为整个房间增加了使用面积也为主卧提供了一个大气舒适的空间。
② 设计师对二层进行了空间上的规划设计布局,将主卧,次卧,儿童房进行设计,使每个房间都有充足的储物空间以及舒适的居住体验。
③ 三层在设计师与业主的沟通后,对三层进行了搭建,为业主提供了一个健身房,以及花园,使业主在家也能够健康生活和感受自然。
④ 设计风格以现代为主,大量融入轻奢的元素,摒弃繁琐,简单而又不失大气。






在可接触区域都做了圆角处理,安全陪伴孩子的左右。床头铺贴了一款卡通壁纸,丰富的图案显得既舒适又和谐,童趣味十足。

