591㎡欧式风格装修 处处彰显贵气
东莞东易日盛
2022-06-29
面积: 591㎡
所属楼盘: 金地湖山大境
风格: 欧式
【简介】
1.业主需求:本案为幸福的三代同堂之家打造,地下室主要家人或亲朋聚会的娱乐功能区,要有影音室、麻将房,一共需要7个房间,最好有个瑜伽室。经过沟通最后确定为欧式风格,但不能过于繁杂。
户型的优点分析:(附原始结构户型图)





优点分析:
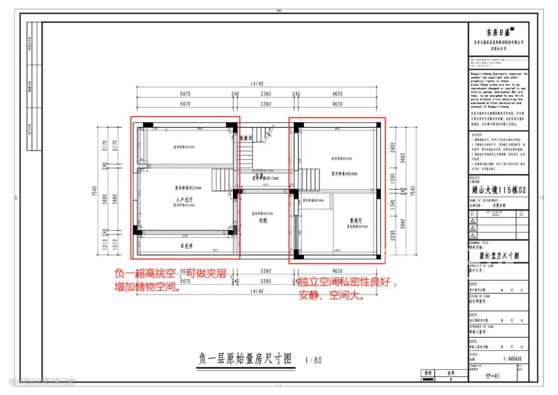
1、负一超高挑空,可做夹层,增加储物空间。
2、客厅面积大,超高挑空,户外独立花园
3、餐厅厨房连通,动线合理,独立后花园,观景俱佳。
4、主卧独立阳台,光线极佳,独立衣帽间,主卫空间大,独立浴缸,干湿分离,合理布局。





缺点分析:
1、负一光线欠佳,空间分区,地下庭院没有合理的利用。
2、客厅餐厅连动性欠佳,楼梯对面挑空区域浪费。
3、餐厅缺少储物空间,以及西厨,中厨合理分区。
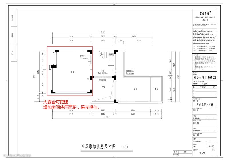
4、超大露台浪费,没有合理利用起来。







户型调整:
1、通过空间重新规划,超高挑空,增加夹层储物空间。
2、通过空间重新规划,增加储物以及藏酒区。
3、通过空间重新规划,搭建过道中空,增加开放式书房空间,最大化利用空间。
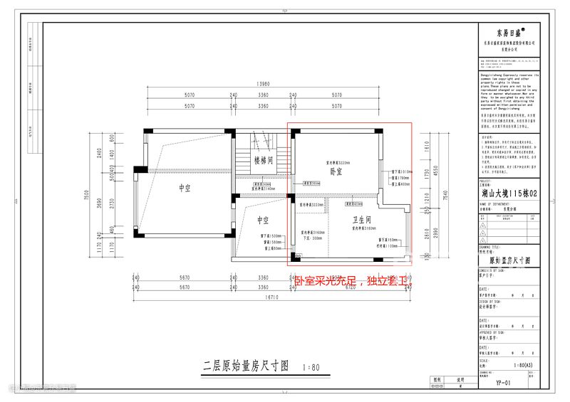
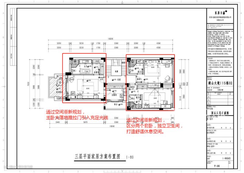
4、通过空间重新规划,区分两个套卧,独立卫生间,打造舒适休息空间。
5、通过空间重新规划,搭建四层独立健身房。
6、通过空间重新规划,打造空中独立花园,露天烧烤,朋友聚餐,观景极佳。
【影视厅】
影视厅安静私密的独立空间,优雅格调的蓝色沙发,高级质感中营造欧式静逸,令人一见倾心。

【休闲室】
麻将房中和谐统一的浅色调,打造出温暖和闲适的社交空间,合理规划布局让空间呈现出秩序美。墙面石膏线营造丰富的层次感。

【负一层休闲区】
楼梯间的灯饰浪漫高级,用复古的欧式纹路与造型刻画出细腻的层次,融入灰色空间,辅以香槟色衬托,使整个空间低调内敛而不失华贵雅致。

【客厅】沙发后方的装饰壁画,简约的线条,抽象的意境呈现出空间艺术美感。超大水晶吊灯为整个客厅增加欧式的氛围。

【客厅】
色调以略带灰度的蒸汽灰为主调,辅以低饱和度的香槟金和蔚蓝色做点缀,欧式的家具带来满满的

【餐厅】
带有欧式特色的家具摒弃了传统欧式的奢华复杂,以柔顺的线条勾勒,将迷人而优雅的风情展现得恰到好处。

【次卧】
次卧的色调以咖色为主,浪漫的落地窗威风轻吹带动窗帘换换飘动,慢慢的欧式情调充斥着整个空间。

【主卧】主卧依旧延续简洁优雅的轻奢风格,大面的落地窗为室内引进充足的光线,烘托了温馨舒适的气氛。米灰色的砖墙面散发出优雅气息,增添了整体空间的质感。


【主卫】主卫中灰色墙砖与米灰色形成强烈的视觉冲击,经典的黑白配色打造出简洁而高级的视觉感受,极具实用性的布局,让人拥有良好的使用体验。