115㎡现代简约风 尽享舒适
北京东易日盛原创公司
2022-06-30
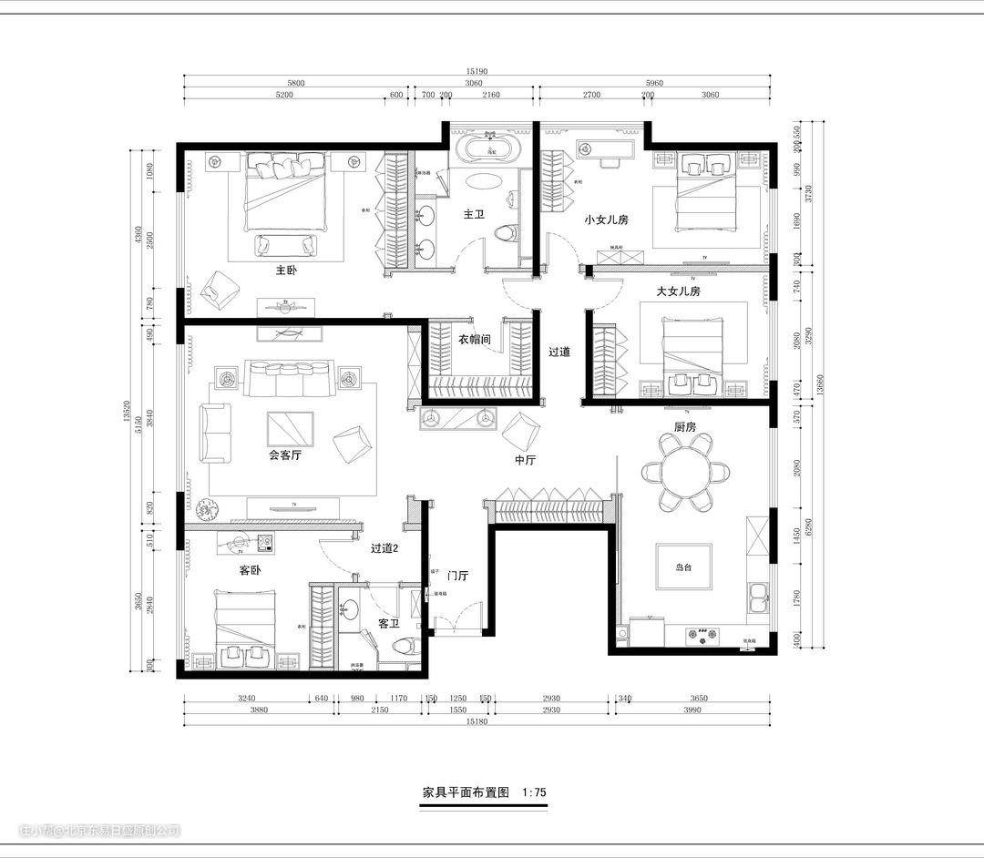
项目户型:三室一厅一厨两卫
项目风格:现代简约风
项目面积:115㎡
设计说明巧妙掌握材质层次的转换与色彩比例,调和住户偏好的沉稳内敛与居宅的舒适感受。层次鲜明天花线板造型,不经意间拉高了空间视觉高度,也成为与廊道空间区隔的隐喻。
户型图

餐厅
现代风的空间,往往是以明亮舒适为主。在这套的现代简约风格装修案例中,整体就是以明亮大方的空间,布置上实用舒适的家具,营造出一种干净优雅的氛围,令人置身其中感受到的是轻松与惬意。

客厅(1)
现代简约风格从简出发讲究舒适的比例、空间结构明确美观,强调外观的明快简洁,体现了现代生活快节奏、实用和简约,但又富有朝气的生活气息。


走廊
抬头望去便是客厅的美景尽收眼底,给人感觉格外舒适。
