苏州大宅设计 | 世茂铜雀台平面方案解析
高展别墅装饰
2022-07-02

项目地址 | 世茂铜雀台
方案设计 | 高展别墅设计
户 型 | 80-102
平面分析 PLANE ANALYSIS
-2F
The Basement Second Floor

△ 原始平面图

△ 平面方案 Ⅰ
地下室的布局装饰有很大的可施展空间,随着地下室防水防潮、通风、采光等措施的完善以及智能家居系统的普及,别墅的地下室也就不止储藏室这一个选择了。
设计师根据业主喜好与实际面积打造成 休闲区、品茗区、吧台区、家庭影院 这几个功能区域,从车库入户比从一层庭院入户频率更高也更方便,所以在车库入户处增加了单独的鞋帽间,更换下每日穿的衣物和鞋,换上舒适的居家服。
旁边便是休闲区,可以当做临时的会客区也可以是一家人的谈心之所,将客厅辟出一片区域作为品茗区,显得庄重而静谧优雅,也不会被其他空间的人或事轻易打扰。做开放式,这样通风和采光会比较好。品茗区对面即是吧台区域,旁边的收纳柜作为储物空间,也增加可操作的区域。
相比于在诸多限制的电影院,闲暇时与亲朋好友一起,享受着或震撼、或温情的视听盛宴,这样的体验可比在电影院舒服多了。地下室不仅隔音效果好,而光线不足的弊端却恰恰成为打造影院氛围的优势,极易营造浪漫幽静的观影感受。

△ 平面方案 Ⅱ
设计师在这稿方案增加了酒窖,地下空间温度低,更适合藏酒,而且其极好的隐秘性更利于灯光营造氛围,让人感觉真正在“酒吧”。对于时尚爱酒人士来说,这是一个不错的选择,不出门就能品尝到美酒的滋味,不得不说是一件很幸福的事。
-1F
The Basement First Floor

△ 平面方案
设计师将原先负二层的挑空利用一部分到负一层,通过现浇隔层,将空间延展,打破负一层狭长走廊。利用现浇起来的夹层空间打造了多功能区域、洗衣房,成为一个有光线有活动空间的区域。
可以作为亲子活动的区域,也可以是独处的冥想室,随意定位其空间性质。
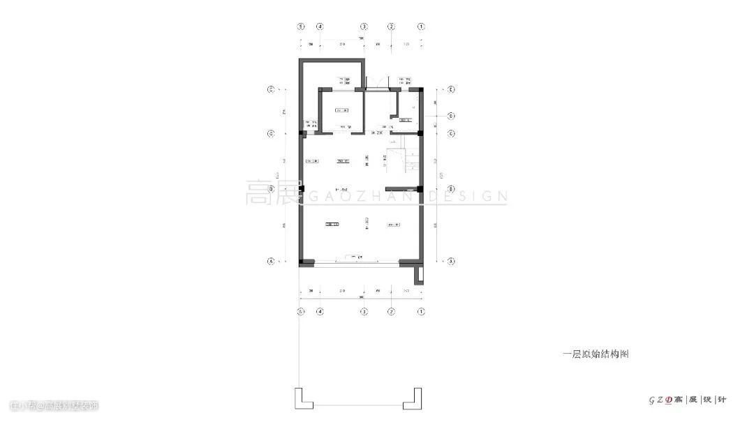
1F
The First Floor

△ 原始平面图

△ 平面方案
一层入户即是玄关,起到一定的缓冲作用,放置了小的鞋帽收纳柜。客厅餐厅一体化,为家人打造一个宽敞舒适的就餐空间,尽显便利。独立厨房 配置折叠门,让家人免受油烟带来的危害,拥有一个舒适明亮的做饭环境。
餐边柜占据了整堵墙,可以当做电器柜和临时岛台来使用,拉长了视觉,使得餐厅看起来更宽敞,用餐的心情也更愉悦。
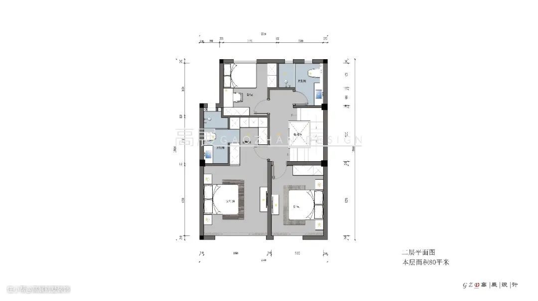
2F
The Second Floor

△ 原始平面图

△ 平面方案 Ⅰ
二层为主要的居住空间,规划成父母房套房、儿童房和客卧。
父母房包含睡眠空间、衣帽间和卫生间,通风好、采光好的房间能有效保证室内环境的健康。因此,父母房选择朝南、带阳台的空间最佳。离卫生间近的房间动线短,方便父母起夜。上了年纪以后,父母的睡眠会变得更浅,容易被吵醒,因此,单独的套房空间更有利于长辈居住。
另一间南次卧可以当作客房,朝北的卧室可以当作儿童房使用,包含睡眠区和学习区,不需要复杂的装饰,以明亮轻快的色彩搭配,在舒适的卧室中营造出一种华丽与简约的气质感。

△ 平面方案 Ⅱ
与第一稿方案的不同之处在于,将北卧室作为独立的书房来使用。
沿墙以整组书柜为背景,前面配上别致的写字台。写字台、座椅的色彩、形状要精心设计,做到坐姿合理舒适,操作方便自然,以实用、简单为基础。
3F
The Third Floor

△ 原始平面图

△ 平面方案
三层为主卧套房空间,除去必要的扩展空间,我们尽可能多的考虑在以实用前提下来满足美观。入户经开放式书房,将其与睡眠区完美的分开;睡眠区毗邻露台,采光和通风都极好。配套功能齐全,宽敞大气,营造舒适的私密空间,大露台可供休闲,可布置花园,可做成阳光房,用途很多。