江御138㎡台式风,宁静致远,舒适温馨
澳华装饰总部旗舰店
2022-07-19

每一所房子都有着不同的居住者
他们的生活千姿百态
设计师的空间理念承载着他的心路历程
而“家”的灵魂存在于业主家人的身心灵感
案例概述
房屋面积/ 138㎡
房屋户型/ 3室2厅
房屋风格/ 台式风
房屋位置/ 江御
大咖设计师/ 柴青忪
业主对室内空间的需求是简约、工整、自然,喜欢开阔通透的空间感受,简单而不浮夸的室内装饰、精致完美的细节表达。
基于这几点需求,设计师选择以台式风来装饰空间,通过运用质朴的色彩加上线条感极强的设计手法,来打造温馨舒适的家。
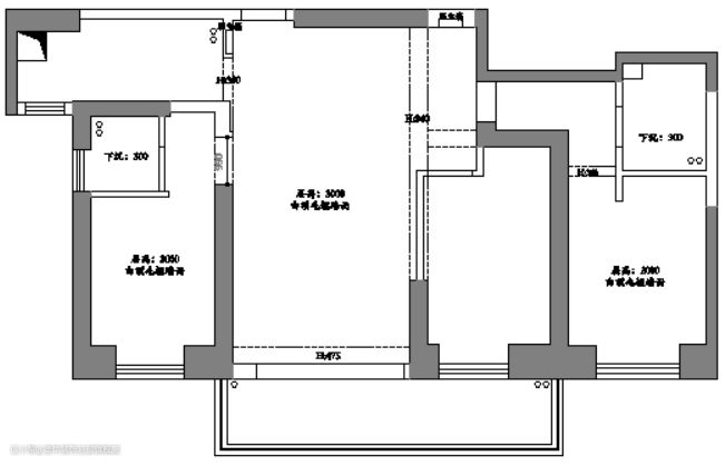
户型解析

原户型房间全部朝南,采光通风都很不错,空间动线明朗,还有个观景大阳台。但对喜欢开阔空间的业主来说,客餐厅面积稍显不足,且业主有做西餐需求,现有厨房空间明显不足以支撑这个爱好。

#户型改造#
1、门口增设L型鞋柜,隔断设计增加归家仪式感。
2、客厅与阳台联通,视野更开阔。
3、缩减书房空间,扩大客餐厅区域,增设西厨区。
4、书房用上翻床,待客、看书、娱乐三不误。
案例赏析
进门左手边定制L型玄关柜,白色的柜门的设计完美衔接顶部,颜色统一,简单和谐。开放式隔间自带补光灯,兼具展示与收纳功能。卡座加底部留空的设计,方便业主进出换鞋。

步入玄关面向的是客餐厅区间,灰色的高雅与木作的浑厚完美融合,再搭配纯净的白,在时尚的质感中彰显着室内空间的舒适与格调。

借用墙体做吧台式餐桌,墙面、桌体选用大理石材质,简单又实用。摆上一束鲜花,在黄铜吊灯柔光的照耀下,营造出一个精致、舒适的用餐氛围。
靠墙做西橱柜,蒸箱、烤箱等小家电内嵌其中,冰箱置于角落,让有限的空间得到了充分的使用,也满足了业主做西餐的需求。

电视做成墙柜的样式,边侧增设一列玻璃门展示柜,简单的材料和色彩,呈现出洁净利落之感。
客厅阳台打通,于阳台一侧做洗衣区,家政柜搭载洗衣池,洗衣机、烘干机内嵌其中,实用不占空间。

阳台的大部分空间作为休闲区使用,藤编茶几、藤编靠椅,搭配半高矮柜上方的鱼缸造景,赋予空间更多的自然气息,更显恬静闲适。
沙发背景墙以简单的硬包做造型,浅灰与原木色的拼接,简洁大方,叙说出台式风简约、自然的基调,传递理性、温雅的日常生活态度。

简单的线面组合,让墙面、柜体完美融合。格栅元素的置入,丰富了色彩层次,更增添了一丝精致感。无需太多的装饰,简单的布置即可营造一方舒适的就寝空间。

书房与西厨区之间选用长虹玻璃门,保障隐私的同时不影响餐厅的采光。因整体空间被压缩,书房选择安装翻板床,来客人时可作为一个临时休憩场所。
黑玻书柜永远自带时尚精致感,尤其是摆上书籍与工艺品后,呈现的是浓浓的文艺气息,彰显了业主不凡的生活品味。

于窗前两面墙体之间做内嵌式书桌,边侧增设储物柜,让这方不大的空间集办公、储物、休憩于一体,实现了空间功能的多元化。