干货 | 我格局小了,看完这套设计我居然爱上了地下室。
长沙东易日盛装饰总部
2022-07-28
王女士刚开始为了让孩子上学便利,离学校近点,选择买了这套房子。
起初看房的时候,父母及亲朋好友都不赞同,觉得有两层都是属于地下室,觉得采光不够,王女士觉得综合性价比比较高,最终买下了这套房子;不得不说有眼光,虽然房子的原始户型一般,但可以通过后续设计进行改造。接下来我们一起看看这套房子是什么样子的?
【一层】

原室内结构厨房空间局促,无法满足业主对于厨房高品质的要求,因此将原封闭式厨房改造为开放式厨房,并将厨房适当扩建,一层公共区域作为中厨、西厨、餐厅、起居室整体开放的空间,洄游式动线贯穿其中。
【客厅】

一层客餐厅连通设计给人以宽敞空间感受,南北通透。横轴动线贯穿整个空间,功能区划分井然,走廊上光影加以渲染,呈现一种流动韵律的美感。

【餐厅】

一楼的核心区域为客餐厅,整体空间的色彩搭配是以深色为主,阳光从落地窗照射在沙发上,为整个空间增加了。宽阔的挑高客餐厅,平朴温润的木色,为空间增加协调性。
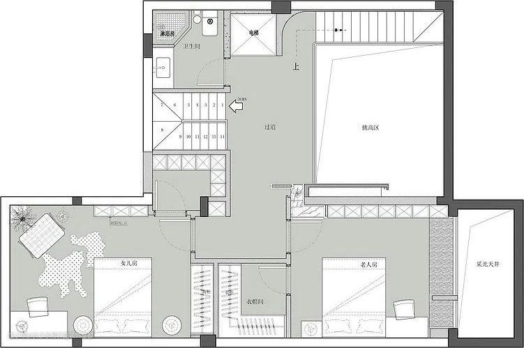
【负一层】

地下室原结构为双采光井结构,全部挑高空间,经过和主人充分沟通后,我们决定现浇隔层以后保留一部分的挑高空间,增加地下室隔层的整体采光及通风。
【卧室】

负一层所有的空间内也有充足的采光,完全不影响日常起居使用,在负一层主要设置了老人房和儿童房,作为核心的起居空间,整体汇入各种自然符号、弧线元素。示意人们偶尔放松心中紧绷的弦,从匆忙的节奏中抽离、回归、治愈,然后关照内心。
【负二楼】

负二层规划出休闲、阅读、饮茶等功能区,夹层得益于双采光井良好的采光条件,规划出两个房间。
【茶室】

弧形掏空的墙体隔断,漏而可望,一方面应采光之需,另一方面符合分隔与沟通的统一的设计手法。沙发及茶几配色呼应一层客厅沙发茶几配色,做到协调统一。
【书房】

书房格调清雅静谧,艺术人文气息浓厚。利用了南边天井采光,书房显得敞亮不压抑。采用了大面积的木作,线条简洁流畅的桌椅,书柜还具有良好的收纳空间,可以让业主收藏喜欢的书画,古玩。艺术吊灯和餐厅上方统一,用线条增加整体美感。根据主人对宁静生活的追求,我们运用软装搭配,注重细节装饰,使空间达到“移步换景”的设计效果, 使整体空间感觉更加丰富,有格调又不显压抑。
虽然这套房子有两层都是地下室,但每一个空间都设计的恰到好处,最终效果让人刮目相看。
案例信息
坐标 | 南宁
面积 | 209㎡
风格 | 侘寂风格
楼盘 | 阅山悦府-阅山居