224㎡极简风格复式豪宅,让人体验大道至简的美。
HA艺墅设计院
2022-08-05
前段时间我们为一个三口之家设计了一套精致的复式住宅,今天我们将这套方案分享给大家。因为业主家里有个女儿逐渐长大,需要给孩子准备自己单独的卧室,并且业主夫妻还准备把老人接过来一起居住,这样一来原来的房子面积就不够了,所以业主夫妻在新开发的小区内购买了这套住房。
业主极度追求简洁的环境,希望设计师能把新房设计成极简风格,打造一个简洁、轻盈的居住空间。同时,业主还追求时尚感,要求在新家中加入潮流的元素,让空间更有时尚感,最终打造一个轻盈、舒适、时尚三种感受结合的家庭空间。
基本信息
项目地址:江苏盐城
建筑形式:复式(带阁楼)
建筑面积; 224㎡
装修风格:极简风格
业主夫妻对于这套新房的设计十分上心,在新房正式开始设计之前,就向设计师提出了很多具体的设计要求
1需要一个开放式的厨房
2在卧室中要尽可能的多设计柜子等储物空间,以后会将杂物全都收进柜子里,保证空间处于极简、干净的状态。
3要给女儿、老人都预留一间卧室,而且尽量在靠近南边窗户的位置。
4多设计出一间卧室作为客房使用
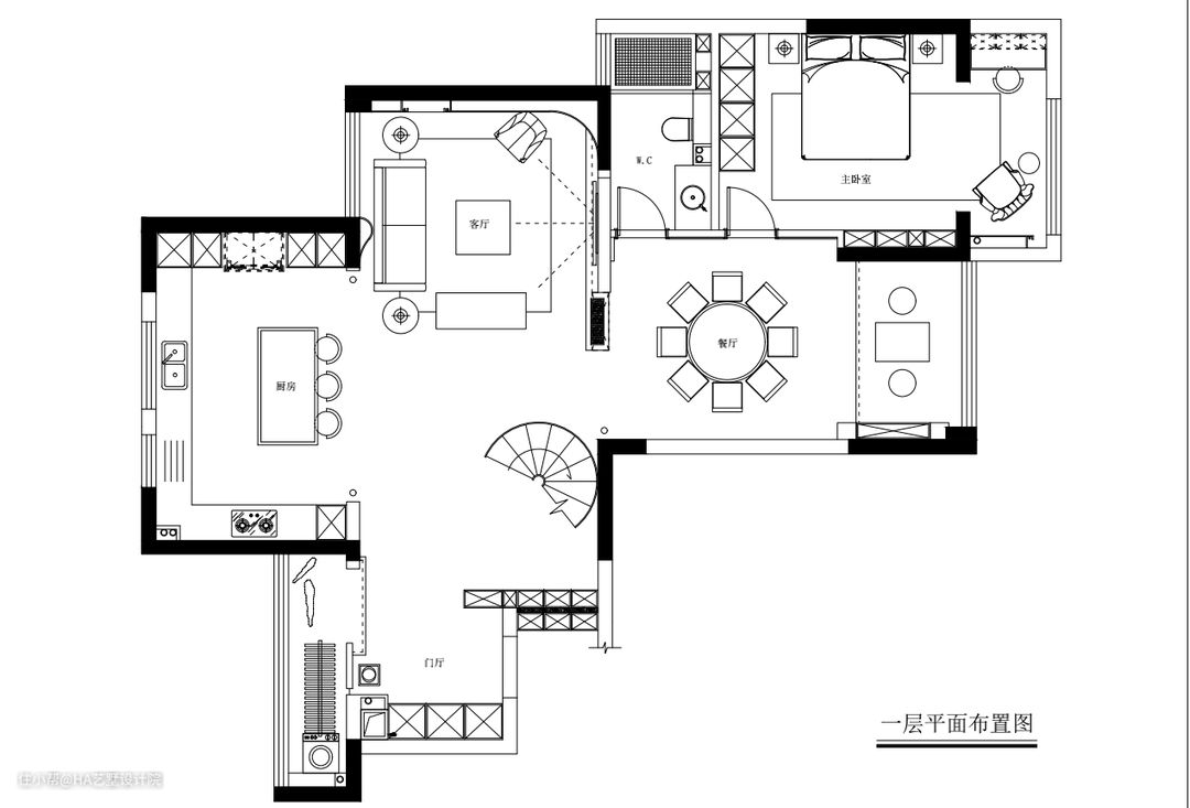
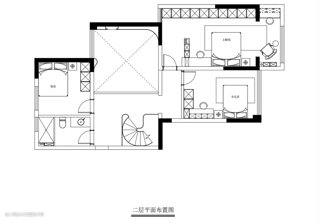
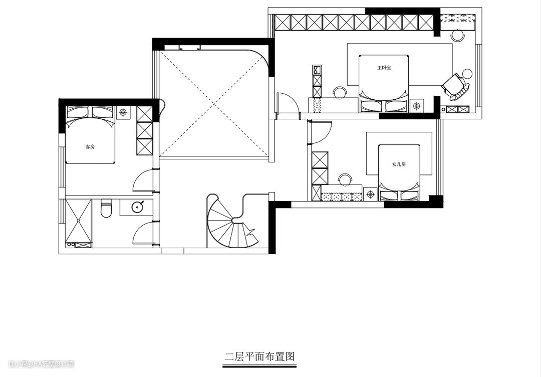
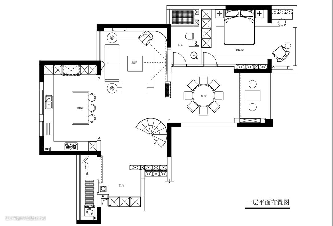
01户型图和平面布置图
设计师带着业主的设计要求来到现场进行了测量,之后根据测量结果对新房进行了如下的平面布局设计
1一楼主要作为起居空间,在这里设置厨房、餐厅、客厅等空间。另外,照顾到老人上下楼不方便,老人的房间也设计在了一层靠近南边窗户的位置。
2二层的南边设计主卧室和女儿房。
3二层的北窗边设置次卧,用来作为客房使用。


02客厅

为了做出业主想要的那种轻盈、舒适、时尚的极简风格,整套住房选择了白色作为主色调,客厅也不例外,并且在建筑的原始结构中,这套复式住宅的客厅位置有一个挑高的设计,这更使得客厅有了充足的空间,能给人极强的空间感,更有大宅气质。

为了创造出舒适、轻柔的感觉,客厅中的所有转角都使用了圆弧设计,并且楼梯也用了螺旋上升的设计,而客厅顶部的吊灯造型十分现代,犹如水中向上漂浮的气泡,这些规则、不规则的曲线交织在一起,营造了一个柔美的环境。
03餐厅

餐厅的背景墙选用了更沉稳的灰色,和空间中大量的白色进行搭配,平衡了大量白色带来的轻浮感,让空间保持了视觉上的稳重,在背景墙上方安装暖色灯带,并且餐厅的餐椅同样选择了浅棕色,这两个元素的加入,让餐厅更有温度,在加上前方的绿植,共同营造了一个温馨且自然的用餐环境。
04厨房

厨房同样采用了灰白搭配的色彩设计,在厨房中所有的橱柜都使用了无造型的灰色门板,并且这些门板都使用了免拉手的设计方式,让表面看起来更加平整,尤其是右侧的一整排高柜,从底部到吊顶沾满整个空间,和墙壁几乎融为一体。在高柜中间预留了一个空间,冰箱正好放到这个空间中,这些设计让厨房显得十分简洁。
05一层主卧

卧室继承了灰白配的配色方式,保持了空间极简且稳重的风格特点。和客、餐厅不同的是,卧室的使用了实木地板进行地面铺装,这让卧室有了更自然温馨的空间氛围,而在床头的两侧还安装了两只柔光灯,在夜晚时柔和的灯光能让人心情更加放松,更能给人舒适的休息体验。
06二层主卧

主卧室在门和床之间做了一个隔断,让主卧室的私密性更强。在主卧室床的旁边还设计有梳妆台,早上起床洗漱之后,业主可以直接坐在这里梳妆,梳妆台上摆放了绿色枝条作为装饰,让这个灰白搭配的空间有了生机。卧室阳台上做了休闲区,业主在不睡觉的时候可以在这里休息。

按照业主的使用要求,在主卧室电视两侧都设计了大量的柜子,这些柜子的门板和电视几乎持平,并且使用了无造型的白色免拉手门板,在视觉上几乎和墙体融为一体,不仅为业主提供了充足的存储空间,同时也保证了极简的空间风格。
07二层次卧

作为客房使用的次卧空间较小,所以在设计上显得更加简洁,整个空间墙壁、吊顶未做任何造型设计,并且吊顶顶部也用筒灯取代吸顶灯作为空间的照明设备,让空间看起来十分干净。在床头背景墙位置使用了灰白色的现代艺术画作为装饰,让卧室有了现代艺术元素。
08女孩房

女儿房的设计则照顾了孩子自己的喜好,在房间中加入了粉色,色彩更加丰富,打破了极简风格的冰冷感,让空间更加活泼。另外,床头背景墙也从灰色换成了深蓝色,并在床头的两侧安装了柔光小吊灯,在床头柜上也使用了插花作为装饰,这些设计让女儿房充满柔和的女性美。
结语
极简风格竭尽全力追求简约,剔除生活中一切不必要的繁琐装饰,这不仅是一种装饰风格,更是一种生活哲学。极简风格设计不以形式为出发点,而是以人的需求和使用为目的,这样设计出来的房间能够兼具轻盈、舒适、时尚的特点,最适合低调、谦和、有内涵的人士居住。