访问APP

400㎡欧式轻奢别墅,这样精致的装修,住着特别舒适

华浔品味装饰集团

2022-08-08

和我们含蓄内敛的文化相比,欧洲的文化更加热情奔放,这种更开放的文化孕育出了奢华、大气的欧式装修,雍容华贵的气质受到很多豪宅业主的喜爱。

设计案例

案例地点:江苏镇江

设计风格:欧式轻奢

户型面积:约400㎡

户型构造:别墅(四层)

工程造价:约43万

主要用材:大理石瓷砖,石材,整屋定制,实木多层地板,墙布等

入住:

将要入住这套别墅的是一个四口之家,家庭成员包括业主夫妻和业主的夫妻的儿子、女儿。他们希望能有一个奢华、舒适的家庭环境。

房屋户型:

地下室

一楼

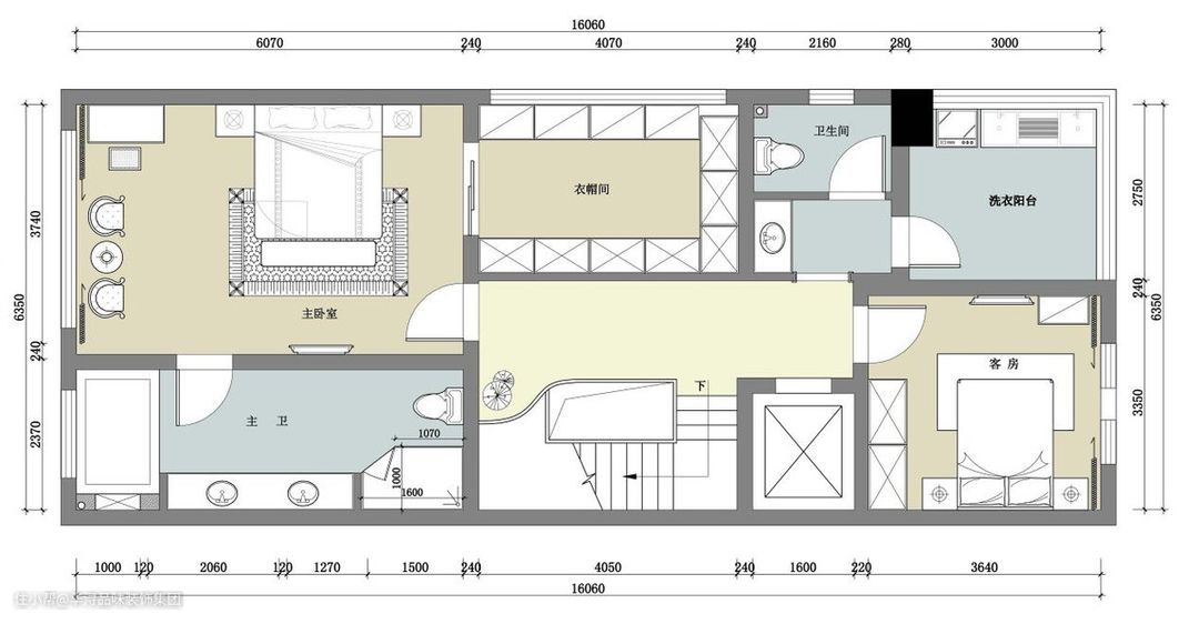
二楼

三楼

业主本人长期从事建筑行业,在设计师接手前新房内部结构已经被改造的比较合理。从分区上看,新房总共分为三个部分,最下面的地下室为娱乐区,这里布置健身房、水吧台、多功能室等空间,供业主和家人娱乐、休闲使用。

一层空间为生活区,这里靠近入户门,是访客最容易接触到的地方,在这里布置客厅、餐厅、厨房灯设施,满足日常生活、会客等需求。

二楼、三楼为休息区,布置卧室供业主一家人居住。其中二楼布置男孩房和女孩房,供两个孩子居住,三楼则布置主卧室、衣帽间等空间,供业主夫妻使用。

另外,在三楼还布置了客房,供业主招待访客使用。

业主需求:

业主本人比较喜欢欧式的建筑,希望在装修中融入更多的欧式风格的设计。另外,业主希望新房的装修能够奢华一些,让自己和家人都能获得更精致的生活。

业主一家人都很注重身体健康,希望在家中设置专门的健身区供他们锻炼身体使用。另外,家中还要设置水吧台、多功能区等区域,供日常休闲使用。

业主想给孩子创造更好的读书环境,要求在二层设置开放式的书房供孩子们使用。另外,业主还希望设置独立的洗衣房,专门用来清洗衣物。

业主全家都很注重穿搭,要求除了客房以外,其它每间卧室都配备衣帽间,供每一位家庭成员搭配、存放衣服使用。

本案的设计理念是什么?

在配色上,别墅的墙壁大量使用乳白色,奠定了别墅空间明亮、温和的基调。再辅以金色的线条进行点缀,营造出明亮、奢华的空间氛围。

在造型上,别墅中使用了罗马柱、卷草纹等多种欧式建筑中的经典造型,这些欧式特征明显的造型让别墅充满欧陆风情。

房屋的原始结构存在哪些不足?

设计师接手该方案时,别墅的内部空间已经做过合理的改造,只需要在一些细节上进行微小的改动即可满足业主的需求。

  1. 原结构中,厨房为开放式厨房,但开放式厨房难以阻挡油烟的扩散。
  2. 原结构中,主卧衣帽间使用的是平开门,门洞宽度比较小,显得衣帽间空间很沉闷。

怎样在原始结构上进行合理的改造?

  1. 重新做隔断墙,将中厨重新变成一个独立的空间,通过隔断墙和推拉门阻挡油烟扩散。
  2. 扩大主卧衣帽间的门洞宽度,将平开门改成推拉门。

本案的风格与特点?

奢华、舒适、精致是本案最大的特点。在本案中,使用了大量的欧式雕花、曲线造型、金色金属装饰空间。这些物品本身就带有浓厚的富贵气,将这些造型融入别墅可以营造出奢华的空间感受。

本案中的家具尺寸宽大,走廊、楼梯等空间的跨度也比较大,人在更大的空间尺寸中活动更方便,心情也更放松,不会有局促的感觉。

在本案中,无论是楼梯扶手上的金属雕花,还是墙壁、吊顶上使用的石膏雕花,他们的造型都十分精细、没有模糊不清的地方,这样的物品能传递出精致、高级的感受。

设计过程中有哪些独到的小心机?

一般卫生间中的镜子都是一个平整、毫无造型的平面,这么大的一个平面摆在面前难免显得单调。

在本案中,设计师将卫生间中的镜子做成了花瓣的形状,不拘泥常规的样式能给人眼前一亮的感觉,也让卫生间显得更加精致。

最满意的一个功能区?

开放式书房书最满意的功能区,这里使用了落地窗,保证了空间的明亮。书房选用了一套深色的家具,奠定了书房沉稳、端庄的气质。

在深色的家具上搭配橘黄色的坐垫、靠背、背板,用鲜艳的颜色活跃气氛,营造出沉稳但不失活力的书房氛围。