装修81平米的房子,简约风格摒弃繁琐,美观实用还省钱!
天津力天装饰
2022-08-15
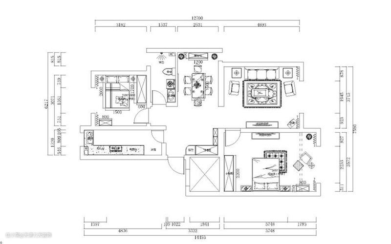
本案小区:红磡领事郡雅花园
本案户型:两室两厅一卫
本案面积:81㎡
本案风格:简约
设计说明:本案为红磡领事郡雅花园两室两厅一卫81㎡户型,这是30岁左右的单亲妈妈带着一个三岁的男孩居住,女主人为了能给孩子一个更加良好的生活环境,决定重新改造这套房子,希望把原本的三室一厅的格局改为两室两厅,并且能增加可使用的功能,阳光力天装饰的设计师与业主沟通之后,并结合业主的需求,风格定义为简约,今天我们就一起来欣赏这套81平的房子装修风格简约效果图。

一、玄关
进门的右侧就是玄关柜,采用拐角的造型,增加了使用率,光晕的层次感与绿植带来的自然气息扑面而来。

二、客厅
客厅拥有大落地观景阳台,视野豁然开朗,美景一览无余,阳光也可以更充分的洒进来,电视背景墙使用木地板上墙,为空间增加更多惬意与舒适感。

三、餐厅
将原来小的书房改为餐厅,拆改后面积较大,定制一个柜子可以将冰箱包起来放在餐厅,既美观又不会使厨房拥挤。

四、卧室
卧室有一个大大的阳台,看起来地方非常的大,再加上大的窗户,可以让人在午后得到更好的休息,细节之处满满的氛围感。


针对这套81平的房子装修风格简约效果图,大家觉得设计的怎么样?为此,阳光力天装饰的设计师表示,通透户型采光好,室内通风理想,整体平面比较规整,功能合理,打造精致空间,适合年轻人居住。
想要了解更多装修案例信息,请私信咨询我吧!会给您一个装修上的专业性建议。