148㎡现代中式风格,高贵典雅的东方意境
西安业之峰原创设计
2022-08-19
前言:
方案整体空间调性以浅灰色为基调,搭配大面积原木色,营造出一种简洁、利落的空间氛围。将阳台全部外拓,整合公共空间打开了从客厅到餐厅的整体格局,通透而敞亮。屋主喜欢中式的简约和经典设计师利用米色和咖色来打造轻松惬意的起居空间实木家具、玉扣、茶桌、丝绸等装饰无不点缀出中国古典元素,尽显屋主的高雅品味。
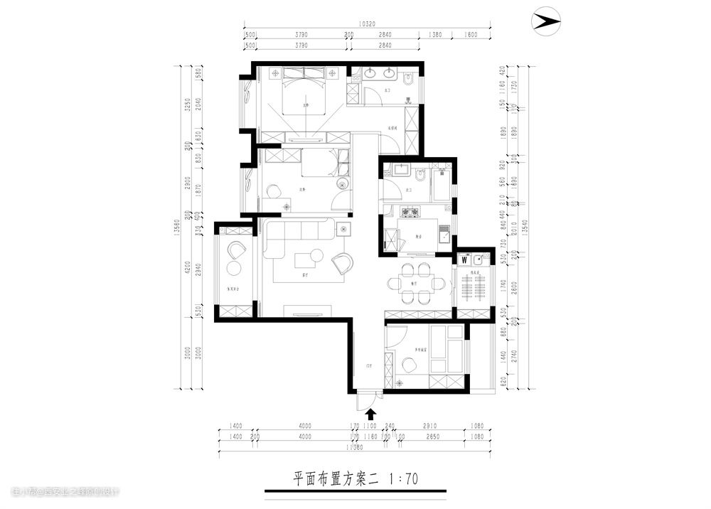
原始户型图

户型优点:
1、南北通透,各房间采光充足。
2、过道少,空间利用率高。
3、四个房间方正,空间比例尺寸大。
户型缺点:
1、主卧门面对入户门。
2、主卧缺少储藏室衣帽间。
3、北阳台面积小利用率低。
平面布置图

户型改造点:
1、将主卧门口移位增加衣帽柜储藏。
2、将主卧墙面移动扩容,增加衣柜储藏。
3、北阳台空间过小,设计空间改造,改造成多功能室,增加空间情趣功能。

整体采用新中式的设计手法为中心,整体空间材质搭配以实木与大理石材质为主,黑色的装饰线条与浅灰色的墙板形成鲜明的对比,突出空间整体大气高贵高品质的感觉。

背景源自古代山水泼墨的造型,加以白色浅灰色墙板,让空间多了几分丰富之感。设计师将简约别致的现代风格和东方艺术的光洁质感融合在一起,金属色、木色、灰色相互协调,不动声色地勾勒出视觉重点。色调延伸、包裹,追求时尚和格调的同时也不失家的温馨舒适。

主卧室色彩深浅搭配,比较沉稳与低调,采用沉稳的木色来创造安静柔和的氛围,简约的内饰边线于墙面和天花板勾画出层层几何形态,没有一丝累赘感。作为点睛之笔糅合在整体简约的氛围中,成功地利用小细节打动空间,用暖色调丰富了空间调性,增加了空间的慵懒。

相对而言,女儿房的设计更倾向于柔和治愈。莫兰迪色系作为基础色,圆润的线条造型和床头的摆件增加了空间内的童趣,富有造型感的座椅以及一系列深色与浅色的交替搭配,让空间多了一些梦幻。
