70㎡现代两居,收纳空间超级大!再多也能装!
上海禧鑫装饰
2022-08-20
【导语】本案是两居室户型,业主夫妇热爱音乐,购置了钢琴和两架古筝。原本户型没有空余的房间放乐器,于是要求设计师重新规划空间,专门腾出一个音乐室。


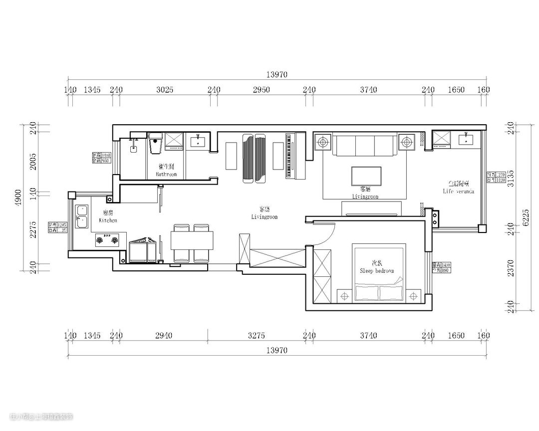
▲平面图

【玄关】深蓝色的入户门嵌在淡黄色墙面,纵向纹理在视觉上拉高了层高,且又亮眼美观。入户后左手是餐厅,右手就是及顶玄关柜,阶梯设计层次感更强烈。


【客厅】客厅追求简约,灰色护墙板拼接深色木饰面,起见穿插了金属块儿,与金属落地灯相呼应,轻奢感呼之欲出。地毯上安置三人座白色沙发、岩板茶几和一个藕粉的单人沙发,舒适度百分百!


【餐厅】餐厅在入户处,与厨房相通。金属与岩板组成的餐桌简洁优雅,餐椅皆采用绒面材质,粉与绿相互交错摆放, 清新又养颜。餐边柜做成嵌入式并延伸到了厨房,开放格错落有致,提供超大的收纳空间。

【厨房】厨房空间不大所以做成了开放式,满足多人帮厨的需求。L字型台面让活动空间最大化,方便下厨者施展。台上台下都做了收纳柜,微波炉等电器嵌入,提高了空间利用率。

【主卧】主卧背景墙刷棕色乳胶漆,以低饱和色块组合成的挂画点缀。金属包边的软包床头简约大气,勾勒出轻奢的气息。海水蓝与红橙色、褐色点缀,彰显主人的独特品味,慢慢的现代气息。

【主卧】进入主卧,右手边就是衣柜,为了给女主人一个梳妆的地方,就利用衣柜做了梳妆台,嵌入灯带补充光线,为女主人化妆、护肤提供便利。

【阳台】客厅的大理石砖延伸到阳台,白色漆面的原木柜子营造出简约感。玻璃窗最大程度地采纳外界光线,在这里晾晒衣物比较方便,所以在柜子内嵌入洗衣伴侣,看起来整洁有序。

【书房】书房是延续客厅的风格和色调,无主灯设计在夜里提供如昼光明。满墙的相框将会放上一家人照片,将和谐有爱的家庭氛围传递。因为业主一家都喜欢音乐,尤爱钢琴和古筝,所以将这些乐器陈列,闲暇时随手弹拨,接受音乐的熏陶。