300㎡中式气韵大平层,细节里都透着墨色茶香
深圳美迪设计院
2022-08-28

户型面积:300㎡
设计风格:新中式
案例详情
小区外部交通发达,内部环境优美,闹市取静。业主是一对中年夫妻,希望自己的家在新中式风格的基础上,有高级且明亮的视觉感受,结合业主的需求,设计师为业主打造出了这样一个浸透着中国气韵的文化空间。

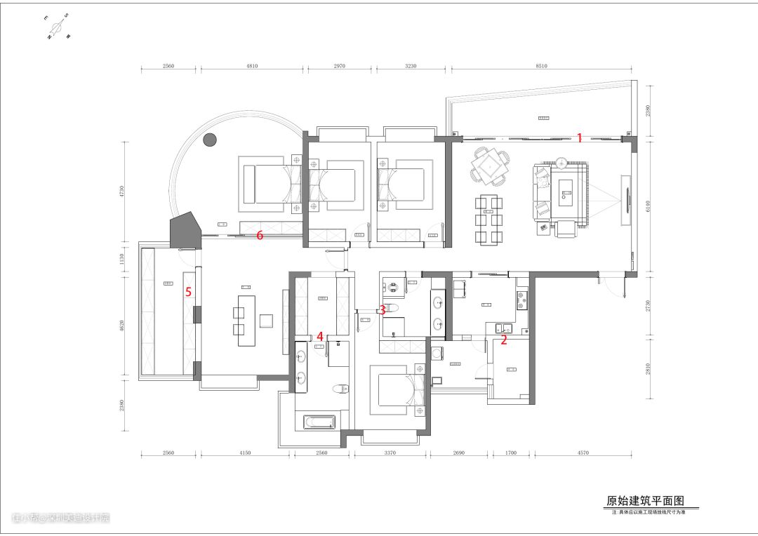
▲原始结构图
根据客户需求,设计师对户型平面作出如下改动:
① 休闲阳台隔断移门拆除,把休闲阳台空间并入客餐厅公共区域,增加空间功能体验与视觉感观;
② 拆除库房墙体把库房空间并入厨房空间,增强厨房采光与空间尺度;

▲平面布置图
③ 移除公卫墙体,外移客房房门,利用移动的墙体空间增加收纳空间;
④ 压缩主卫空间,扩大主卧女主人衣帽间收纳实用空间;

▲立面结构图
⑤ 拆除主卧休闲阳台衣帽间,改为休闲空间加强体验感;
⑥ 拆除主卧通墙移门,改造为步入式男主人衣帽间。
客厅设计 Living room



电视背景墙采用进口亚克力材质,温润如玉、细腻光滑的材质特性给空间更多的留白与想象。无主灯设计搭配智能设备,能够更好的贴合居者的生活习惯与需求,根据当下的活动场景切换不同的照明模式。
双层石膏板搭建古建式斜坡吊顶造型,同时辅以金属线条收口,简洁大气又不失韵脚。极窄的空调风口、线型轨道照明更体现设计的细节感,与中式风格的线条感相互呼应,相辅相成。


客餐厅的设计涵盖了休闲、接待、观影、就餐、喝茶等功能属性,空间与时间、文化、自然之间相互兼容,超大落地玻璃窗最大限度的敞开空间尺度,将室外的景色不留盲角的收入室内,置身室内感知四季交替,日月更迭。



整个空间以精致典雅的黑胡桃木作为主色调,大行其道的极简设计手法,叠加水墨画、格栅等中式元素,仿水墨线条的地砖也在呼应整个空间气场。收纳柜体一门到顶,穿插黑色钢板柜突出空间层次,功能性之外还体现着设计师的审美与空间设计理念。

动者喜酒,清者礼茶。从结构和功能布局,到一桌一椅一花一木,都通透的体现着传统的处事哲学,韬养含蓄、和而不同、禅思高远。
卧室设计 Bedroom


主卧天花延续古建制分段式斜坡顶,背景选用分段式古建群图案,远处大雾升腾中朦胧高山意境悠长。空间布局采用叠加、借景的设计手法,空间隔而不断,互动情感的交集更强。自然宁静的空间设计指向,营造出治愈素朴的空间氛围与心境,同时追求空间与自然的融合。

主卧室配备步入式男主人衣帽间与独立女主人衣帽间双衣帽间设计,墙面大面积采用黑胡桃木的颜色,低调内敛。

主卧阳台同样采用270度落地窗打造舒适的观景阳台,肌理质朴的白沙米黄天然石材,镶嵌黑色的金属收口条、金属书架,拴马石金属展柜,搭配深色生态木,营造出沉稳安静的空间意境。


森林、城堡等自然元素被引入儿童房的背景壁布,收纳区域打造活泼张扬的小木屋玩具展柜,曲线太空窗台也为孩子的房间增添了童趣氛围,给小主人更多的想象空间。
书房设计 Study room


这个特别的圆弧造型空间设为书房,立于中心的木质书桌质感温润质朴,仿日照灯的设计营造书房阅读的自然光感。线条流畅的书柜设计,实现收纳功能的间隔有致。
喜欢这个作品案例吗?欢迎在评论区留言哦!
注:因距离受限,本部除深圳及周边(广州、东莞、惠州等)以外的地区,只接受纯设计,敬请谅解!