无主灯+悬浮吊顶,就是这么配!
昆明东易日盛
2022-09-26
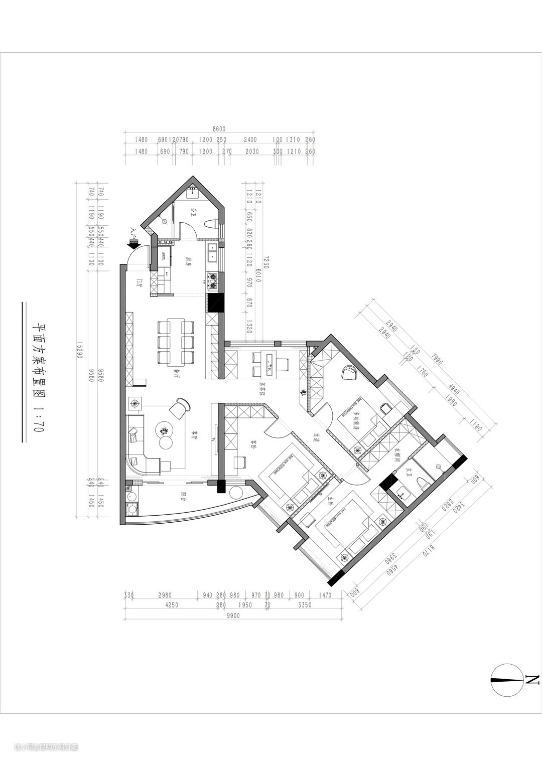
该户型为异形,整体设计采用浅色系为主,造型简单实用
------
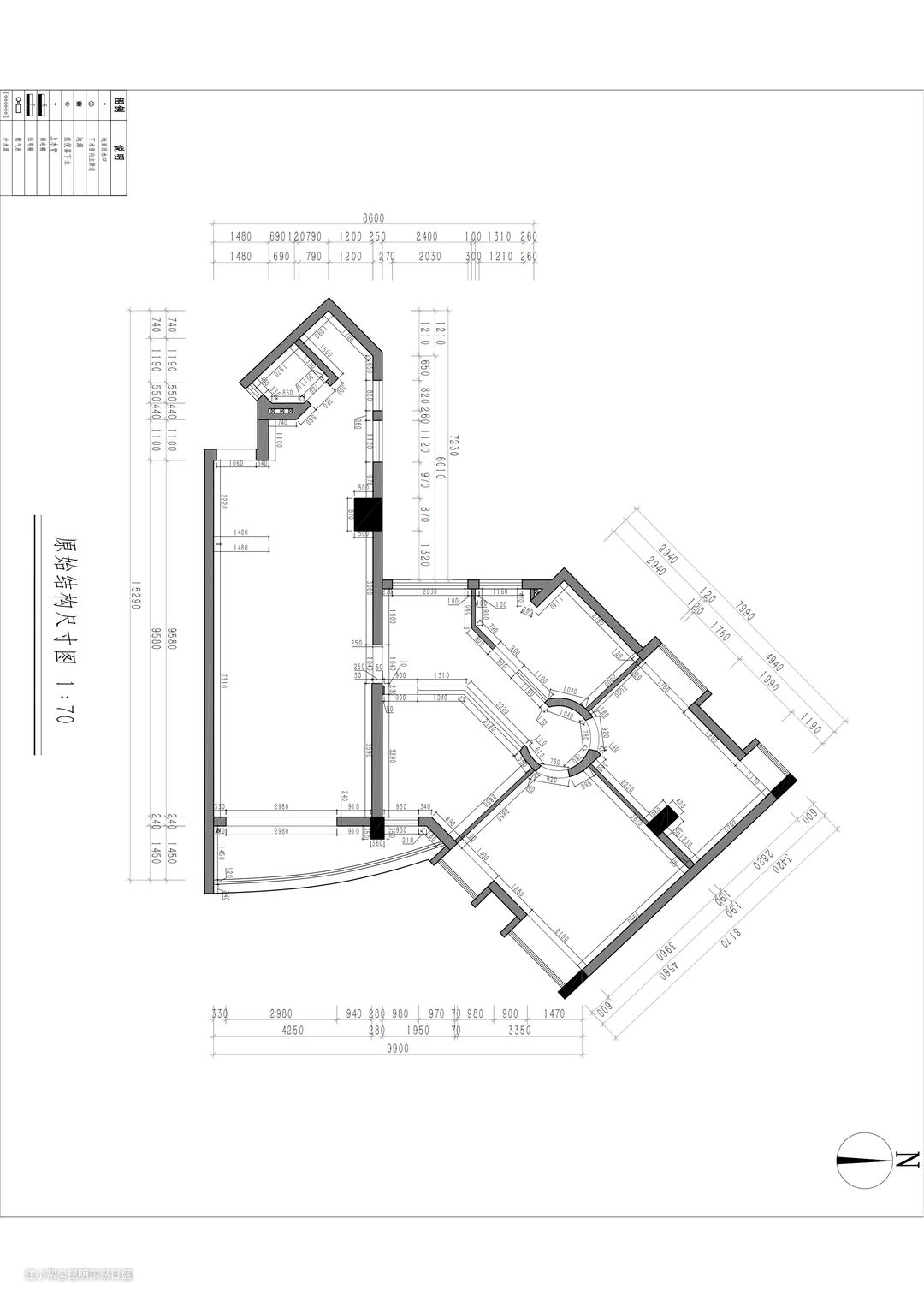
【原始结构图】

------
【平面布置图】

------
【餐厅】
整体空间主要采用白色系为主导,酒柜中暗藏灯带,将光元素设计发挥到极致

------
【客厅】
简单的石膏线吊顶,但是又额外做成弧形造型,在简单的空间中突出不一样的特点

------
【客厅】
大理石上墙做背景,美观易清洁,在旁边做竖排储物柜,互相搭配,让功能更加突出

------
【卧室】
嵌入式筒灯配上中央空调,整个空间一片祥和安宁

------
【卧室】
去掉一个床头柜位置,用作梳妆台,加上飘窗空间做收纳
