100㎡温馨大改造!两房改三房,阳光卧室,自成舒适圈
喜迎门乐家装饰20年
2022-10-11
很多朋友都会苦恼,看中的房子并不是百分百满足居住需求,怎么办?其实大部分情况都可以通过装修来解决和改善哦!

地址|Project address:昌岗东路
面积|Square Meters:100m²
风格|Style:现代简约
户型|Apartment:两房改三房
设计|Designer:吴敏东
管家|Foreman:陈平
装修|decorate:全案
前言
今天要介绍的案例就是典型的两房改三房,根据家庭成员的需求进行房间大小、方位、配置的设计,给孩子充分的独立成长空间,同时还要保证公共区域的宽敞以及动线流畅。一起看看他们家的改造成果吧~ Before

After

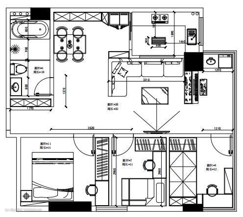
户型解析
设计需求:1.选用一半阳台空间,实现两房改三房2.客餐厅的梁都比较低 需要处理3.卫生间没沉箱,马桶位置需要考虑


玄关
玄关处的鞋柜内嵌处理,墙面平整,顶天立地,充分利用空间且不影响走廊宽度以及光线;浅咖色柜门与木色背板搭配,色调和谐高雅。

中部镂空可以放进出门需要用到的小物件,底部则方便存放常穿的便鞋或家居鞋;右下角暗藏着换鞋凳,可以让孩子养成优雅的好习惯;自动感应灯带散发着暖光,晚上到家也有一盏灯为你而留,倍感温馨。

客厅
客厅是家人平日放松、娱乐的场所,为了增加空间利用率以及扩大视觉效果,除了把阳台纳入,还选用了无主灯的设计。

简约的线性灯既能满足日常照明的需求,还能减少主灯对层高的影响,整体更显清爽和大气。明亮的光面瓷砖与白色墙漆相得益彰,充分利用自身优势,发散光线,使空间显得更亮堂。

电视没有上墙处理,轻盈的支撑脚稳稳伫立,方便随时调整角度和位置。 “一”字型的电视柜可收纳更多杂物,视觉上显得更为轻巧,下方镂空处理,减少卫生死角。

为了提高观影的舒适度,可调节角度的电动沙发可谓是业主的心头爱;旁边的按摩椅则能为家中的上班族和学生拂去日常的劳累,听着电视的白噪音,不经意间就进入了梦乡。

房屋的配色以黑白灰为主,客厅区域亦无冗杂多余的装饰,一只亮黑神气的杜宾犬摆件足矣。

卧室
主卧的软装色调十分统一,以米色和灰咖为主,沉着稳重。由于窗户较小,整体光线较暗,因此选择一盏设计感满满的圆环型主灯,有效提高室内亮度。

为了弥补原始户型的不足,同时为主卧增加一处亮点,设计师特意在床头凹陷的区域增加一副格栅作为背景墙。

靠窗位置光线充足,特意定制了书桌区域;上方的茶色玻璃柜子可储存杂物,加上自动感应灯带,拿取物品更方便。

儿童房
房间的小主人正在上小学,因此在房间的软装部分加上了些可爱的“小心机”,既符合该年龄段的活泼可爱,又不会显得过分幼稚。

兔子造型的床头软包立体有趣,软绵的触感能有效保护孩子的头部,头枕而眠,极具安全感;桌角磨去了棱角,做成圆弧设计,减少磕碰撞伤的危险。


书柜整体采用清新的薄荷绿,与白色的书桌相互映衬,粉色的儿童学习椅成为屋内一抹亮丽的色彩。

衣柜与书桌一体化的设计不仅最大程度利用了空间,还能丰富其功能性:衣柜的拱门造型开放格可以充当书柜、置物架,书桌延伸部分与床无缝连接,可作为床头柜使用。

另一个女孩房是纯白色调,简约但不失格调,储物功能充足,符合高中艺术生的需求。

榻榻米的设计充分利用了两侧的墙面,创造出轻薄的衣柜和储物柜。床底更有三个按压式的大抽屉,可以存放大件的床铺被褥、冬季衣物,拿取也不费力。

房间保留原有的大窗户,两面通透,采光充足;虽面朝西向,但日落的阳光透过窗纱溜进房间,说不定能给艺术少女带来独特的创作灵感呢~

高低错落的定制柜将休息区和学习区分开来,同时并没有为了增加储物功能而把空间都填满,合理的搭配和留白创造出呼吸感。

餐厅
家中常住人口为4人,因此饭桌选择了1.3米长度的,搭配四张皮质餐椅,不占据通道空间,保证进出厨房的动线通畅。爱马仕橙作为餐椅的里色,瞬间从沉稳的色调搭配跳脱出来,高级又吸睛。

房屋有不少无法拆除的横梁,设计师为了弱化其存在,配合梁的位置在内部设计了圆弧造型的天花,在外侧的光线映照下,墙面出现了明暗双色,仿佛是一个浑然天成的艺术品。

厨房
厨房三面通透开阔,配合带灯的凉霸使用,夏天下厨也不会热出一身汗。L型格局的设计保证了厨房的活动空间,多人同时操作也不觉拥挤。

进门处左侧的高柜合理分区,上方可储存烘焙用品、锅碗瓢盆等杂物,下方内嵌烤箱和消毒柜;水洗区则搭配净水器和洗碗机,水槽下方还能存放清洁用品。

抽油烟机管道利用吊柜修饰遮盖,扁平的超薄顶吸式弱化机器的存在,提高视觉观赏性。

橱柜相对的墙面设计了一个玻璃窗,给平淡的生活增添了不少趣味。可以透过窗户聊天说笑,增强家庭成员间的互动;下厨时也能忙里偷闲看看电视;甚至可以从小窗户直接传递水果、小吃,直达舒适的观影区呢~

阳台
阳台区域纳入客厅,但仍保留半墙的大窗户,打造为多功能洗晾区。根据洗衣机的高度定制了洗手台,旁侧增加柜门,收纳琐碎杂物和洗涤用品;上方安装了电动晾衣架,衣物清洗完毕即可按下按钮,转身晾晒,轻松省力。

午后烈日当空照,拉上香格里拉帘和轻柔的窗纱,光线瞬间变得柔和了许多。此时伴着窗缝的微风,温度适宜,岁月静好,小憩最佳。
卫浴
干湿两分离+浴霸的使用、浴室柜的底部镂空,都能让卫浴间日常保持清爽;马桶上方设计了三个等大的壁龛,与洗漱区的壁柜呼应,可储存纸巾、洗漱用品、清新剂等常用的日杂品。

淋浴区旁还有一个方正的大浴缸,主要是给孩子戏水玩耍,解放天性;大人偶尔也可以泡澡,洗涤白天的劳累与尘埃,给自己充满电。

貌美的长虹玻璃门可谓是卫浴间的颜值担当,透光留影,配合磨砂炭黑色门框,一整个高级住了!

Q对话设计师
Q1:您觉得本案在改造上的难度是什么?
A:难度主要是体现在2房改3房的采光分布,尽量不让任何一间房间完全成为暗房;还有客餐厅的梁都比较低,需要合理设计来处理,弱化它的存在感。
Q2:您觉得在本次房屋设计中,最大的亮点是哪里?
A:其实亮点和刚刚说到的难度比较一致,还有一个就是无主灯的设计,需要保证照明的同时,能让客厅在视觉上更开阔。
Q3:对于两房改三房的改造,有什么地方需要注意的?
A:房间尽量保证有通风对流,还要注意梁的问题,尽量优化格局,让每一位家庭成员都住得舒适。
Q4:对于房屋的改造和设计,您觉得哪些环节最为重要?
A:与业主沟通上比较重要,要在沟通中了解到她们的生活习惯,结合房屋的实际情况进行取舍,才能有双方都满意的设计,后续的施工才会顺利,落地效果也能得到保证。
#室内设计#室内装修#旧房翻新#广州装修#广州设计#天河装修#天河设计#荔湾装修#荔湾设计#越秀装修#越秀设计#海珠装修#海珠设计#海珠装修#白云装修#白云设计#番禺装修#番禺设计#南沙装修#南沙设计#二手房改造#二手房翻新#两房改三房#全屋定制#软装设计#软装搭配#衣柜定制#橱柜定制#榻榻米#儿童房#室内设计#广州室内设计#广州全屋装修#广州装修公司#装修灵感库#木地板#餐厅设计#厨房设计#吊顶设计#客厅设计#客厅装修#壁龛#背景墙设计#背景墙