意式轻奢风美爆啦!暖调给人以温暖舒适感。
啵啵装饰
2022-10-16
方案解析
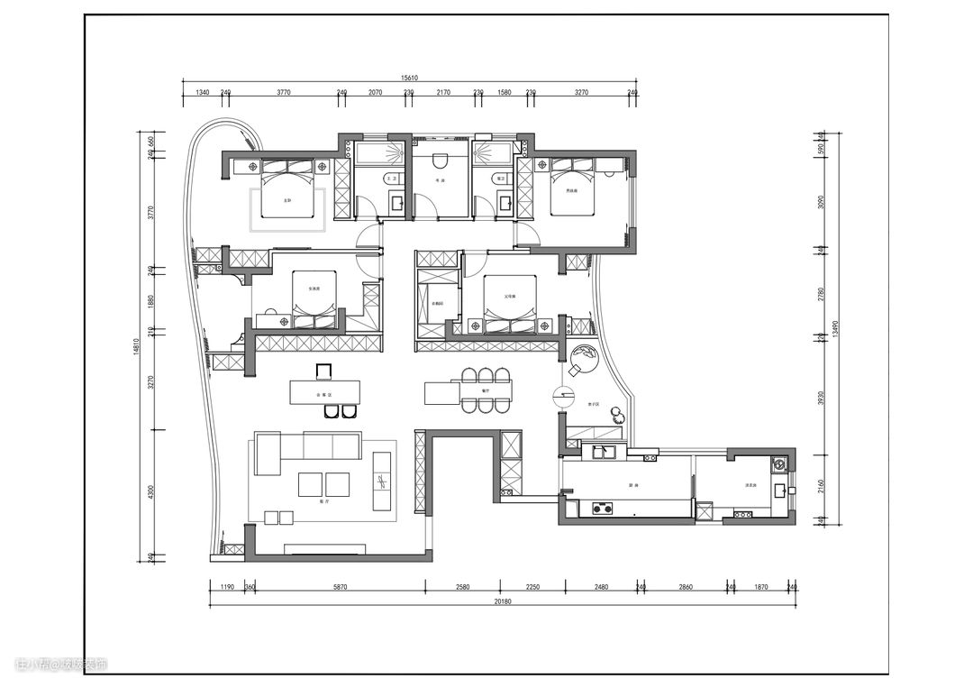
在杭州可选择作为理想居所的板块有很多,但是兼得繁华与静谧的板块却不多见,观澜时代就是其中之一。随着交通的改善与商业配套的成熟,将下沙作为第一居所成为了越来越多人的理性选择。业主夫妻两经过不懈的奋斗与努力,在沿江板块,买下了人生的第二套房子。坐拥一线江景、千亩湿地,全杭州唯此一处,是杭城景观美丽的居所。

218㎡的面积刚刚好,但空间划分比较零碎。很多堵不合时宜的墙分割了房间,导致房间不能得到最大程度的使用。业主有一个儿子,喜欢科幻,父母希望给儿子充满想象的童年。设计师测量考察,了解客户需求后,进行了针对性改造,希望家可以成为舒适的港湾。
客厅

我们设计师秉承感受空间,尊重自然的理念。正如他所说:“我曾经非常渴望进入一种平衡状态,让作为设计师的我能够从容处理空间和光线,然后使美丽、天然的材料创造出充满人情味的作品。” 用宁静的方式抒写空间秩序,以抽离的情绪从容的描绘时间。 对客厅拆除了所有阻隔视线的墙壁,让整个客厅尽可能的扩大开放。

客厅电视背景墙放一块大理石,内嵌式的电视机。地砖选用哑光,在这个开阔的空间下,显得低调又高级,显现出主人的稳重。悬浮式的吊顶,全屋无主灯设计围绕轻奢的主题。
餐厅

已玄关为分界,区分客厅与餐厅,是一个仪式感满满的设计。尤其有亲朋好友来相聚的时候,非常提升调调。玄关往右又是一个独立空间,是餐厅。餐厅与厨房打通,显得空间够大,实际上也可以摆放下一张8人用餐的圆桌,让吃饭都有仪式感。俯瞰加上轻奢系列的吊灯,满满的高颜值颜值餐厅。
厨房

厨房空间足够大,大了有点浪费的感觉。所以设计师就匠心的在中间设立了一个导台,可谓是点睛之笔,实用又高级。白色的柜体与深灰的岩板组合,大气敞亮。白色为主色调的厨房,适合这个面积足够大的厨房,另外也显示出了主人的高贵。
主卧

主卧墙面采用肌理壁纸,加上主人最喜欢的蓝色为背景板,点缀加入氛围灯,让整个房间充满律动感。简约的线条灯,让空间呈现素雅宁静质感。一动一静遥相呼应,这个正是让美丽的材料充满了生命。将传统的飘窗,设计成了喝茶休闲谈话的地方。更让传统的房间充满功能性,不只是睡觉,让谈天论地也充满了仪式感。晚上坐在飘窗上看看星星月亮也是一种享受,享受片刻的宁静,观望遥远的星空
次卧

有温度的简约,有韵味的空间。米色背景饰面最是温暖,给人舒适氛围的同时也给人舒适的睡眠。
儿童房

很有范儿哦,功能齐全的儿童房间,充满未来感的房间。探索浩瀚宇宙,对未来对科学充满向往,从小要热爱学习,激发好奇心。 背景墙就是以星球,宇宙图案为主题,星星闪闪。定制书桌,书架,以及床等都恰如其分,兼顾美观与使用,并且符合业主儿子的爱好。
卫生间

台面大理石显高级感,台盆上增加了储物格,可以供平时囤放化妆品,非常使用。淋浴房与外界相连,通风非常的好,地面容易干。