120㎡现代风格住宅,经典的装修样式,住多久都不过时
华浔品味装饰集团
2022-10-21
很多当下流行的装修样式新奇且独特,刚开始看到的时候的确会给人眼前一亮的感觉,但家庭住宅毕竟是大家常年生活居住的地方,时间一长难免会对家里的装修产生审美疲劳。那么新家如何装修才能抵御审美疲劳,长时间保持新鲜感呢?
本期案例是一个三口之家准备的住房,业主夫妻都是工薪阶层,家中还有一个刚上幼儿园的小孩。业主明确表示这次装修完之后很多年内都不会再次装修,因此希望设计师多用一些经典的设计元素,为他们一家人打造一套经得起时间考验、样式不会很快过时的家居空间。

案例信息
案例地点:江西省九江市
设计风格:现代风格
户型面积:120㎡
户型构造:三室一厅一厨一卫
主要材料:岩板、通体大理石瓷砖、乳胶漆、硬包等
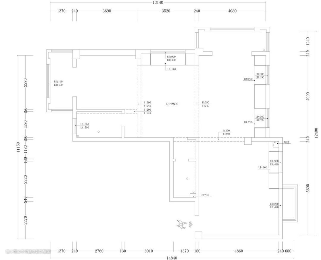
房屋户型:


这套住房的南阳台朝向正南方,室内环境干爽舒适。虽然北侧没有窗户但最右侧的墙壁带有多组窗户,室内通风、采光充足,环境宜居。在装修好之后新房内总共有三间卧室,这是新房的静区,可供业主一家人和访客休息使用。剩余的部分是房屋的动区,布置有客餐厅、休闲阳台、卫生间、厨房等区域,供业主一家人日常生活起居使用。
业主需求:

业主家中经常来客人,所以除了主卧室和儿童房之外,业主还希望在单独预留出一间次卧当作客房使用。业主家中的杂物很多,他希望能在新房中多设计一些储物空间。
另外如果空间足够最好能在主卧室设计一间衣帽间,供他和妻子存放、搭配服装。业主有在睡前看电视的习惯,因此要求在主卧室安装电视机,这样他可以躺在床上看电视。
本案的设计理念是什么?

在吊顶、墙壁等硬装部分,本案使用灰墙白顶的颜色搭配方案,奠定空间简洁、优雅的基调,并且无论是灰色还是白色都是家装中最经典的颜色,用这两种颜色装饰出的房屋即使过了很多年外观也不会过时。
软装方面,新房中选购、定制了一批实木材质的家具,为空间注入自然气息,营造出温馨的家庭生活氛围。另外在客厅选用穗黄色的单体沙发,更亮眼的颜色犹如画龙点睛,能让原本优雅温和的空间瞬间充满活力。
房屋的原始结构存在哪些不足?

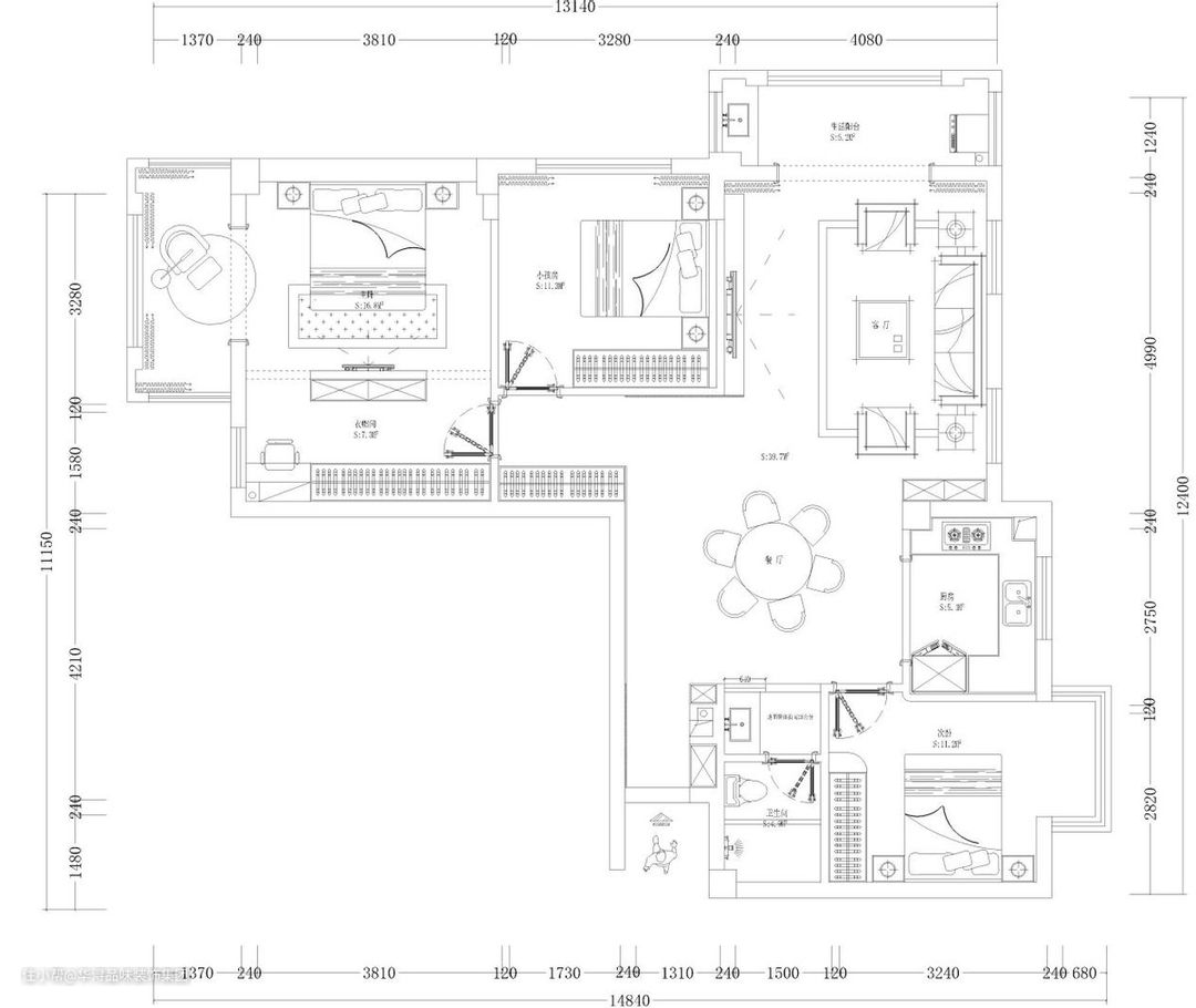
- 业主希望预留三个房间,但房屋原始结构中仅有两间卧室。
- 原始结构中,入户门对着餐厅,并且餐厅南侧是厨房,经过厨房才能到客厅。这样客人来了要先经过厨房才能进入客厅,心理感受很差。
- 原始结构中的厨房是开放式厨房,没有墙壁、推拉门等阻隔油烟的扩散。
怎样在原始结构上进行合理的改造?

- 将原来餐厅的右半部分改为卧室,保证新房内有三间卧室供业主调配使用。
- 将卫生间向右侧移动,原来的卫生间改为入户玄关,从这里进入房间可以绕过厨房和餐厅,直达客厅。
- 在厨房周围新建隔断墙并安装推拉门,将厨房改为封闭式,防止做饭炒菜时的油烟扩散。
本案的风格与特点?

温馨经典不过时是本案最大的特点。本案在灯光方面使用了大量的暖光灯,让室内的光线更温暖、更柔和,创造出了更适合家庭生活居住的环境氛围。
本案没有追逐潮流,配色、造型、搭配上更偏保守,使用了原木色家具、灰墙、白顶等大量的经典设计元素,虽然时尚感稍弱但更加耐看,任凭当下潮流如何变化本案的装修也不会轻易过时。
设计过程中有哪些独到的小心机?

夜晚睡觉时光线昏暗,这时业主如果想起床手脚可能磕碰到家具,很容易受伤。为了避免这种事情发生设计师安排了两个预防措施,其一是在床头两侧安装吊灯开关,这样业主伸手就可以开灯,获得充足的照明。其二是床头等家具都做了倒圆角的处理,在消除锐角之后业主即使碰到也不容易受伤。
最满意的一个功能区?

业主最满意的空间是客厅。这里总共有三块窗户围绕着沙发,充足的采光和通风让这里变得更自然、更通透,人在这里能感受到更强烈的休闲气息,温馨的环境让生活更加惬意。
结语
现代风格的装修舒适、干净、实用,是当下性价比最高、最符合现代人审美的装饰风格。