48㎡老破小翻新,一室改二室,落地效果太满意!
优泽好住 极致性价比
2022-10-22
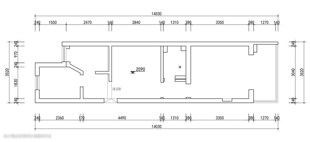
项目信息:面积48㎡,全部翻新,全包精准花费7W多。

2021年春天,钱塘江边的浪花像烟火一样绽放,江水绿油油的想广阔的蓝天,小儿子3岁了,要开始上学了。 古时候母子的妈妈为了孟子有良好的学习环境,一度三次迁过自己住宅。我今天为了儿子上学也要搬一下房子,于是买了这套房子。 房子虽然不大,但是样样都很周全,户型虽然规整长条形,但是是可以设计改成所需要的户型。 我的爱人,很小的时候就跟着我,一直都是租房子住,不曾后悔。今天好不容易买了个房子,就问问我爱人的意见要装修成什么样子,她说:“温馨就可以了。”

需要两个房间,平时4口人吃饭。我们不会有因为户型小而将就,反而觉得户型小更加需要设计。两儿子感情好睡在一个卧室,我跟妻子一个卧室,卫生间需要干湿分离,麻雀虽小,要做到五脏俱全。
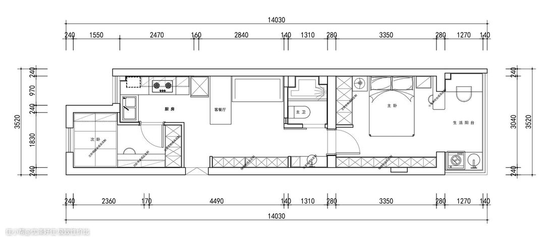
效果对比

设计后,一个小空间就变成了一个卧室,窗户大光线也好,也是读书写字的地方。 厨房,餐厅,客厅从北向南,都在同一个空间,看去视觉效果更明亮大方。 我与妻子的主卧,我是最喜欢的。有书桌,洗衣晾晒区,梳妆台,应有尽有。
客厅

客厅虽然小,小孩们也会在椅子上面吵吵闹闹。 大儿子看着手机刷着里面的内容好吸引人,小儿子玩着手里的玩具


客厅的光线非常的好,小鸟在窗户外面叽叽喳喳的喊着。 布局也是恰到好处,看电视储物柜合理摆放,越看越好看。
餐厅

厨房

主卧

我的卧室,是我与妻子讲私密话的地方,温馨又浪漫。空的时候可以靠吧台做做聊聊天,忙的时候可以拿个电脑坐这里工作。

繁华的城市疲以奔命,忙碌一整天。只有卧室是这么安静的地方,可以好好放松省心。
卫生间

酒店风的卫生间,手感质感都非常的好。