设计分享:397㎡意式极简风格排屋装修,让生活更有归属感
诸暨珊瑚装饰有限公司
2022-10-26
点击蓝字 关注我们



设计需要符合人心目中“家”的概念,住宅往往是一个人心中感情的寄托,它代表了一种家庭氛围,一种被认同的归属感。

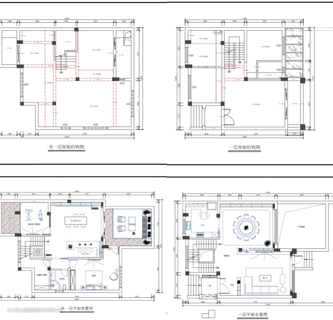
# 平面布置图 #

户型解析:
本案例为397㎡排屋装修,整体采用意式极简风格。根据客户需求,设计师对原有的房屋布局进行了优化,重新划分功能布局,打造出开放流畅的空间动线。应用简约灵动的造型和轻盈秀美的线条,以及明快的色彩和时尚元素,增添空间的个性化。


客厅在色彩运用上采用了大面积的灰色,营造出舒适明亮的视觉效果,彰显出业主的优雅气质。

客厅采用无主灯设计,扩张空间视觉张力,拉伸了客厅空间。搭配回字形吊顶加金属线条的设计,既丰富质感又增添层次感。


灰色布艺沙发与地毯颜色相适配,模糊了空间的界限,达成了色彩的和谐统一,搭配造型别致的落地灯,打造出一个兼具美观与舒适的现代意式空间。


沙发背景墙采用灰色硬包与纹理丰富的大理石拼接而成,搭配意式极简装饰画,有效增加了空间的视觉美感,更好地突出了奢感的调性。


电视背景墙采用大理石悬空结合木格栅设计,充当客厅与餐厅之间的隔断。放上精心挑选的静态摆件,为客厅增添几分艺术感。



餐厅不仅是用餐的场所,更展示着生活品味和精神追求。桌面选用灰色纹理岩板,简约不失质感。搭配拼色餐椅,为沉闷的空间带来一丝活力。


靠墙一面做定制通顶餐边柜,分为展示区与收纳区,有藏有露的设计,更符合功能的实用性。

楼梯是连接上下空间不可或缺的关键,简约楼梯设计,玻璃扶手开阔大气,贯穿空间的纵向维度。

地下室在功能布局上没有太多间隔,考虑功能性需求的同时又保证整体视野的通透性。


地下室布局开阔,办公区域满足办公与洽谈等功能。办公桌背面做展示柜设计,艺术摆件的摆放,给予来访者更多的意境体验。


一侧吧台的设立,将空间动线更好地联结在一起,丰富功能场景,提高居住者生活幸福感。
谢谢赏析!
