108㎡玩转拼色,趣味与层次兼具
上海禧鑫装饰
2022-10-28
【导语】这是一套现代简约风格的案例,住着一家四口。业主一家都很喜欢白色和蓝色,提出要以这两个颜色作为硬装的色调。设计师为避免单一色调的乏味,做了拼色设计,富有趣味的同时也带来了层次感。


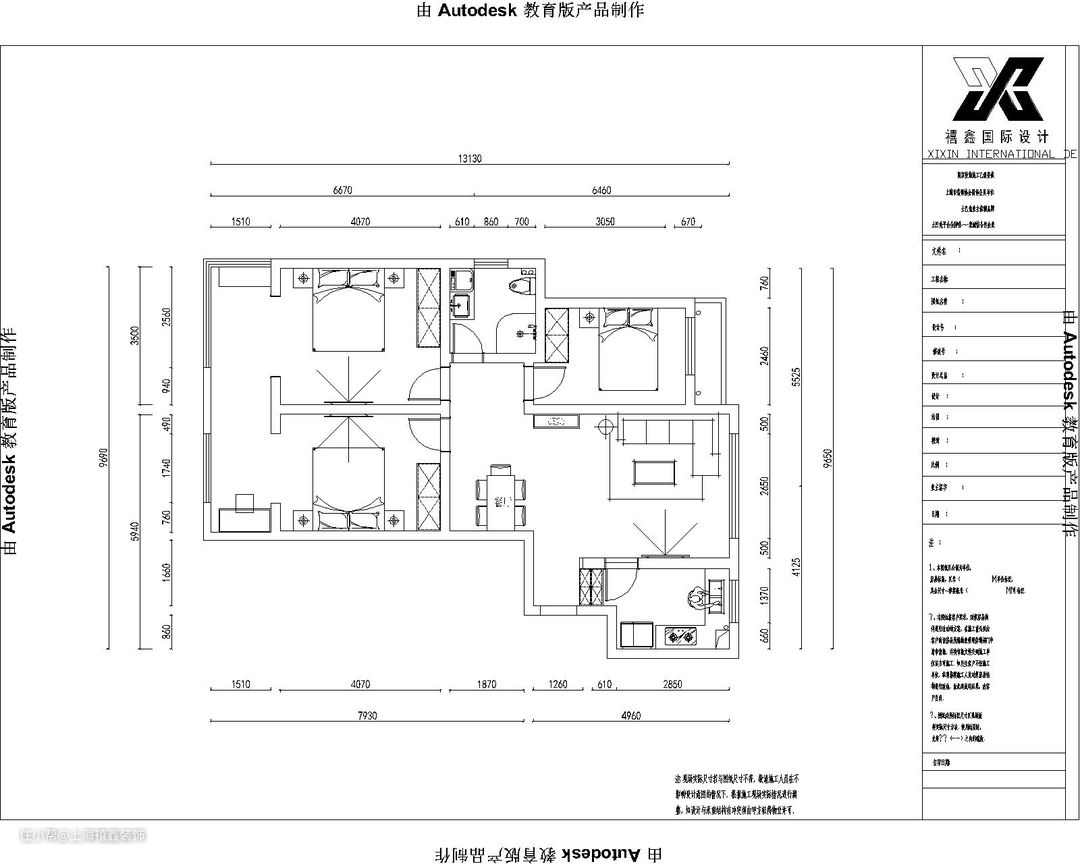
▲平面图

【玄关】进门就是玄关,右手边设计玄关柜,满足储物需求,中间的开放格有两株绿植点缀。左手边的墙面上有上墙无痕挂钩,能把外套围巾等上墙收纳。


【客厅】阳台纳入客厅范围,巨大的玻璃窗带来极佳的采光和通风。上蓝下白的拼色设计为空间带来了趣味和层次感,两幅色彩鲜艳的画作点缀,与舒适低矮的软装一起打造出一个舒适的休闲区。

【餐厅】客餐一体化,以过道和吊顶做了一个隐性区隔。白色原木餐桌靠墙摆放,白色、蓝色靠背带有弧度的餐椅交错摆放,格外有情调。墙面一幅绿底金属餐具的画作点出这个区域的功能。

【厨房】纯白色调的厨房空间不是很大,L字形的水磨石岩板操作台抗污能力强,双槽设计能提高下厨的效率。冰箱做了内嵌设计,看起来整体统一。


【主卧】主卧以纯白色作为硬装基调,搭配木地板,打造了一个恬淡、宁静的休息空间。灰色软包双人大床两侧分立米色双层抽屉式的床头柜,与嵌入式的大衣柜一同提供了超大的储物空间。棕色拼橘红的窗帘作为软隔断,将阳台和卧室区分,业主可以根据需求使用阳台。


【次卧】次卧沿用客厅的硬装配色,蓝白相拼简洁不失情趣,点缀了低饱和色调的挂画。次卧与阳台之间以拱门相连,橙色和灰色拼接的窗帘带来一丝活力。阳台做了书桌+柜子一体化设计,方便大女儿学习。

【儿童房】小儿子的房间不大,只容得下张单人床和圆形三脚床头柜。整个空间都是蓝色和白色为主,大衣柜嵌入墙体内,做了一列开放格给孩子放自己喜欢的玩具。床头柜上摆着云朵形状的金属底座台灯,简约有趣。