素白与中式的碰撞:潮阳嘉盛豪庭220㎡部分效果图展示
星匠装饰设计
2022-10-31
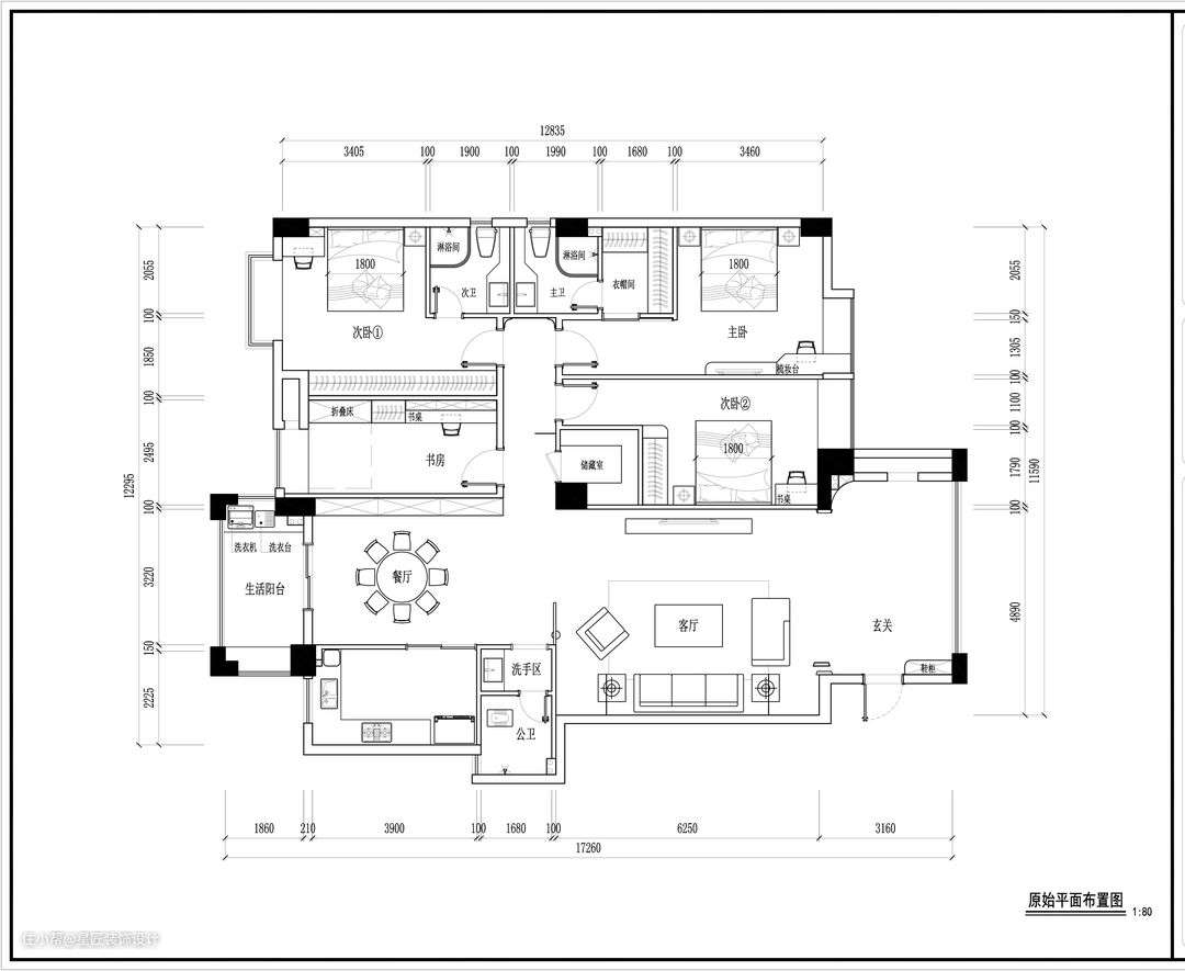
平面布置:

玄关背景:
多处使用弧形设计,背景面本身是一整块落地玻璃,坐南向北的朝向,夏天会晒得很热,而镂空砖在遮蔽了大部分光线的情况下,让微光通过,在拉上窗帘的情况下,玄关也不会显得太过暗

客厅:
非常中式的设计,素白碰撞深色木纹,古典的感觉一下子就上来了,全素地砖配上电视背景墙,低调稳重

在沙发背景墙上开放柜采用了中式传统的如意纹做为装饰,用线灯点缀,让整体更有韵味不会太过单调

餐厅:
中国古话云:人以食为天,而在当今时代,“食”不再只是简单填饱肚子的事,一个优雅的就餐环境,能让人心情愉悦,中式餐厅能给人一种高雅的感觉
餐厅与卫生间的隔断才用了半玻璃砖的设计,有种犹抱琵琶半遮面的感觉,即增加了光亮度又保证了隐私
