碧桂园国湖237㎡复式:雅致的两种样貌
格欣装饰别墅全案设计
2022-11-03

— 基本信息 —
Basic Information
项目名称 | 碧桂园国湖
Project Name | Bi Gui Yuan Guo Hu
项目类型 | 上叠
Project Type | Laminated Construction
项目面积 | 237㎡
floor area | 237㎡
设计风格 | 现代
Design style | Modern Style
主案设计师 | 刘强
Chief designer | Liu Qiang
产品设计师 | 范明明
Product designer | Fan Mingming
— 户型分析 —
House type analysis
优点
Advantages
各空间面积配比和结构比较合理,动静分区明确
一梯一户有独立外门厅
餐厨关系及厨房布局合理
起居室有挑高,且开间进深都符合要求
主卧室套间在二楼,隐私保护得当
二楼有独立露台
缺点
Disadvantages
楼梯空间较为狭窄,且踏面深度和踏高尺寸不合适
房屋结构导致渗水隐患较大,需提前排除隐患
— 设计理念 —
Design concept
地面材质会根据空间进行调整,以加强空间领域的分割和变换。在地面材质的基础上,再通过顶面材质进行强化空间。
在平面上对收纳空间进行有效的布局,以满足业主的收纳需求。
到立面上再根据空间感受调整比例、材质、纹理,形成比较富有冲击力的视觉感受。
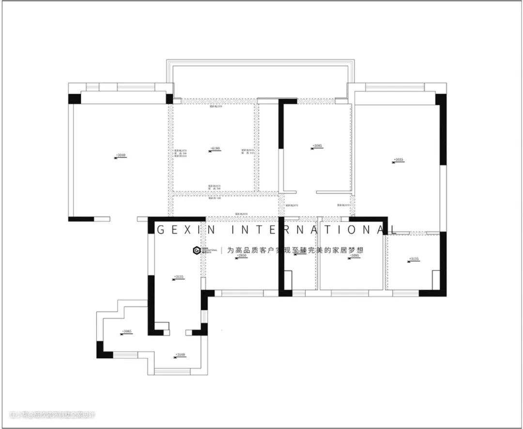
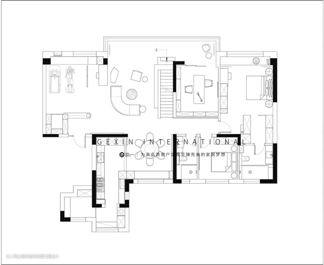
— 壹层设计 —
first floor

▲一楼原始图

▲一楼设计图
形状与颜色的艺术
现代感、设计感是这个挑空客厅给人的直观感受。两层的纵深给这个空间极大的自由,也为设计师提供了施展的余地。
置身客厅,宽敞、舒适、明亮。这归功于上下两层的大面积窗户,使得房屋内大量的深色元素都不显暗沉,只恰到好处的展现出沉稳的高雅。

设计师不会让深色霸占整个空间,白色、米色与暖黄的光穿插在深色的岩板与木材间。一深一浅间营造了整个空间张弛的韵律。这一切组成了沉稳、舒适、放松的家居环境。
整体看来,挑空区域在平面上可以拆解为几个矩形。几何形的规整以及它自带的区分性,让挑空部分大气、利落。而排布上的错落以及设计师在矩形间刻意选择的对比色为空间赋予了艺术感以及高级感。

隐形的楼梯
在正对电视的视角,你很难发现通往二楼的楼梯。出于让整个空间更简洁大气的目的,它被设计师刻意隐藏在了电视背景墙后方,以免破坏现有的挑空布局。

精巧的构造设计,是融会贯通在设计师体内的专业修养。而格欣以墅级工艺以及定制理念不负这种修养。

圆桌——中式的温情

围坐一起共享美食,是中国人的温情时刻。设计师没有选择方桌,而选了小圆桌,为这个家承载这一美好。

这个圆桌在半开放的西厨里,与中厨隔着一道半透明的平推门。合理的布局,让一切恰到好处。

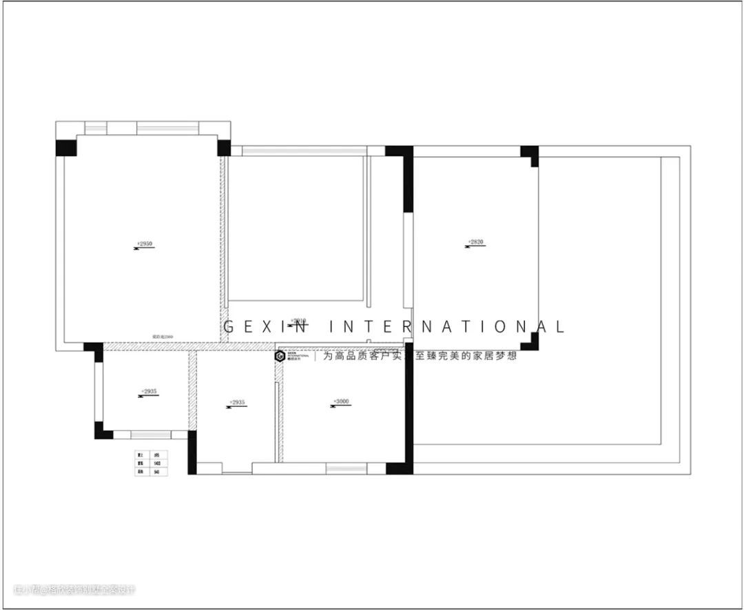
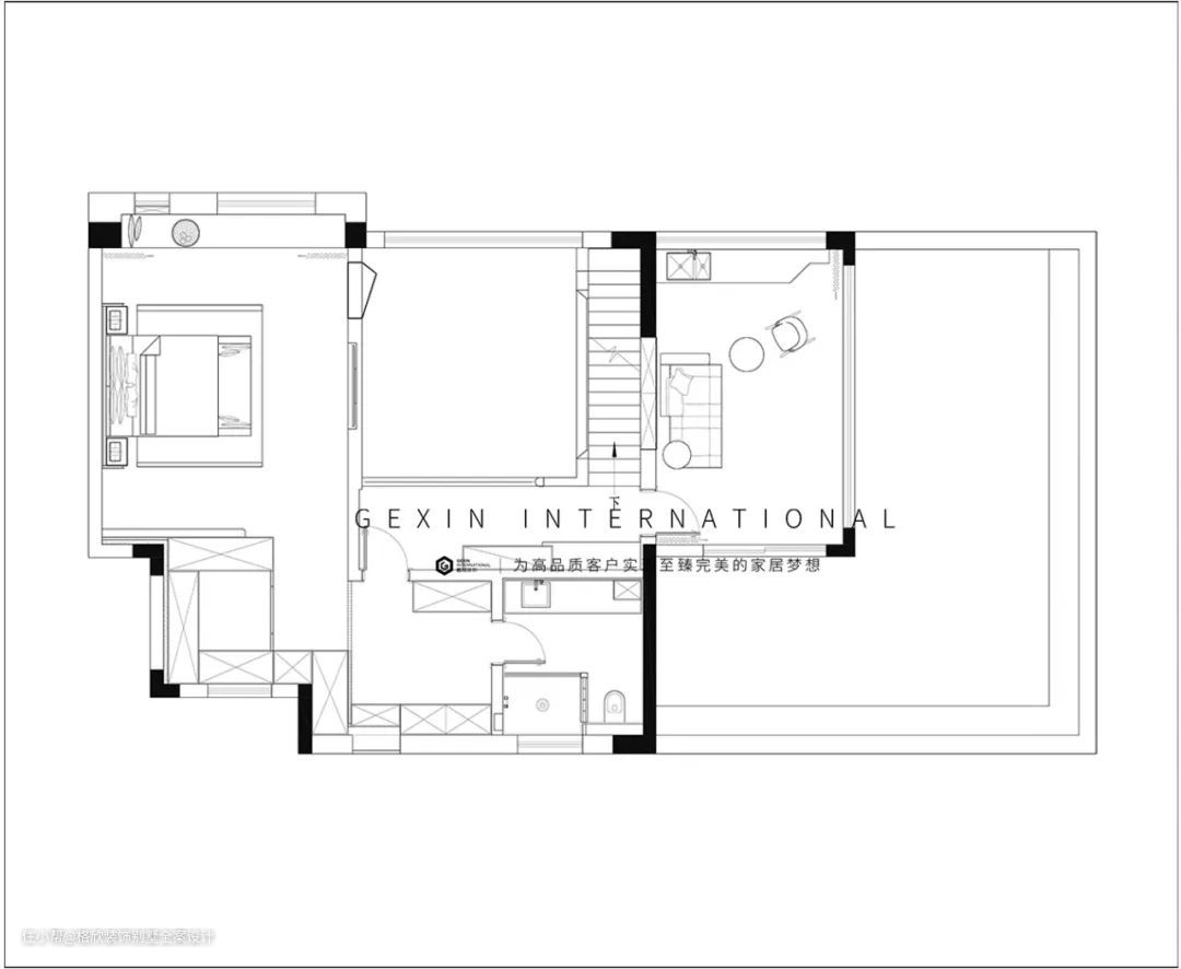
— 贰层设计 —
Second floor

▲二楼原始图

▲二楼设计图
“我”是中心
疫情当下,我们与家相处的时间被迫变多。这个房屋的二层,整个空间都是设计师为屋子主人打造的私人世界。也就说整个二楼都是主卧的领地。

这个空间囊括家居生活的方方面面。卧室、储物、换洗、休闲室(书房)以及与自然交互的露台。整个二层就是独属于“我”的空间,在这里各种意义的“我”得到包容与共存。
深色的温暖
二层的休闲室,充满着设计师对温暖的理解。浅色布艺营造的温暖经常得见。但温暖只有这一种表现形式吗?

答案就在这间休闲室里。棕色、黑色这样的深色以大色块呈现,它们附着在极具舒适、休闲的软装上,展现着的是满满的安全感与包容力。加之旁边火炉的烘托,温暖渐渐散开。

露台与室内仅一个平推门相隔,座椅的对面是为了开阔视野而专门去墙改窗的杰作。被大量使用的玻璃,它的品质自然不能忽视。这一点被格欣牢牢把控。能选到最适合这个房屋的产品永远基于格欣的专业。
简卧
整个卧室有大面积的留白,显然设计师要勾勒一个简约的卧室。在此基础上设计师将陈设集中设置,呈现一种紧凑、聚拢感,也带给人一种安全感。

整个卧室也呈现着成熟的优雅感。在这方面,颜色发挥了极大的作用。棕色、浅咖色打底,墨绿与玫红点缀,撞色突破着深色系的沉闷。

女儿房该有的样子
女儿房的设计,告诉我们雅致也有不同的样貌。客厅的雅致是沉稳的,而女儿房的清雅则是另一种。清新淡雅,如同一朵刚刚怒放的百合。在父母眼里,女儿就是这般美好。

米白的墙面配上抹茶绿的墙围,再用暖黄的灯带描边。整个氛围淡淡的,舒畅到人的心里去。
飘窗放上软垫,这是每个卧房都有的设置。与窗外的美景、阳光互动是家居生活中不可缺少的惬意时光。一杯茶或是咖啡与此时正配。
结语

大多数房间,散发着沉稳的优雅感,这种感觉自带高级。而为了匹配不同房间主人的气质。设计师精准分解出优雅的不同调性,让不同房间和而不同,既独特又统一在大格调之下。
对风格的精准把控,让整个房屋不落俗套,展现出匹配屋主人的独特性。这才是定制的意义。

在完成风格建构之后。设计师不忘实用性的塑造,大量储物空间融合在风格之下,是平衡了人的活动空间与储物空间后合理的安排。这不是对建筑深刻理解就可以的。格欣认为设计房屋最终都是在设计生活,格欣也一直用生活的视角打造每一座房屋。