68㎡的现代风二居室,简约时尚小屋
海域整装(浦东店)
2022-11-09
户型解析:
【项目房型】:两室一厅一卫
【项目地址】:沪南路577-19-501
【项目面积】:68
【主案设计】:黄天宇
【施工单位】:#海域整装
原户型图:

原户型分析:
1.房屋套内面积为68平,小两房格局;
2.采光不是很好,所以拆除主卧靠阳台的那面墙;
3.经过与屋主交流,最终放弃了中央空调的设计,全屋采用分体式空调。
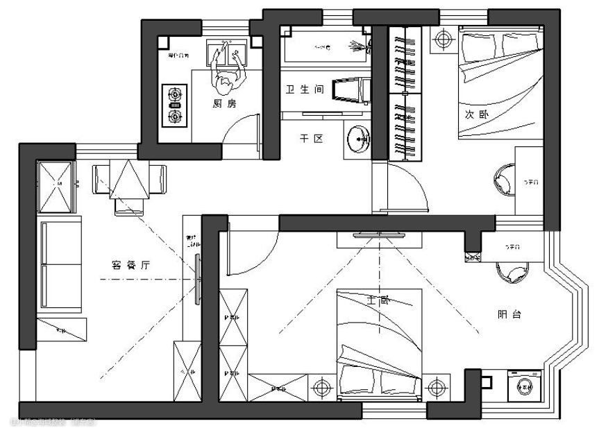
平面设计图:

设计理念:
1.入户处的玄关设计,为业主出行带来极大便捷;
2.采光不是很好,所以拆除主卧靠阳台的那面墙;
3.经过与屋主交流,最终放弃了中央空调的设计,全屋采用分体式空调。
客餐厅:
房子整体风格以业主居住需求为主导,舒适温馨,干净简洁,方便打扫。

整体空间是以低饱和度的咖色为主,空间悠然静谧,给人四处洋溢温暖的感受。客厅靠窗安装暖气片,已为冬日做足准备。

电视柜采用嵌入式结构,机体不大,柜门做了落地与顶天的处理,使外观更加简洁大方。

主卧:
主卧是唐女士夫妻二人的房间,整体布局更倾向于实用性以及舒适度。

设计师根据主卧进深,在确保不占用休息区的前提下,增加了一处步入式U型衣帽柜。



次卧:
整个空间的主色调以浅米色为主,为了避免房间过于单调,在床的右边墙上,几幅艺术壁画的装饰,带给整个空间生动,艺术感满满。


厨房:
厨房是非常实用的U形设计,洗刷煎炒两不误,还有足够的置物装盘空间。白色的柜面简约中透露着高级,橱柜面板的选择是一种肤感膜的面板,触感丝滑,颜值加分。

卫生间:
在卫生间的设计中,设计师借用了过道,将洗漱台外置于过道中,既能释放卫生间空间,也实现了干湿分离。

阳台:
主卧延伸阳台,白色瓷砖扑面,简单且好看呢!
