【朗雅装饰】| Modern luxury·镌刻理想人生
朗雅装饰13年好口碑
2022-11-20

- 在有限的人生中
- 以现代动态为牵引
- 表达生活无限的思想与方式
- 让空间展现有温度的理想人生
01
—
家的介绍
Home introduction
居者夫妇对于自己的生活有着独特的见解
他们渴望的家不仅能够带来心灵上的放松
更要同时能保证每一位居者真实情感的需求
摒弃世俗的累赘,带着理性的秩序与美感
大量的保留了大理石、线条、金属等元素
运用材质本身的高级感,传达现代风的精致
设计师注重比例与每一处色彩的搭配
修饰空间自身的漏洞与缺陷
围绕屋主的生活动线与逻辑进行设计
将采光、动线、收纳等日常细节充分考量
让每一处生活均有迹可循
简单到繁杂、局部到整体
还原最舒适的尺度,篆刻独属的理想底蕴
——
02
—
客厅
Living Room
从入户门而内,是一组面对的收纳系统柜
门厅延伸至客厅,拒绝繁复
设计师选择做开放式布局
打破空间原有的压迫感





客厅经使用场景被划分为不同的区域
不以具象形态作为分割
而采用融合相生的姿态强调空间的沟通属性
藕色沙发是空间中体量最大的家具
浅色弧形的设计为居者带来强大的包裹感
更是作为精神上的放松慵懒之所
同时在洁白的房顶与射灯灯光的映衬下
细细的暖光均匀的洒在空间的每个角落
亦是空间柔和的基调


电视背景一体
主卧入口做格栅隐形门
简约流畅的线条感
呈现现代生活的美学


生活的态度表达人的品味
黑色茶几居于前
橙色单人沙发紧随其后让客厅空间更加随性自由
柔暖的沙发与坚硬的茶几
一冷一暖、一软一硬相映共生
将不同的材质与感受进行碰撞
给予家居空间更为丰富的体验



根据居者的动线,让功能与结构实现平衡
在循序渐进的归家仪式感中
将生活的多功能性安排在客厅的一隅
生活、学习、社交、放松等功能并联这一动线之上
以玻璃门作为隔断,连接生活阳台
大量收纳的置入
方便屋主随时保持空间整洁
——
02
—
餐&厨
Kitchen Waste
餐厨空间考虑到家庭关系的表达
故而从固化中抽离
让美食与情感在此交汇

通透化半透镜面、艺术摆件
大理石餐桌为空间带来一种自然的艺术氛围
橙色与藕色皮革餐椅在沉稳柔和中,增添视觉跳跃感
从而形成新的视觉焦点
在回归生活的同时,也尝试让空间制造独特的平衡感


空间作为外在的演化
厨房的品味更直观体现居者的生活本质
设计大量的储物空间
将各种生活电器根据人体工学原理
以中轴线向左右延伸
从而保持操作台的整洁度
以玻璃门作为隔断
让空间更加通透的同时
亦不失家人间的情感联络与生活沟通

03
—
卫生间
Toilet

匠心独运,设计师将空间进行巧妙切割
公卫洗手台外置
镜柜与洗手台增大实用性
流动着现代质感
推门而入,进入私密领域
一场酣畅淋漓的淋浴之旅就此展开
同时合理利用靠墙空间
增设巨量的壁龛,打造满分的收纳能力
——
04
—
卧室
Bed Room
将主卧功能扩容,让每个角落利用合理
设立步入式大面积衣柜
一目了然的悬挂区域木质肌理交汇
利用简洁的线条将衣物、配饰进行分门别类的摆放
整洁有序避免浪费,凸显居者生活品味




透过细节的装饰镌刻
营造主卧的轻奢韵感
床边矮柜精选现代大理石材质
通过装饰灯的点缀
背景墙线条叠加组合营造丰富视觉层次
大面积暖色调的运用,除了为主卧润色
也能有效的为居者带来助眠效果



次卧整体设计的较为简洁
主要是作为家中长辈偶尔过来小住使用
在保持风格统一的前提下,对称的床头柜摆放
映衬着素雅的床上用品,再搭配木质纹理地面
整体给人感觉质朴不失韵味
——
05
—
男孩房
Boys' Room
关于男孩房,选择清澈的蓝色为主调
摈弃花哨的设计,兼具实用与童真
在布局上,采用衣柜、床边矮柜、书桌柜的形式
让空间内活动功能增多
浅蓝色的运用不仅可以渲染孩子的率真
亦与床品互相映趣,让空间回归最舒适的状态
——




06
—
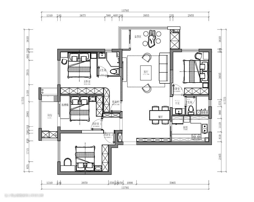
分析图
Analysis Chart

INFO
- 设计机构 Design department -
福州朗雅装饰工程有限公司
- 主案设计师Main designer -
林炜豪
- 项目面积 Project area -
115㎡
- 项目地址 Project address-
福建·福州

林炜豪
福州朗雅装饰工程有限公司专家设计师
福州朗雅装饰工程有限公司
定位于“专注别墅大宅私人整装”
提供“设计、施工、建材、环保节能、软装陈设、
智能设备、售后维护”等一站式服务
致力于构建起福建省具有核心价值的装饰品牌
开创A6臻品整装新概念
成功引进“德标工程管理体系”
并自主创新169项环保工艺推动行业升级
2010年以来,朗雅持续创新并追求卓越的设计与工艺品质
将为更多榕城业主缔造高品质生活空间