120平现代简约三居室实景拍摄
天门摩西创艺装饰
2022-11-22
- 房屋信息:
- 户型:三居
- 风格:现代简约
- 面积:120㎡
- 造价:7万
- 位置:碧桂园.左岸新都
- 设计师:甘朝阳
- 装修方式:半包
- 装修工期:100天
方案说明:业主是一对年轻的夫妻,暂时还没有小孩;原始是三室两厅的格局,考虑的以后的生活使用,保留了三房的格局;一个卧室比较小,通过榻榻米的设计作为今后的儿童房来满足收纳和使用;
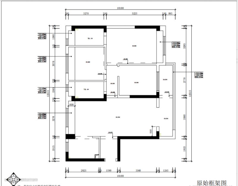
户型图:

户型南北通透,动静分离,整体格局无需大改;

细节收纳方面尽量做到极致,满足使用;
客厅:

墙板拼色做沙发背景,灵动大气;

阳台客厅打通,显得空间更大;

岩板电视背景,简约大方;
餐厅:

餐边柜镂空,更加实用;

客餐厅吊顶一致,风格统一;方形餐桌更加大气

封闭式厨房:

一体化集成灶,方便实用;顶面大板吊顶,大气时尚。

卧室:

简约软床,百搭时尚;对面做整排柜,极致收纳。

卫生间:

卫生间干湿分离。
儿童房:

书桌衣柜一体化设计;

定制榻榻米,收纳实用两不误;线型灯 顶灯搭配,灯光更好用。
