沙县嘉和苑·119㎡现代简约风格,适意而自在的居室
金螳螂家三明公司
2022-11-24
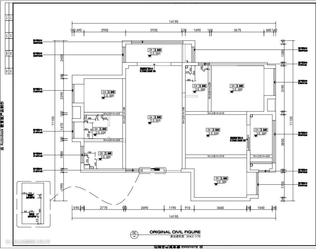
业主需求&原始结构图
业主偏爱休闲简约、轻松舒适的家居氛围,追求的理想家希望带上属于他们的性格色彩,不急不缓、自然雅致。

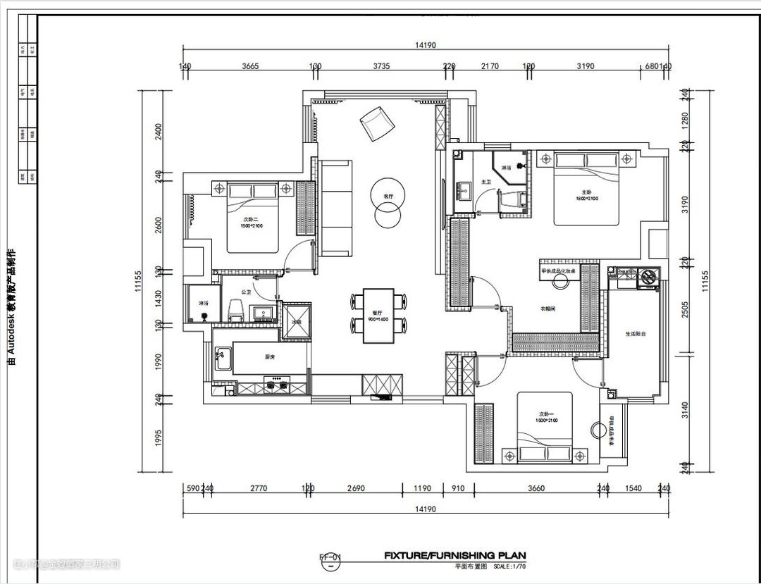
平面设计图及设计说明
客餐厅一体化的设计,将空间的轴线贯通,开阔式的空间布局纳入更多的自然光线,令空间通透而明亮。空间上以现代简约为设计手法,黑白、棕咖调为主,通过精致悦目的细节,使空间结构明确、外观明快简洁,整体呈现宁静雅致的舒适氛围。


客厅效果图及设计说明
顶面无主灯设计,阳台纳入公区拓展使用面积和增加自然采光,线条简约的软装单品在素净简约的空间中渐次铺陈,不同材质、色调相互配合,高低错落,打造出美而不乱的层次感。


餐厅效果图及设计说明
餐边柜和嵌入式冰箱组合成一个整体,白色的隐藏式柜体最大限度地保持空间的整洁宽敞。搭配的大理石餐桌台面有着令人为之沉迷的质感与自然纹理,提升了空间的档次。


厨房效果图及设计说明
在重新定义空间功能后,通过吊轨门设计,以半开放式的形态让餐厨区相连,搭配大理石餐桌与客厅空间相互独立,又互为统一。选择白色系橱柜,台面错落设计,U型布局更有效地利用空间。


卧室效果图及设计说明
卧室空间也是非常的简洁为主,木质地板搭配暖色调墙饰,自然而又美观。床头两侧布置各种造型的灯具,让空间充满了时尚的科技感。

