170平方现代风格装修
塞纳春天深圳宝安店
2022-12-02
户型:三室
面积:170㎡
预算:30~50万
城市:南京
小区:东原印长江
风格:现代简约
我们总是期待盛大的浪漫,偶尔细看,默默的陪伴才最惊艳。本案为精装修房改造项目,业主是一对年轻的夫妻,他们刚刚迎来了宝贝女儿的出生,在新家设计时希望满足三口之家的正常功能需求,但也更注重两个人陪伴空间的营造,基于这一原则,对空间、动线、功能、软装展开规划陈设。

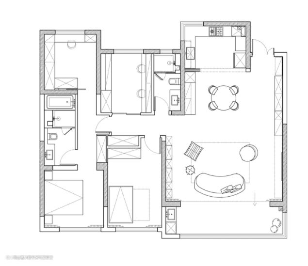
原始户型南北通透、动静分离、开阔舒适、布局合理,完全满足不同结构家庭的居住需要。但仍有一些小瑕疵,比如:厨房采光位置特殊,造成餐厨空间采光不足;精装交付千篇一律的设计毫无个性化可言;交付时配套的柜子和房门样式比较传统。

针对以上问题,设计师进行了以下改造:
1、拆除所有吊顶,同步调整室内的灯光设计,将千篇一律回字形结合灯带的吊顶改为无主灯设计。
2、改变原本的“大白墙”,增加一定的灰色和米色,使空间的基础色更加柔和舒适,软装则以米灰、木色为主,蓝色和焦糖色作为跳色,简约中彰显个性。
3、厨房和书房的门更换为透光性更好的玻璃推拉移门,弥补局部空间采光不足的问题。
4、全屋尽可能多的增加储物空间,同时合理规划确保不同物品的分类收纳。原主卧室衣帽间一分为三,满足主卧室、儿童房和过道不同空间的收纳。
北次卧纳入主卧套间,改造为独立衣帽间,大大提升业主的生活品质。

本案为精装修改造,硬装改造主要集中于顶立面装饰的调整和部分功能区域的优化,再从灯光、色彩、家具、软装搭配着手,让整个空间更加丰富,氛围更加温馨。

原户型结构中阳台被一分为二,美观性和空间利用率都不高,拆除阳台与客厅之间的推拉移门和墙体隔断,阳台和室内连通形成开阔无障碍的空间。

客厅作为家人互动交流和娱乐的空间,更加自由且随性。写意空间Ploum贝壳沙发、毛毛虫懒人沙发搭配SUFAN复古单人椅,一张舒服的羊绒地毯,随意组合不拘泥于形式。

阳台纳入客厅,抬高铺设原木色鱼骨拼地板形成休闲区,让空间变得更加温暖舒适。冬日暖阳,大小朋友在这里嬉戏玩耍、阅读学习,享受惬意时光。

电视背景墙涂刷雅灰色乳胶漆,局部用同色格栅做出造型的层次感,悬挑的抽屉柜补充部分收纳功能,底部暗藏灯带增加空间的轻盈感。

餐厅沿墙增加一组餐边柜满足区域的收纳需求,契合整体轻松自由兼具设计感的调性。挑选一款经典的象牙白岩板圆桌,彰显设计的高级感,带来舒展的空间体验。

沿墙定制的餐边柜,也是厨房厨柜的延伸,集合了西厨烘烤设备和零食储物,既保证充足的收纳容量,又合理分配不同功能需求的收纳。

朝南的小房间作为儿童房,以孩子更喜欢的鲜亮色调为主,整体的布置温柔甜美,卡通的元素充满童真和趣味。

原本主卧室的衣帽间一分为三,扩大了儿童房的面积,使儿童房更加舒适敞亮。Bolin的儿童床,像小岛一样包裹式的设计,给孩子满满的安全感。

将主卧室和北次卧室打通连成套间,超大容量衣帽间规划了衣柜、包区、鞋帽区、梳妆台等。从起床、洗漱、换衣、化妆、配饰,动线流畅,一气呵成。

朝北的次卧室改为多功能房,原本的平开门拆除,连同墙体也一起拆除,换成透光性更好的玻璃推拉门,解决走廊采光不足的问题。这里平时作为男主人的书房,也是放松休闲的电竞房。定制柜内隐藏了墨菲床,偶尔来人需要居住时又可以作为临时客房,实现一房多用。