日式原木风,开放式厨房缔造三餐美好
听白设计
2023-02-24
户型:三居
风格:日式
面积:125m²
城市:青岛
小区:信达金地
预算: 40W
软装: 10W
硬装: 20W
电器: 10W

方案解析:
这是一个婚房,设计师以生活时间线为入手方向,从结婚-要娃-上学等时间线分析不同阶段所面临的需求,为客户量身定制了适合的分类收纳。空间结构、功能合理的情况下,以简单的造型设计块面结合和自然原木色调搭配,设置合理的比例,选择可持续性材料,为小姐姐创造环保,功能,温馨氛围的家。
户型解析:
房屋整体比较方正,面积对于今后一家三口以及部分时间长辈来带孩子使用已经足够。不过我们追求更舒适便捷的生活,还要根据小姐姐的特殊需求做出优化;
- 厨房比较小,放不下小姐姐想要的大洗碗机,小洗碗机,蒸烤箱等。
- 小姐姐想要开放式厨房,又担心油烟,静音,整洁的问题
- 入户空间浪费,餐厅区域和客厅混合。
- 卫生间比较小,没有干湿分离。
区域解析:
客厅:

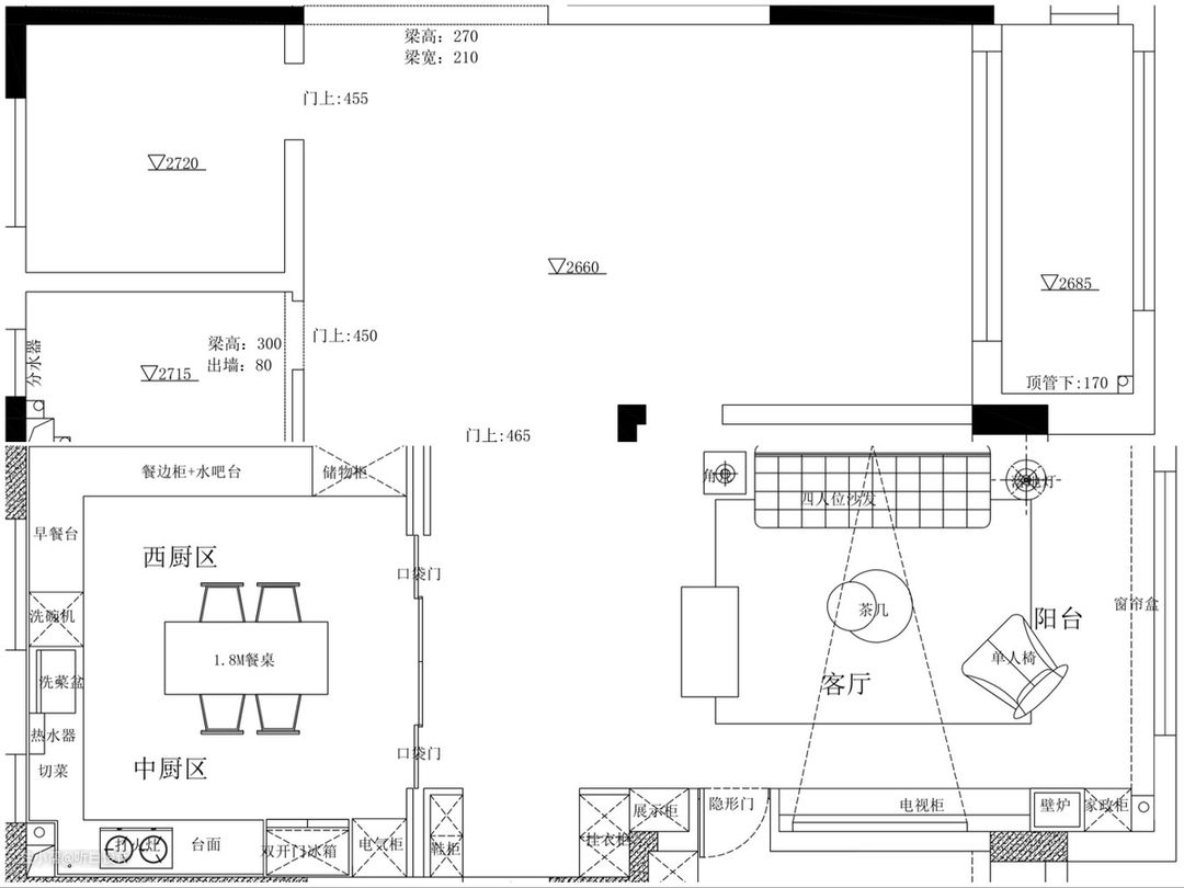
餐厨与客厅分离,让今后家庭两大常用功能区面积增加,动线减少。
青岛属于北方,冬天入户后是需要用放鞋子和衣服的位置的,虽然原户型已经预留了位置,但是靠近厨房入口,家庭公共区域的思路是将餐厨区独立,并增加各自面积,所以入户做了一处独立的鞋帽区。

客厅电视背景墙:
本案设计是暖调居家的日式风格,暖白色和浅木色相搭配,奠定整套设计中居家温馨的浪漫基调。
同时,我们在日式风格中,还加入不少现代的元素,不拘泥单一的风格元素,让整套设计更加和谐和舒适,也更适合现代人的审美格调。
因此,客厅中伪壁炉的安放新奇又灵动,和电视下方堆积的木材相呼应,实现屋主冬日烤着壁炉,休闲娱乐的浪漫幻想。

沙发的选择对客厅的整体美学效果有举足轻重的作用。
我们在这里为屋主挑选豆腐沙发和藤编懒人椅以及羊羔单人椅的组合,线条各有变化,却又相互和谐,形成视觉上的美感。
同时,我们在挑选时,在考虑美学的同时也考虑了舒适性,毕竟设计源于生活,高于生活,却也不能脱离生活。良好的坐感,让这个客厅的实用性大大增加。
厨房和餐厅区域解析

原本的厨房空间较小,小姐姐想要的家用电器比较多,放不下也很拥挤。所以我们就把厨房和小北卧合并,尽可能扩大厨房的空间,做成了一个超大的餐厨一体的开放式厨房。这样就可以做U形设计,餐桌放在中间,形成一个大的洄游动线,动线明晰,让烹饪和用餐都流畅舒适。
由于厨房有两扇窗户,这样采光和通风很好,但同时也少了收纳储存的顶柜空间。所以地柜的收纳设计便变得尤为重要。我们在右侧地柜采用交错开放格和柜子的设计,美观的同时,让收纳和使用更方便快捷。
在这样合并成的开放式厨房设计里,几个痛点是一定要解决的。
- 油烟问题,每次我们在设计开放式厨房时,大家都很担心油烟比较大,不好收拾卫生。
- 静音问题,开放式厨房不封闭,怕声音比较大,影响家庭成员的休息。
- 颜值问题,开放式厨房一定要美貌。


华日我们询问了身边很多烹饪爱好者,也去了解了我们做了开放式厨房的客户的使用感受,他们给予我们真实反馈,这次项目我们精心挑选方太集成烹饪中心X系列和水槽洗碗机E5L以及嵌入式洗碗机W2完成厨电规划。
方太集成烹饪中心采用嵌入式设计,无需更改烟道,在烟机上方采用木色包管设计,仿佛给烟机带了一顶大大的礼帽,显得几分俏皮和温馨。下方也不用切断台面和地柜,完美嵌入台面,和地柜一体成型,美观大方。

而且方太集成烹饪中心是低吸上排设计,利用油烟自然向上升腾冲力,吸油烟更快更干净。最大静压可达1000Pa,巡航模式风量可至27m³/min,而且还很静音,不打扰其他空间里人们的生活。优越的性能效果,解决业主对了开放式厨房的各种担忧。

方太集成烹饪中心还具有烟烹联动功能,灶具点火或者蒸烤开启烹饪,油烟机会自动开启,将油烟、蒸汽、热气等从灶具面板后方排出顺势向上被油烟机吸走,确保了厨房油烟第一时间的排出,保证做饭人不受油烟的困扰,让厨房更整洁亮丽。
【产品链接】
https://item.jd.com/10057267710208.html


小姐姐家里常住2个人,经常有朋友来聚会。我们设计了两套洗碗机,15套的方太W2洗碗机和方太E5水槽洗碗机,都是一级水效,高效节能。W2洗碗机拥有隐藏式把手设计,更有775mm中式橱柜的高度,以及30mm可调节支脚,十分适合中国家庭的安装和使用。
方太嵌入式洗碗机W2拥有15套的清洗容量,可以容纳聚会使用的大量餐具,一次洗净,方便快捷。同时它也能分腔清洗。方太E5水槽洗碗机可以日常一餐一洗使用,取放碗碟无需弯腰,同时兼顾清洗水果蔬菜海鲜等。

方太这两款洗碗机都采用了“高能气泡洗”专利技术,空化气泡在水中源源不断爆破,重油污渍迎刃而解,让餐具焕然一新。都是洗消烘除存五大功能集成一体,还能解决餐具的收纳问题。E5不仅是水槽、洗碗机,还是果蔬海鲜净化机,作为青岛居民,海鲜是桌上的常备菜,E5可以将海鲜轻松洗净,保留鲜活口感。
商品链接:https://item.jd.com/10029144894375.html
商品链接:https://item.jd.com/10057703344001.html
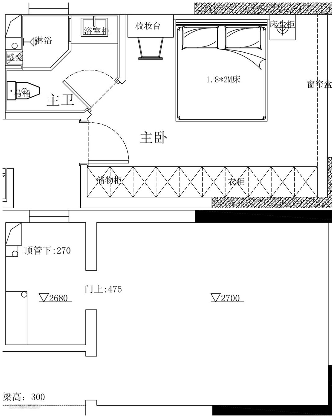
主卧和卫生间区域规划:

在床尾预留了大量的衣物收纳,预留后期婴儿床的位置,为了动线顺畅,修改卫生间门洞。

卧室采用浅木色的鱼骨拼木地板和棕褐色的背景墙色漆,再搭配同色系的窗帘,共同营造暖调温柔的氛围。
卧室的设计并不复杂,作为重要的功能区,除去床铺外,给女主人挑选了带点艺术格调的梳妆台和梳妆椅,床铺另一侧搭配奶白色有机质感的茶几。
头顶盛开如牡丹的纸艺吊灯带来朦胧的氛围,美而温柔的精致感,和整体卧室设计和谐统一。

卫生间采用同色柔光砖铺贴,让整个空间呈现洁净感和延展开来的通透效果。
镜柜和洗漱台的选择中规中矩,但浅木色的材质和厨房的木色一致,保证了整体设计效果的统一。
我们在这里设计了墙埋的水龙头,节省空间的同时,也让整体线条效果干净有格调。

干区过去,就是淋浴区。
采用极窄边框的玻璃隔断,保证干湿分离。
窗户采用防水防霉的百叶窗,保证采光的同时也可以完美的保护隐私。
壁龛的设计实用又方便,增加淋浴区的储存空间,提升生活的舒适度。
总结:
以人为本,设计之美来自生活,也回归生活。
室内设计从来不是脱离生活而独立存在的,在保证高颜值的效果同时,也要考虑到屋主使用的方便和舒适度,只有真正替屋主考虑了生活的需求和应用,才是一款设计的成功落地。
本案设计的重点放在了厨房,因为屋主特别喜欢烹饪,宽敞明亮,操作方便快捷,又功能性齐全优秀的厨房才是她的最爱。我们特别挑选的方太厨房电器,很好的完成这个需求,把美和实用同时带回家,也让屋主得到欢喜和满意。