小家衣柜设计 | 衣柜&侧边柜尺寸详图来啦❗
杭州良匠装饰旗舰店
2023-03-01
附内部格局和设计图纸,记得收藏备用
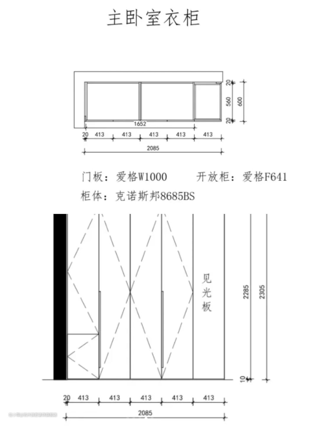
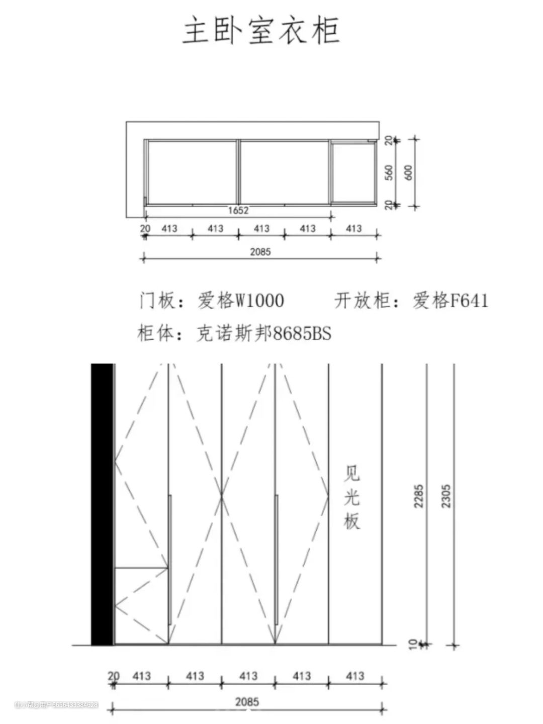
⚫️整体格局:
✔️由主体衣柜+侧边柜组合而成
✔️主体衣柜:共4门,两两对开
✔️侧边柜:中间开放格,上下分体柜门
🟠整体尺寸:
✔️长1805㎜
✔️深度600㎜
✔️高度2305㎜
✔️正面看去每扇门宽度413㎜
✔️侧边柜深度=衣柜1扇门宽度≈41㎜
✔️侧边柜宽度=主体衣柜深度=600㎜
✔️这样的尺寸设计使柜子主体每个柜门等宽

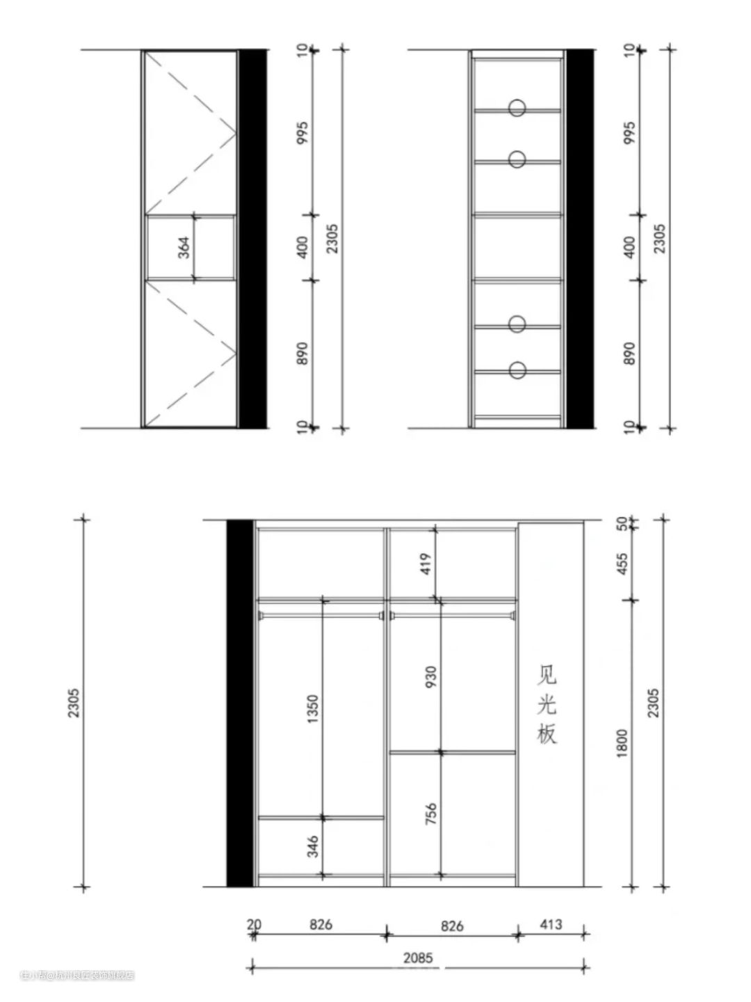
内部格局和尺寸
🔹主体衣柜分为:
✔️被褥区、长衣服挂衣区、
✔️短衣挂衣区、抽拉裤架区、灵活收纳区
🔹侧边柜分为:
✔️玄关开放格收纳区
✔️包包收纳区、灵活收纳区

🟤十分建议小户型都去做一个侧边柜❗
☑️合理组织动线、收纳强大
☑️使用真的太太太方便了
🔻侧边柜TIPS
☑️如果做开放格避让开关插座,一定测量好位置让开关居中,开关在开放格的位置太靠上靠下都不好使用。


🟢衣柜所有设计图纸附上
☑️柜子外观,内部格局
☑️板材和颜色都在图里了
☑️有需要的朋友记得点赞收藏哦⭐