120平现代轻奢风,高级又低调的三口之家
广州金地新家
2023-03-07
方案说明
本案是一个幸福的三口之家,屋主是一对80后夫妻,男屋主是从事理财行业的,女屋主则是银行工作者,屋主是我们的粉丝,从网上看到我们的案例表示很喜欢,初步沟通后,我们了解到这套房子是一个精装房,且男屋主有储存酒的爱好,女屋主则表示喜欢偏向于轻奢风的家,希望公共空间尽量打通,不喜欢过于封闭的感觉,并且保证一家人的沟通交流。根据屋主需求,我们在空间大量采用无主灯设计,以及大理石元素,为屋主打造一个幸福舒适的三口之家。
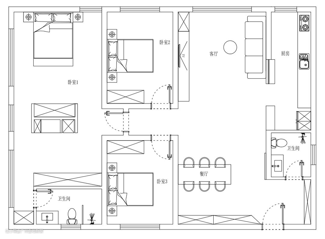
户型图

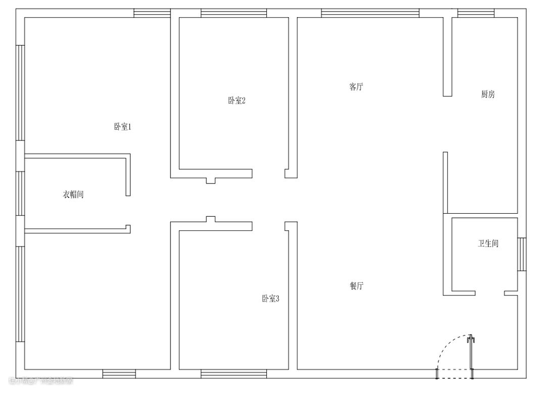
房屋平面原始图

户型解析: 1、入户门处打造收纳柜,既能保证玄关处干净整洁,还能满足餐边柜的需求,保证餐厅区域的储物需求。 2、客餐厅一体化设计,保证整个空间的采光统一性。 3、主卧空间原始衣帽间拆除,改造为套房式开放设计,并扩大衣帽间空间。 4、主卫空间门厅朝向改变,空间采用干湿分离设计。
客厅

电视背景墙采用大理石石材为底,悬空设计并且底部预留空间打造地柜,色系与墙面保持统一性,干净大方,为了凸出空间的质感,底部和大理石边都采用线性灯带设计,丰富空间层次感。

客厅空间采光较好,我们将原始户型的阳台纳入客厅,改为落地窗设计,增加客厅的空间,还能保证室内的通透性。空间整体无主灯设计,简约吊顶+线性灯带的围绕,让空间氛围感和层次感相叠产生不一样的美感。

因为厨房空间位于沙发背景墙后面,于是我们选择玻璃隔断相隔而开,沙发背景墙采用硬包设计,浅色调搭配线条感,空间质感十足,在软装上我们选择搭配高级沉稳的黑色软皮沙发,搭配灰色地毯,加上圆形小茶几的设计,考虑到空间整体的质感,顶部我们设计一个个性吊顶,整个空间沉稳又大气。

地面选择木地板通铺,人字拼风格百搭还不会出错,质感十足。
餐厅

客餐厅一体化全景

餐厅空间我们选择酒柜+镜子的设计,视觉上可以拉长空间感

酒柜定制我们选择通顶设计,内部超强收纳功能,还能装的下餐厅各种杂物,并且具有整体性

玻璃和灰色柜门相搭配,层次更加丰富,内部设计有线性灯带,不禁将通透感融为其中,颜值也是爆表,简直不要太有格调。

六人可以坐下的超大黑色岩板餐桌,搭配深棕色座椅

右侧墙面装的超大酒柜,还能起到拉长空间感的作用,顶部搭配个性水晶吊灯,为就餐环境打造一个良好的氛围感。
厨房

餐桌一眼望过去就是厨房,可以看到在做饭的人。非常有氛围。

厨房空间采用开放式设计,我们打造的是一字型布局,空间选择吊柜+地柜的设计,天花板与吊柜之间采用原木护墙板,与白色无手拉吊柜相结合,降低柜体的存在感。地柜选择原木柜体,保证空间的储物问题,台面选择白色岩板设计,方便清洁。

在空间内我们还打造一个小吧台设计,既能起到空间分区效果,还能作为餐吧使用,搭配上榨汁机面包机,简单的早餐可以在此空间进行啦,并且顶部搭配个性灯具,让就餐氛围感满满。
卫生间

卫生间我们采用干湿分离设计,空间整体以浅灰色为主,正方形墙砖大气耐看,搭配无主灯设计,空间低调舒适。浴室柜我们选择白色柜体+黑色台面,黑白配永不过时,为了保证空间的收纳问题,我们选择超强收纳的浴室镜,内部可以存放护肤品,避免潮湿影响使用。
卧室

主卧设计我们将空间墙体拆除进行打通,所以整个空间较大

因此在采光上我们采用超大落地窗设计

床头选择搭配硬包设计,质感丰富

空间无主灯设计,我们选择射灯+吊灯,为屋主营造舒适的睡眠环境。

床尾我们采用原木护墙板+内嵌电视机的设计,底部镂空+线性灯带,凸出层次感的同时,减少压抑感。

两侧预留空间方便进出衣帽间。梳妆台设立在电视背景墙后侧,节省空间的同时还能保证统一性。

床头柜细节
儿童房

次卧空间主要是屋主孩子居住,所以比较注重空间的功能性,空间以深色系为主,床头背景墙选择灰色印花设计,床头右侧打造悬空书桌,

顶部搭配无手拉吊柜,可以收纳书籍等杂物,在搭配上置物架的设计,摆放上手办,结合线性灯光与格栅元素,空间层次十足。
衣帽间

衣帽间我们选择通顶柜体,并且玻璃+原木柜门的设计,诠释极简时尚的魅力,更注重品质和设计感, 摒弃了传统的奢华浮夸之风。让空间拥有灵活动线的同时,满足了收纳与展示性。

不但颜值高还质感丰厚,空间采光保持一致,提升屋主的生活品味。柜体可以分为衣物收纳区、鞋子收纳区、包包展示区。

梳妆台满满的高级质感。 镜身特别的细腻,所有的细节都处理非常光滑平整。显气质的同时,更是女性独特魅力感。