85㎡“手枪形”户型,开门见厅无玄关,一堵墙轻松解决
家居出品
2023-03-22
这是一套位于深圳龙华区的新楼盘,房子建筑面积85平,户型比较奇葩,外观呈“手枪形”,入户没有玄关,直面客厅,私密性差。幸运的是没有什么畸零旮旯的死角,采光和通风还算不错,大大降低了后续设计改造的难度。
房屋信息
面积:85㎡
户型:二居
风格:现代简约
造价:15W
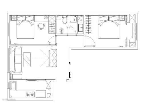
平面设计图

设计改造思路:
(1)原客厅布局很尴尬,电视机放哪儿都不合适,而且没有玄关,打开入户门就能将客厅尽收眼底,收纳和隐私都得不到保障。于是在靠近过道处新建了一道墙体,既增加了玄关储物,又避免了开门见厅的尴尬,同时也解决了电视墙的问题。
(2)敲掉厨房与生活阳台之间的隔断,将其合并,设计L形橱柜布局,扩大厨房操作空间。
(3)主卧阳台两侧定制储物柜,提升储物机能;次卧则根据房间的大小和需求,设计桌柜一体,节省空间的同时,统一视觉,增强整体性。
- 玄关

玄关柜集多种功能于一身,L形开放式柜格,侧面用于展示和储物,底部用来放置拖鞋和使用频率高的鞋子,日常使用更方便。安装感应灯带,提供照明的同时还营造出了温馨的居室氛围。
封闭式的通顶鞋柜与大面积的白色墙面以及天花板融为一体,小巧精致的把手更是一种点缀。
- 客餐厅

空间有限的情况下,客餐厅一体是最佳选择。沙发靠窗摆放,对面就是“无中生有”而来的电视墙,悬空的地台电视柜做了弧形处理,柔滑棱角的僵硬,与圆形茶几相得益彰。
黑金简约吊灯将时尚感拉满,墙上的艺术画与拱门形拼色搭配在一起,塑造优雅且充满设计感的空间氛围。
- 厨房

厨房采用灰色地砖,同色系冰箱嵌入到柜体中,整体性非常强。大面积的白色橱柜让空间变得通透敞亮,凹槽式柜门开关方便且不占地方,颜值与功能并存。
- 卧室

主卧延续客餐厅格调,浅咖背景墙撞色深咖,床品也采用了同色系,视觉层次丰富却丝毫不显得杂乱。床头的吊灯与绿植营造自然舒适的居室氛围。

次卧布局也以简单大方为主,橘色与灰色双拼的窗帘和床头的挂画以及床品形成呼应。书桌与衣柜为一体定制款,还做了开放格用来摆放书籍等杂物,小小的空间,功能却一样不少。
- 卫生间

洗烘一体机安排在卫生间的干区,洗漱时就能将脏衣物一并洗了,简化生活动线。淋浴区用黑框玻璃隔开,避免水溅到外边来。洗手台左侧由于包管凸出来一部分,就用木板做了开放格,弱化柱体的同时,增加收纳空间,细节拿捏到位。