看到这套装修,我理想中的家终于有了样板了,恬淡自然看着真舒服
汇太狼谈装修
2023-04-07
每个人对理想之家,都有着自己的憧憬,但很多时候,我们都没法用自己的语言去清楚地描述出来,或者你描述了,别人也没办法将它物化出一个清晰的形象来。这种感觉,应该每一个跟设计师有过沟通的人都能理解,因为一千个人就有一千个哈姆雷特,一千个设计师,也能给你设计出一千种方案来。但看了这套装修后,我理想中的的家终于有了样板了,太喜欢这种恬淡自然的氛围了。分享给大家,相信大家也会喜欢这种风格的!

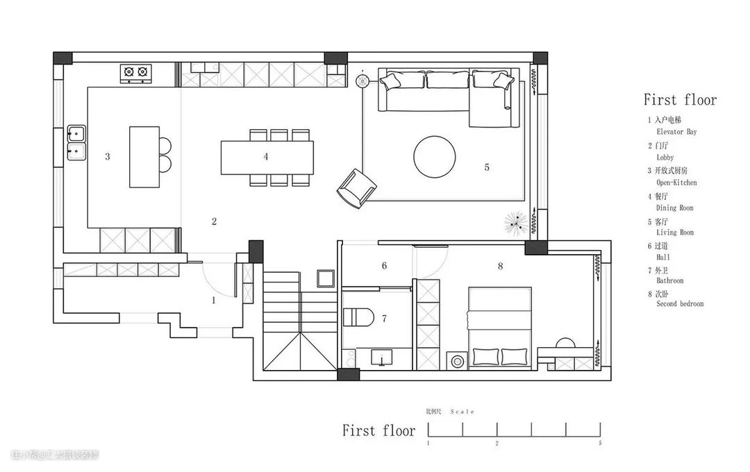
一楼平面布置图

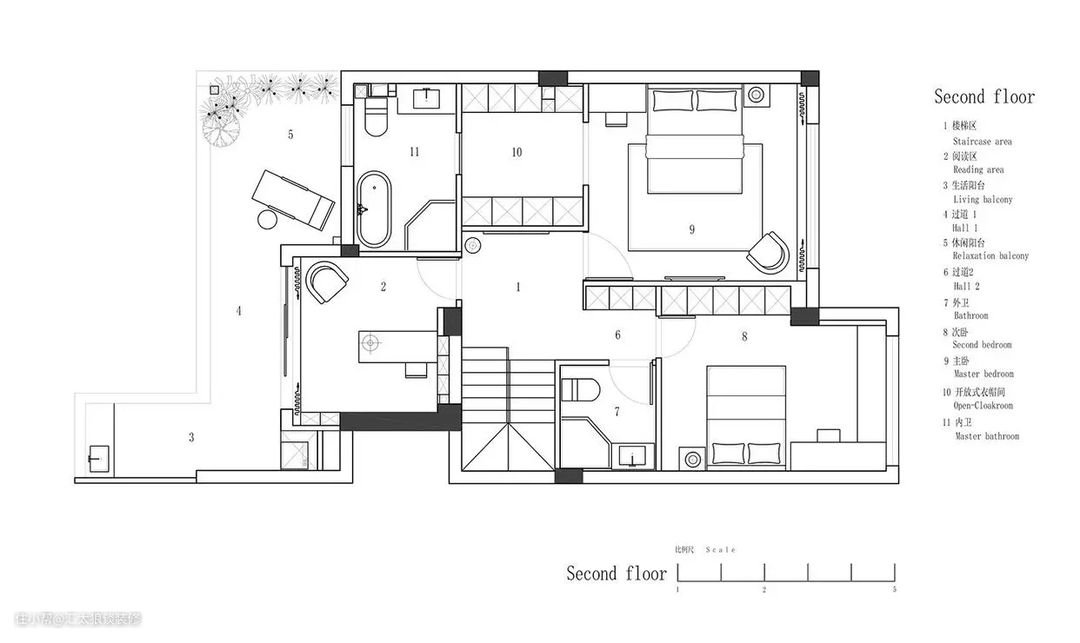
二楼平面布置图
这是一套复式楼。一楼以公共区域为主,设有客餐厨卫和一个客卧,二楼则是私人领域,共设有两个卧室、一个书房和两个卫生间,主卧内还配有单独的衣帽间,整个空间的功能分布,非常地合理且便利。

入户区

全景效果
这是入户后第一眼所见到的全景效果,整个客餐厨呈一体式设计,给人十分通透敞亮的印象,白色与木色的主色调,更是将室内氛围营造得格外地恬淡自然。
拉近镜头看看近景吧!

餐厅

餐厅
餐厅这边安排了一张2米长的餐桌,两边各摆放了三把椅子,大小刚刚好。餐桌椅统一采用的橡木材质,色泽自然,质感温暖,搭配两盏日式吊灯,有暖黄的灯光烘托着,整个就餐区的氛围显得温馨极了。

厨房

厨房
厨房的隔墙拆掉后,不仅视觉上显敞亮了,空间也显得宽裕了许多,所以厨房里面除了定制U形橱柜外,还可以再安排一个岛台。平时,一家人可以围坐在岛台前吃早餐、喝下午茶,或是一起包饺子、做烘焙。这样,厨房就不再是一个孤立的存在,而是一个可以拉近距离、凝聚家庭的空间。

客餐厅

客厅

客厅
客厅这边没有繁琐的造型和过多的装饰,整体色调也是淡淡的,给人非常纯净自然的感觉。对于我们这些在外辛苦工作、到晚才拖着疲惫的身体回到家的打工人来说,置身在这样恬淡安宁的氛围之中,才是最解压最能抚慰人心的。

客卧
这是一楼的客卧,走到这个房间,第一眼便感觉非常舒适。白墙、木地板,搭配灰色和白色的家具,营造出一种质朴自然的居室氛围。目之所及,心之所往。

楼梯
顺着楼梯拾级而上,上面就是屋主一家的私人空间了。

主卧

主卧
主卧里面也没有特别花哨的装饰陈设,连床头靠背都是极浅极浅的色调,一眼看过去,整个空间由白色与木色铺设而成,将室内氛围渲染得恬淡温暖极了。因为主卧内配有单独的衣帽间,所以室内就只安排了一个简易的衣架,用来挂放睡前换下的衣服。

衣帽间及卫生间
衣帽间内设有两排顶天立地的衣柜,穿过中间的过道,里面则是卫生间。整体的白色,将卫浴区打造得清爽明亮极了,非常有质感。
这就是我理想的家的样子了 ,这样的家,你喜欢吗?