458平米新中式,大理石与乌金木家具,碰撞出新中式独有的格调
华浔品味装饰集团
2023-04-07
今天给大家介绍的是位于广东肇庆山林湖的一套458平米新中式风格的家居空间。
本案是三层复式结构,未来是业主一家六口人共同居住,所以业主希望设计师对整体结构进行重新规划设计,一方面让家人住的舒适,另一方面也想让家人在家里就能有一些悠闲的空间,提高生活的品质。整体风格上,男业主更倾向传统的中式风格,觉得简单又大气。女业主则喜欢生活细节上能有一些时尚元素,让生活空间能更优雅高贵一些。

基本信息
建筑面积:室内458平方,花园172平方
户型:三层复式
设计风格:新中式
所在城市:肇庆
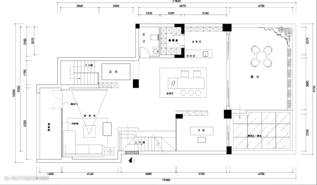
负一楼平面布置图

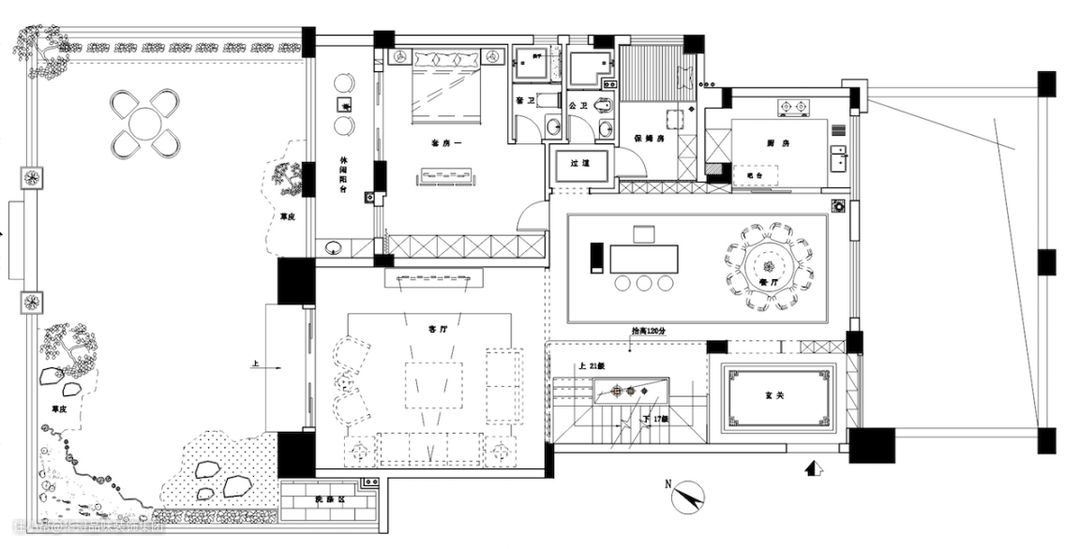
一楼平面布置图

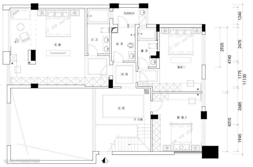
二楼平面布置图

设计说明:
1. 结合业主的喜好和空间结构,本案例选择了现代新中式风格,在立面的设计与软装家具搭配上采用了大面积高贵的大理石与乌金木家具,既时尚又充满氛围感,给人一种简洁又不失格调的居住体验。
2. 负一楼的采光欠佳,设有影音室、品茶区、书房、水吧区还有一个大露台。一楼为生活休闲区,包括客厅、餐厅、厨房、卧室还有一个花园。二楼为休息区,包括一间卧室、两间套房。
入户

入户后有一个小方厅,设计师将其规划为入户门厅。在门厅的餐厅的交界处,选用了一扇中式木珊栏的屏风作为两个区域的划分,既保证了空间的通透性,又增添了空间的古典韵味。
餐厅

经过门厅就到了餐厅区域,餐厅区域的吊顶做了圆形的悬空吊顶的设计,一盏金色的圆形水晶吊顶散发着暖黄色的灯光,格外温馨。
厨房

厨房与餐厅之间是半开放式的设计,透明的玻璃推拉门既阻挡了油烟,又保证了空间的通透。
一体式定制的象牙白色的橱柜,简洁又高雅,厨电一一都做了嵌入式的设计,空间显得更加的整洁。
品茶区一

从餐厨厅到客厅需要经过一个较长的楼梯过道,设计师在此处做了一些简单的布置,不仅提高了空间的实用性,而且也让原本单调的过道变得丰富起来。
客厅

客厅做了挑高的设计,视野非常开阔。米白色的大理石地板、灰白色的电视机背景墙、花岗岩色的沙发背景墙、简洁优雅的白色吊顶,再搭配上一盏华丽丽的水晶大吊灯,简洁大方的空间透着高贵优雅的气质。

客厅出花园的位置,设计师精心的为女业主摆放了一张白色的摇椅,闲暇时光女业主可以坐在这尽享时光和温暖的阳光,好不惬意。
主卧

卧室的阳台做了入户式处理,摆放上一张两人位的沙发,整个空间显得更加的宽敞,舒适度更高。
次卧

次卧以卡其色为主色调,简单的大床、床头柜,不同色调拼接的背景墙板,看上去既简洁又时尚。
水吧区

水吧区的设计非常有意思,既没有选择现代中式的简约,又没有选择欧式的奢华浪漫,反而是充满奇幻冒险的海盗船风格。
台面上的摆件也十分考究,整个风格让人眼前一亮,也完美彰显了业主追求高品质生活的态度。
影音区

蓝灰色的隔音墙板、立体星空天花,整个影音区给人一种很梦幻的感觉。米白色简洁舒适的布艺沙发、圆茶几,简洁大方的配置让人倍感舒适温馨。
楼道

楼道的墙面贴上了灰白色的瓷砖,搭配上中式灯笼形态的吊线灯,简洁中又带着中式的古韵与唯美。
花园

花园的墙面做了对称式的设计,大气又儒雅。

花园的整体风格为中式,凉亭、山石、草皮、池塘,非常的雅致。