200㎡现代大平层,只有黑白灰,喜欢这种极简又高级的氛围
福州生活家装饰旗舰店
2023-04-08
案例介绍
本案是五口之家,夫妻二人有2个孩子,年龄不大,业主要求有比较多的活动空间和收纳空间,对于装修功能和细节上要有更长远的打算,另外业主通过风水先生建议到家中要有红色作为配色来点缀,色彩上需要应用到这一点。房屋整体要求简约且高级耐看,设计师通过黑白灰的经典配色,采用不同材质搭配,将极简轻奢的浪漫特质被小心糅合进简约轮廓的界面里,精心选配纯度,明度的冷,黑白配色,点缀一抹波尔多红,借柔和线条勾勒家居姿态。
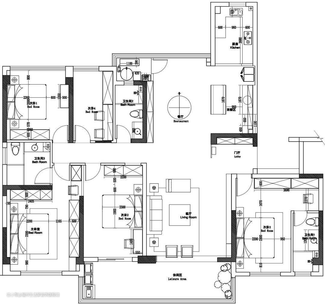
户型空间解析
原始户型整体较为方正,客厅与厨房有大面积阳台,由于业主希望有较大的餐厨空间,将餐厅侧的生活阳台纳入室内,拆除生活阳台与厨房之间的隔断,同时打通餐厅旁厨房隔间,让中西厨分离,设置岛台形成洄游动线,为餐厨空间大大扩容,无论是烹饪、用餐、清洁,都有着更方便的距离。

玄关
在入户区域,使用灰黑哑光岩板配上大面积白色波浪板,点缀暖色调光源,在主体色调黑白灰的基础上配上波尔多红的热情,满足业主对于“开门见红”的需求,打破黑白灰的沉闷感的同时,空间也更灵动活力起来。

客厅
为体现质感和低调,全屋材质使用艺术涂料,哑光岩板和大量柔光饰面板以及烟熏格栅,在材质上凸显质感,不华丽却又高级。



肤感灰的硬朗墙面,通过钢琴键软皮沙发与圆形大理石茶几,柔化客餐厅的刚硬直线,浅米色地毯中和了空间的暗黑深寂,柔和视觉的同时增加点睛亮点。时尚童趣的小马椅也让空间充满趣味性,是成年人也保留有的一颗童心。



隐形踢脚和无主灯悬浮收口扣条,体现极简细节,整个空间通过不同层次、材质、冷暖的线条,让空间每一处都具有独特高级的美,也充满刚劲的力量感。

餐厨
客户对柜子的需求比较大,所以餐厅安置了很多柜体,便于放置物品,同时材质与造型凸显整体质感,定制柜为暖灰柔光膜辅以黑玻璃+暖色灯光,丰富空间层次感。一侧利用烟熏实木格栅+线性灯隐藏了设备空间的杂乱,甚至营造了未来科技感,把整个空间融合成和谐的一面造型效果。



中西厨房结合+岛台设计,满足业主饮食烹饪多元化,增加操作空间与收纳空间,科学行走动线让布餐环节游刃有余。在色调上采用深浅撞色,家具上运用圆中有方,方中有圆的国学,岩板+极窄边框玻璃+弧型吊顶+线性灯,营造出极简主义的未来感。

主卧
主卧采用深棕色配灰杏色点缀一点哑光金属,硬包墙面直接落地拉高空间感,低调内敛又不失奢华,搭配奶油风懒人沙发,回到卧室便可以治愈一整天的疲惫。


小孩房
两个小孩的房间依旧采用硬包墙面,艺术涂料包裹整个空间,由墙及顶,去繁就简。靠墙一侧打造专属衣柜,透明玻璃柜门+线性灯带,时尚精致,暖调温馨的灯光氛围配上流行的落日灯,氛围感满满。



卫生间
灰色基调呈现高档质感,内嵌反光灯槽,1.5米台盆满足业主使用需求,储物更大,马桶和淋浴区各司其职,方便淋浴的同时还能阻挡水汽,让干区保持干燥,更方便打理。
