192㎡高质量轻奢家,完美配色超强扩容!
广州金地新家
2023-04-16
方案说明
女主人目前是全职太太,以前是幼师,有2个非常可爱的女儿,一个6岁 一个3岁,女主人本身是那种超爱家,性格非常随和开朗,还会弹钢琴,经常给孩子们弹琴,教她们唱歌,气氛特别好~ 男主是自己做生意的,是非常宠老婆的那种,整个家的设计都是以女主人的喜好为主,真的超有爱!
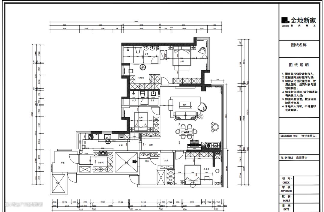
户型图

原本户型结构是标准的4房结构,为了提高屋主的生活品质,把最好的采光面空间留给了两大卧室。 主卧的双面采光,还增加了衣帽间,厕所和衣帽间都有极好的光线;大的儿童房打掉内壁,扩大房间面积,还并入了阳台。

户型解析: 1、从客厅到为主人提供一个完美的居家动线,打造LD的空间线,将餐厅和客厅布局在同一个水平面上,无需打造隔断墙,利用沙发以及餐桌,划分明确的区域,减少了占地面积,最大限度释放空间。同时也大大缩减了行动频率,让生活动线更高效。 2、打通阳台,从客厅到餐厅到阳台,贯穿全屋的大洄游环线,让家里拥有健康“跑道”,孩子们能嬉闹玩闹、亲子互动都能在这上演的动人故事。 3、延伸墙面与次卧平行,将原本的厨房空间布局出一个储物间和双排型的中西式厨房,利用上滑轨推拉门对中区和西区做了隔断。不光增加了收纳空间,房屋功能的多样性也得到了满足。
玄关

内玄关的柜体呼应美式风格做了造型板,下方的架空区域做250mm高,用于临时的鞋物存放,保持玄关的整洁,并在下方内置了灯带,以方便看清。柜体中部做了850mm的台面高度,连续的台面可以做扶手使用,脱换鞋方便轻松,还可存放一些随身出门的物品和摆放装饰物。
客厅

整个空间的色彩搭配是这个屋子最大的亮点之一,极其顺滑又清亮的协调感,让人一进屋内就能很快的放松下来。陈老师用28比例的配色法,选择了温馨的象牙白(QW038-4)和耐看的祖母宝石蓝(BC0023-3)做搭配,轻盈简洁,再利用金属线条和镜面材质,突出了轻奢的质感。

在客厅的每面墙上都做了墙边框,并特意将位于客厅边的儿童房和玄关门体 加高了门楣,这样下来同色的垭口、踢脚线到墙边框,整体的线条感连贯流畅,拉长拉宽了空间的纵横视觉,扩容效果大大加分!

大平层的横厅里,客餐厅一体的布局减少了隔墙,将空间的采光发挥到极致,明亮又通透,整个主空间也变得更宽敞。 随着孩子的成长,想要的个人空间会越来越大,青春期的小孩会一直躲在自己的房间里,但是有了大空间的客厅,可以活动的区域变大了,欢声笑语和情亲沟通都会在此处美妙的发生。
餐厅

餐厅处加上了水晶的吊灯,在这宽敞的空间中弥补了纵向空荡的美感,视觉上更加平衡。

晶莹剔透的水晶吊坠,反射出璀璨的光芒,钛金边的色调也与吊顶保持一致,强化整体色彩分布的层次感,也为餐厅营造出浪漫温馨的氛围。
厨房

来到厨房的过道处,就能感受到空间超强透亮的延伸感,这得益于窗户带来的良好采光和瓷砖反光的效果。 西式区更准确来说是一个餐边柜,设置了管线机(做水电工程的时候就需要做好这部分),方便接水又容易清洁。插座用的是 带开关的是五孔双控样式,省电、方便使用又能减少插头使用的损伤。这一部分除了增加了餐厨两处的收纳空间,也能作为水吧、酒柜使用。一黑一白的配色也巧妙地对这两个空间进行了分区。

利用了黑玻的上轨道滑动门,将中西两厨分区,可以防止做饭的油烟和炒菜味弥漫到屋内,同时又能保证良好的采光以及简洁的视觉面。

厨房沿着两面平行墙安装橱柜,布置功能分区,抛弃了传统的铝扣板和吊顶,选用了防水石膏板做吊顶,防火性能高又隔音隔热✔橱柜做了电器柜,冰箱、烤箱、蒸汽炉等家电都可以内嵌入其中,与厨房台面持平,一眼望去,整洁利落

其中柜体采用肤感的木质板材,带来高级感的同时也耐脏。

厨房往内,与厨房台面平行的基础上 做了L型的小吧台的设计,平时的一个人吃饭或是简单的早餐都可以在这里直接解决,还能悠哉的欣赏美景。
卧室

卧室的主调以香槟金为主,搭配窗帘的烟紫色与衣橱的极简白,以及蕾丝、布艺和木质等材质的运用,床头还摆上一只天鹅椅+羊脚蹬,将卧室的奢华和舒适性融为一体,实用又美观。

吊顶的铝合金线条设计延用到主卧中,在装修前就了解到业主的卧室也想要安装投影仪,我们在施工时便在卧室的吊顶预留了合适的位置,除了吊顶的环形灯带,也内嵌入了短线射灯的设计,增强了灯光的层次感。

卧室的氛围会因为开闭窗帘,有对应的冷暖色调变换,能快速的进入睡眠或是日常居家活动的状态切换。

主卧铺的是豆豆凉席,现在夏天铺上这种床单,清凉散热很舒服~
卫生间

主卧整个卫生间从地板到墙壁,都通铺了大瓷砖,壁挂式的马桶后侧墙体可做临时的置物区,并在马桶上方做了一个洗墙灯,整体色调采用的是轻奢灰。

主卧的卫生间没有用传统的防水石做顶面,而是用铝扣大板做的(750*1500mm);沐浴间做单开的极窄玻璃门,本来业主是想要做无边框样式的门体,但考虑到家中有小孩,做无边框的门体存在感弱,⚠稍不注意容易磕碰,所以我们协商之后还是做了金色边框,✔提高安全性的同时,也保留了轻奢的美观。

根据业主平日的生活习惯,沐浴间里的左侧墙面上安置了壁挂的拖鞋架。 (意可可的浴室拖鞋架)
儿童房

来到儿童房,就好似进入到了充满粉色泡泡的美好世界,床头用软包拼接格栅板,床加入了蕾丝蚊帐 做成一个公主床幔,让女儿在这粉粉的摇篮中安静的入睡,整个空间用柔皙粉和象牙白的色彩搭配,给她们一个梦幻的公主梦

打掉内壁,将原本属于杂物间的小空间 打造成可以存放更多衣物的衣橱,也给孩子更宽敞的活动空间,床尾也做了半开放式的收纳柜,可以满足不同物品的存放

定制的卡通开关面板带动有趣氛围~

这是妈妈送给女儿的六一儿童节礼物,太有爱了!~
衣帽间

主卧的左侧是一个开放式的步入式衣帽间,飘窗的位置打掉做成梳妆台,与卧室选用同款的拼接色窗帘,安装的新风系统在寒冷的冬季也可以在舒适的温度下更衣,还能通风换气,保持衣物的干爽。

中间挖空设计的衣柜里,存放的是屋主常会穿着的衣物,不担心落灰,也避免了封顶柜体的笨重感。